EasyManua.ls Logo

Seima LIARA - Page 2

Default Icon
4 pages
Print Icon
To Next Page IconTo Next Page
To Next Page IconTo Next Page
To Previous Page IconTo Previous Page
To Previous Page IconTo Previous Page
Loading...
bottom entry inlet port
hole for flexible hose
(on both sides of pan)
bracket fixing holes
(both sides of pan)
bottom entry water
control holes
cistern/pan
attachment holes
seat connection holes
cistern outlet pipe hole
All measurements are in millimetres.
Height dimensions are to base of pan.
Make allowance for bedding.
This toilet suite can be set up as either Bottom Entry Inlet or Back Entry Inlet.
INSTALLATION GUIDE
LIARA WALL FACED TOILET SUITE
1 S-TRAP PROCEDURE — SECURING THE PAN
CONNECTOR IN PLACE
Determine the centre of the pan and mark the centre line on the
floor and wall.
Work out the setout required. The recommended setout is 150mm
(setout range is 90-190mm).
You may need to trim the large end of the plastic pan connector
to fit the required setout. To trim, first remove the plastic ring and
rubber seal, then cut pipe to size. Refit rubber seal and plastic ring
securely, ensuring a good fit.
Position the pan connector into the floor outlet pipe (S-trap).
The height measurement from the floor to the centre of the pan
connector is 185mm.
Slot the threaded section (with flange plate) onto the pan
connector, ensuring that the flange plate is touching the wall. You
may need to trim the threaded section so that it fits properly.
Mark and drill the flange plate holes and secure the plate to the wall
with fixing screws. The pan connector is now installed.
2 POSITIONING THE PAN
Use the centre line marked on the wall and floor to position the pan
(see Step 1.1). Push the pan into the installed plastic pan connector.
It is recommended that wedges are used to support the foot of the
pan during positioning.
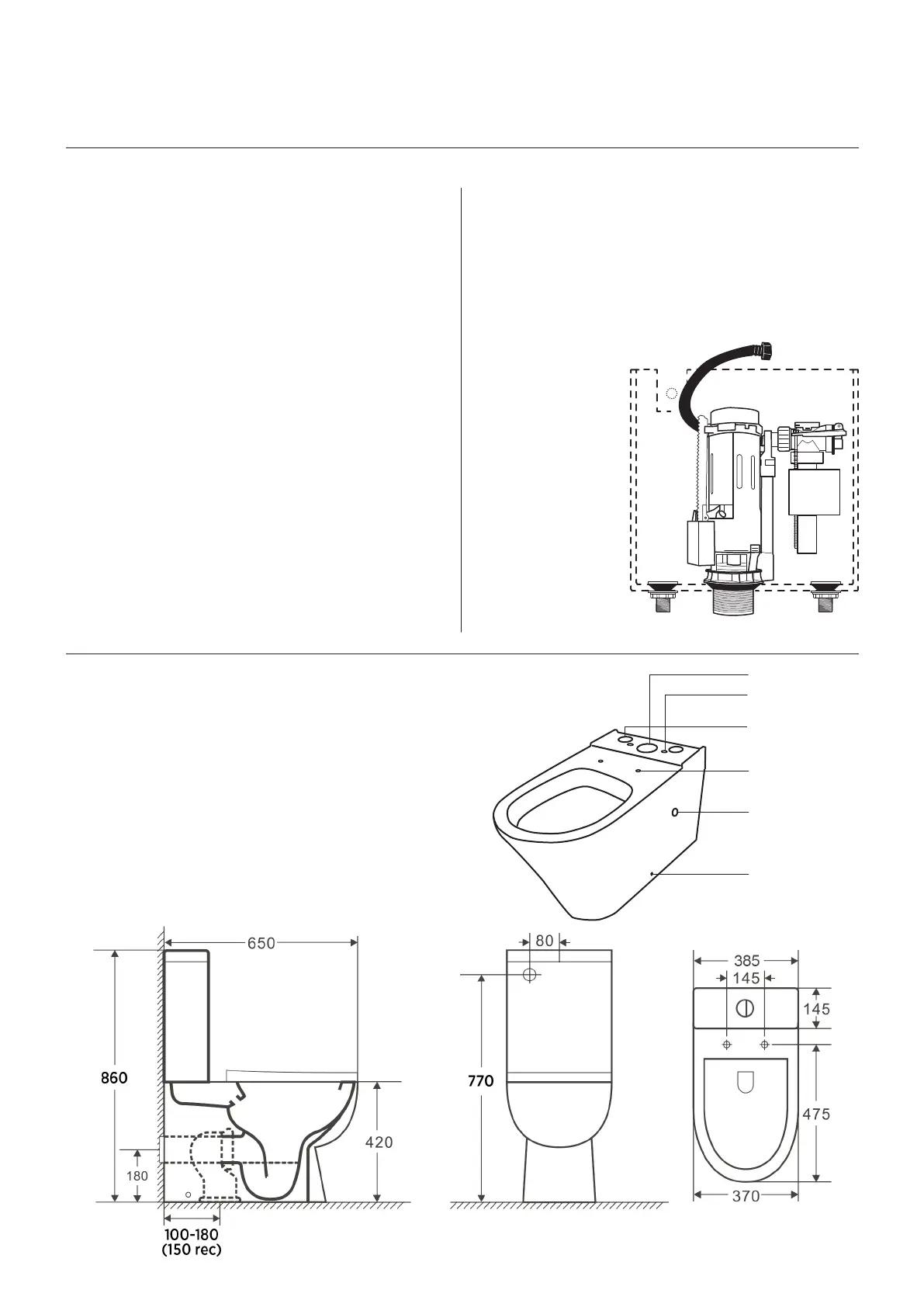
3 CISTERN — COMES SET UP FOR BACK ENTRY
INLET PLUMBING
Diagram A shows the cistern as supplied, with the inlet valve and flush
valve already installed. The flexible hose is ready for Back Entry inlet
plumbing (see Diagram B).
For Bottom Entry Inlet plumbing, refer to Step 5 and Diagrams C
andD.
Cistern setup as supplied.
The end of the flexible
hose is loose, ready to
be attached to the Back
Entry inlet nozzle (see
Diagram B).
NOTE: FLEXIBLE HOSE NOT
SUPPLIED.
DIAGRAM A
inlet
valve
cistern
flush valve
plug
(flexible hose not supplied)