EasyManua.ls Logo

SEVERIN FRD 8993 - Page 22

SEVERIN FRD 8993
Print Icon
To Next Page IconTo Next Page
To Next Page IconTo Next Page
To Previous Page IconTo Previous Page
To Previous Page IconTo Previous Page
Loading...
- 22 -
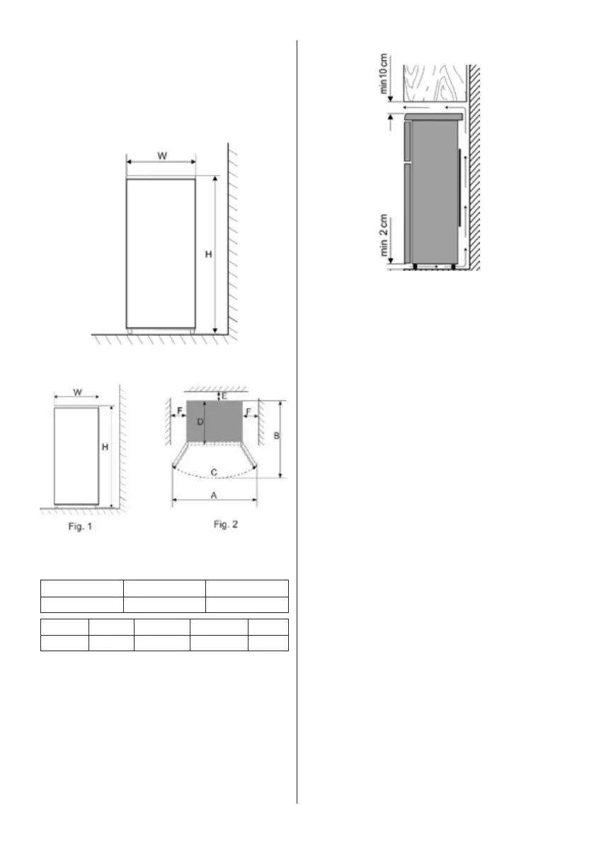
Ventilation
The air warmed behind the appliance needs
to circulate freely. For this reason, the circula-
tion of air cannot be compromised.
Caution! Do not cover possible existing
ventilation openings in the back area of the
top cover plate!
Connection
Before you connect the appliance, you have
to make sure that itself and the power plug
do not show any transport damages.
Connect the appliance only to a shockproof
outlet. The mains voltage has to correspond
to the one stated on the tool identication
plate.
The appliance complies with the guidelines
that are obligatory for CE marking.
Do not connect the appliance to an inverter
The power plug should not touch the back-
side, in order to avoid possible vibration
noise.
The appliance can be put into operation by
plugging the mains plug into the point.
A complete switching-off only occurs by
pulling the mains plug.
Installation measures
If the appliance is placed sideways on a wall,
you will leave a lateral gap of at least 60 mm,
so that the doors of the appliance can open in
a 90-degree angle.
Width (W) Depth (D) Height (H)
654 mm 717 mm 1803 mm
A B C E F
1054 mm 935 mm 125° +/- 5 50 - 60 mm 100 mm

Related product manuals