EasyManua.ls Logo

Sharp AY-X12PSR - Information about Auto Mode; Difference Relating to Set Temperature; Drying Operation Control; Outline of PWM (Pulse Width Modulation) Circuit

Sharp AY-X12PSR
73 pages
Print Icon
To Next Page IconTo Next Page
To Next Page IconTo Next Page
To Previous Page IconTo Previous Page
To Previous Page IconTo Previous Page
Loading...
SHARP(CHINA)INVESTMENT CO.,LTD
1.21.
Information about auto mode.
In the AUTO mode, the temperature setting and mode are automatically
selected according to the room temperature when the unit is turned on.
z In the “AUTO”model, when the controller receives the up or down
singnals of temperature from remote control, the set temperature
can be adjusted by 1ćupper or lower. The maximum you can
adjust by 2ć upper or lower.
z If the “AUTO” mode operates in DRY , the set temperature and
the fan speed can’t changed.
1.22. Airflow control
ƽ Press the SWING button, the vetical air flow louver will swing.
ƽ Press the SWING button again to stop at the desired position.
1.23. Difference relating to set temperature
1.24. Drying operation control
When the unit operates in drying mode, the set temperature is set and keep at room temperature decrease 2°C , and you can not adjusted it.
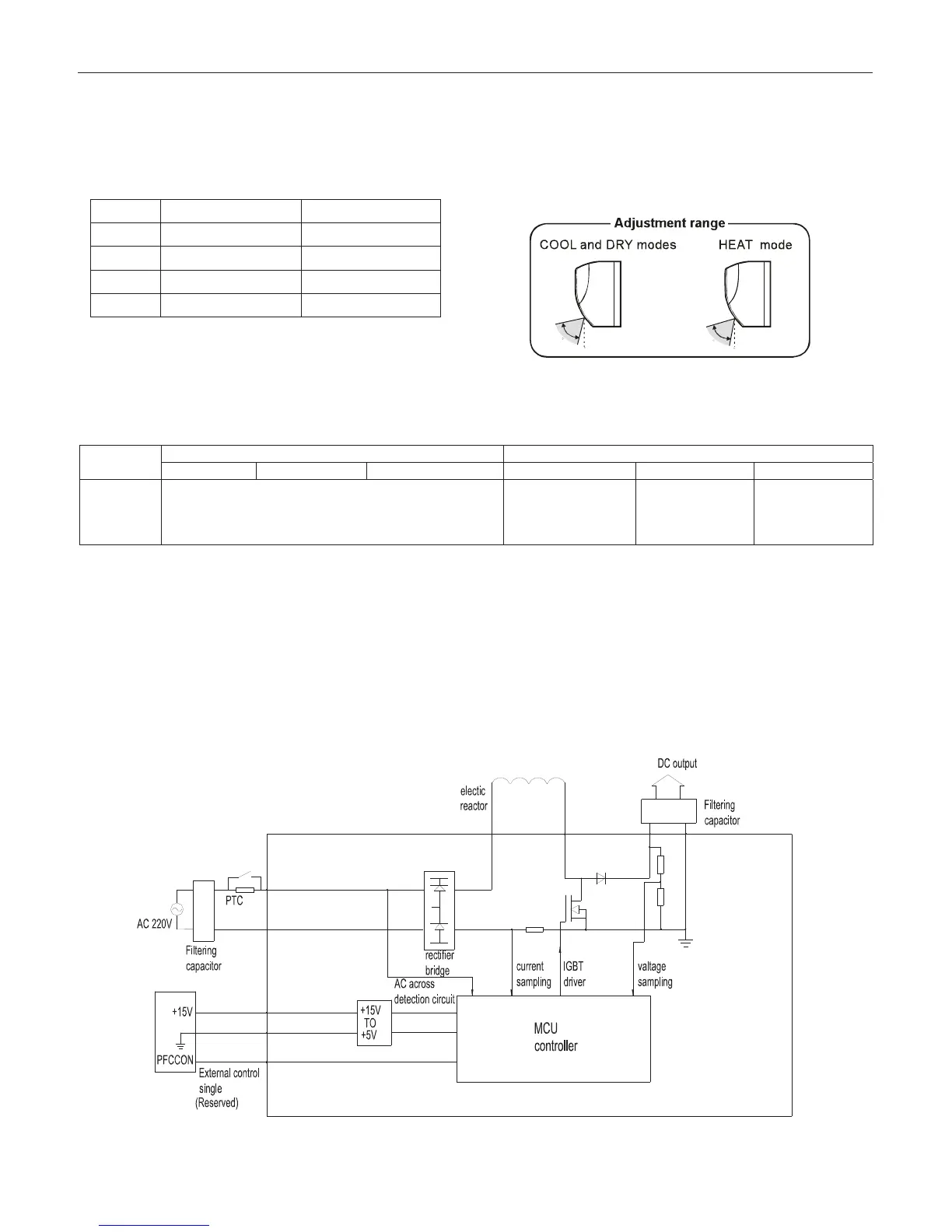
2. Outline of PWM (Pulse Width Modulation) circuit
2.1. Power Factor Correction(PFC)
The PFC circuit varies the compressor drive voltage and controls the rotation speed of the compressor.
The IGBT shown in the block diagram charges the energy (electromotive force) generated by the reactor to the electrolytic capacitor for the inverter by
turning ON and OFF.
Model Initial Room Temerature Initial Set Temperature
COOLING
RT26ć 23ć
DRY
26ć˚RT20ć
RT-2
HEATING
RT˘20ć 23ć
FAN
RT˘20ć
-
Auto mode Manual mode
Cooling Heating Drying Cooling Heating Drying
Temperature
setting
method
Automatic temperature setting based on outside air
temperature. Can be changed within ±2°C using remote
con-trol.
Can be changed
between 18 and 32°C
using remote control.
Can be changed
between 18 and
32°C using remote
control.
Automatic setting.
Can be changed
within±2°C.




2-20

Table of Contents

Related product manuals