EasyManua.ls Logo

Sharp AY-XP13CE - Plasmacluster Technology; Plasmacluster Modes Explained

Sharp AY-XP13CE
52 pages
Print Icon
To Next Page IconTo Next Page
To Next Page IconTo Next Page
To Previous Page IconTo Previous Page
To Previous Page IconTo Previous Page
Loading...
14
AY-XP08/10/13CE
AE-X08/10BE-C
AE-X13BE
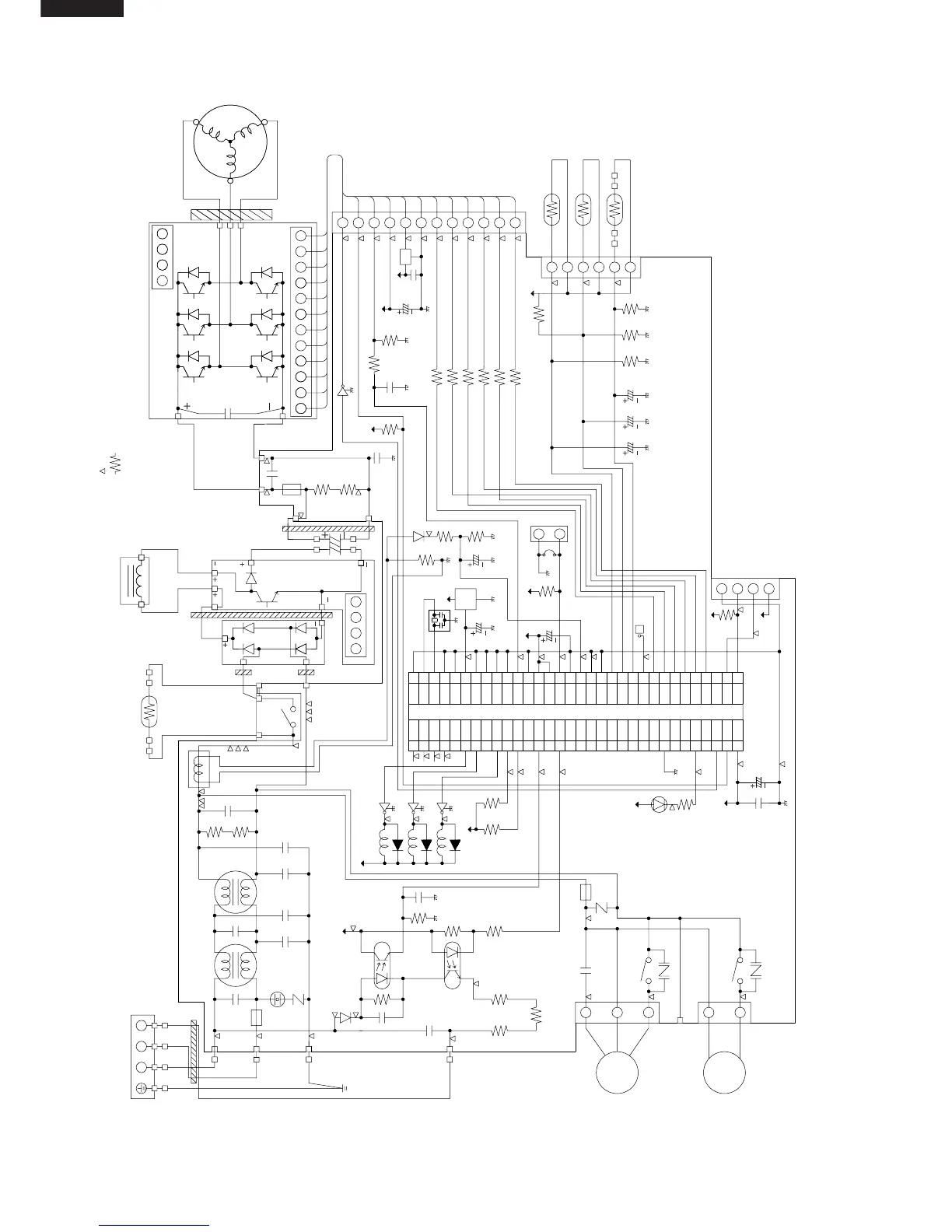
Figure L-3. Electronic Control Circuit Diagram for AE-X08BE-C/X10BE-C
TB (TERMINAL BOAOD)
N12
1
2
3
4
BLUE
BROWN
RED
FC4
GREEN/YELLOW
T2
T1
T4
T3
L3 L4
C31
275V 1µF
C4
250V 2200pF
1
2
3
4
C2
275V 1µF
C3
250V 2200pF
C34
250V 2200pF
WPE1
250V
15A
C1
275V 1µF
C33
250V 2200pF
R2 R1
1/4W
510K
1/4W
510K
CT1
TO QM1 (IPM)
T5
T6
MRY1
PTC
BLU
GRAY
GRAY
WHITE WHITE
L1
IN
IN
LL
ORANGE
AC1
FC2
FC5
FC7
FC6
AC2
BLACK
BROWN
4321
OUT
OUT
AF1 (PFM)
TM-05C
RED
RED
BLUE
BLUE
C8
420V 1500µF
C30
25V 100µF
C11
25V 0.1µF
C18
50V 0.1µF
R35
510
R41
10K
R36
510
NOTE
1. MARK IS TEST POINT.
2. IF NOT SPECIFIED 1/4W (RESISTOR)
YELLOW
BLUE
T9
T10
T7
C10
630V 0.33µF
R39
1/2W
270K
250V
10A
WPE2
13V
5V
5V
R40
1/2W
270K
T8
C32
250V 2200pF
1 : Red 2-12 : White
12
11
10
9
8
7
6
5
4
3
2
1
12 11 10 987654321
CN11 (CONTROL PWB)
U
V
W
4321
QM1 (IPM)
TM-32T
TO AF1 (PFM)
FC1
RED
WHITE
BLACK
U
V
W
IC2
Q4
AF ON H
AF OFF L
(AF CONT)
(AF ARM) ERROR H
R33
R32
R31
R30
R29
R28
390 U
390 X
390 V
390 Y
390 W
390 Z
6
5
4
3
2
1
BCN11
CN8
TH3
(THERMISTOR for OUTDOOR TEMP.)
TH2
(THERMISTOR for HEAT-EXCHANGER)
TH1
(THERMISTOR for COMPRESSOR)
R38
6.8KF
C26
16V 10µF
5V
C22
16V 10µF
C21
16V 10µF
R21
6.8KF
R20
6.8KF
C15
10V 220µF
R10
6.8KF
R8
1.80KF
R9
1.00KF
D2
1
2
3
1
2
3
5V
C23
50V 1µF
PST
993D
IC3
OSC1
10MHz
5V
5V
C17
10V 100µF
2
1
F
R46
10K
JP1
R34
10K
5V
NC
WINTER-KIT
4
3
2
1
CN10
5V
33
34
35
36
37
38
39
40
41
42
43
44
45
46
47
48
49
50
51
52
53
54
55
56
57
58
59
60
61
62
63
64
32
31
30
29
28
27
26
25
24
23
22
21
20
19
18
17
16
15
14
13
12
11
10
09
08
07
06
05
04
03
02
01
P27
P26
P25
P24
P23
P22
P21
P20
P17
P16
P15
P14
P13
P12
P11
P10
P07
P06
P05
P04
P03
P02
P01
P00
V
SS
P37
P36
P35
P34
P33
P32
V
CC
VSS
XI
X0
MOD1
MOD2
RST
P60
P61
P62
P63
P64
AV
SS
AVR
AV
CC
AN7
AN6
AN5
AN4
AN3
AN2
AN1
AN0
P40
P41
P42
P43
P44
P45
P46
P47
P30
P31
NC
NC
NC
NC
NC
NC
NC
NC
NC
NC
NC
NC
NC
NC
NC
NC
IC1 MB89855
C16
25V 0.1µF
C20
10V 100µF
5V
(AF CONT)
(AF ARM) ERROR H
R3
2.2K
5V
LED1
C5
430V 1.5µF
WPE3
250V
3A
NR2
Fan
Motor
4-WAY
Valve
5
3
1
3
1
CN3
T11
CN4
RY1
CNR1
RY2
CNR2
(WINTER KIT)
C12
250V 4700pF
C14
50V 1000pF
C13
25V 0.01µF
R4
D1
3.3K
R6
2.7K
R5
5.6K
R7
4.7K
PC817X7
PC1
PC2
PC853H
1
23
4
1
23
4
5V
R11
2W 1.0K
R12
2W 1.0K
R13
2W 1.0K
R17
10K
R16
10K
13V
RY2
D7
Q2
RY1
D6
Q1
MRY1
D8
Q3
5V
NR1
SA1

Other manuals for Sharp AY-XP13CE

Related product manuals