EasyManua.ls Logo

Sharp LC-52LE832U - Chapter 8: Wiring and Block Diagrams; Overall Wiring Diagram (LC-40;46;52;60 LE835 U)

Sharp LC-52LE832U
110 pages
Print Icon
To Next Page IconTo Next Page
To Next Page IconTo Next Page
To Previous Page IconTo Previous Page
To Previous Page IconTo Previous Page
Loading...
LC-40/46/52/60LE835U/830U/832U/LC-60LE831U
8 – 1
LC-40LE830U
Service Manual
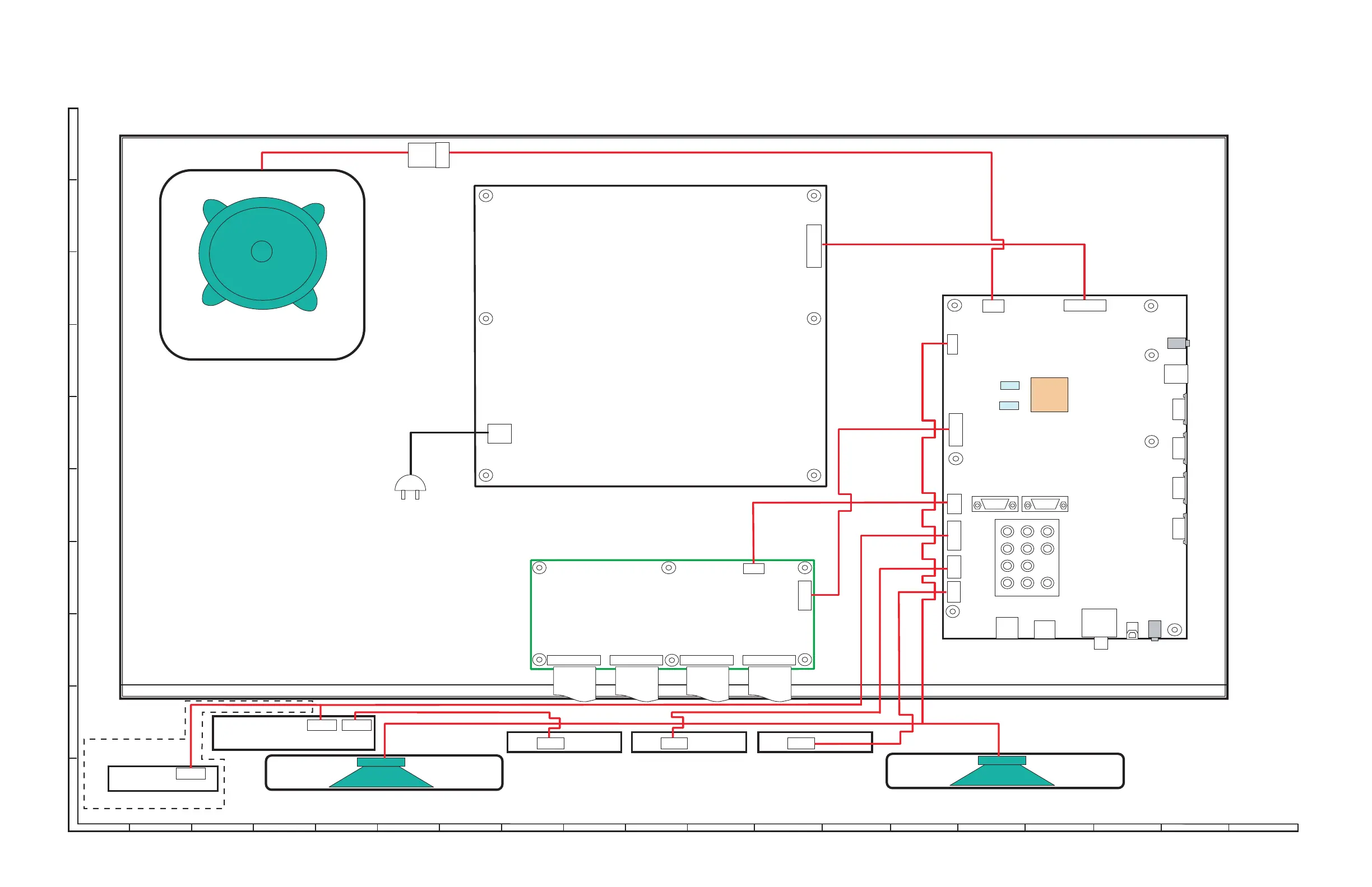
CHAPTER 8. OVERALL WIRING/SYSTEM BLOCK DIAGRAM
[1] OVERALL WIRING DIAGRAM (LC-40/46/52/60LE835U)
1
23
1097654
8
J
A
B
C
D
E
F
G
H
I
1311 191816151412 17
ޣCI ޤ
13
ICON Unit
DUNTKF770FM03
ޣLWޤ
164164
1
41
RchRSP-ZA511WJQZ (40"/46")
RSP-ZA512WJQZ (52"/60")
MAIN Unit
40"DKEYMF733FM16
46"DKEYMF733FM14
52"DKEYMF733
FM13
60"DKEYMF733FM12
ޣRCޤ
1
15
1
5
ޣSPޤ
ޣPDޤ
POWER/LED Drive Unit
40"RUNT KA786WJQZ
46"RUNT KA790WJQZ
52"RUNT KA794WJQZ
60"RUNT KA798WJQZ
14
ޣPLޤ
13
ޣACޤ
TUNER
HDMIHDMI
24
1
12
ޣSBޤ
WOOFERRSP-ZA513WJQZ
LCD Control Unit
40"RUNTK4909TPZS
46"RUNTK4909TPZW
52"RUNTK4909TPZF
60"RUNTK4909TPZA
ޣIRޤ
IR Emitter Unit
RUNTKA819WJQZ
ޣTKޤ
Touch Sensor Unit
RUNTKA811WJQZ
1
6
ޣUBޤ
HDMI
124
ޣPDޤ
ޣLWޤ
1
41
1
4
ޣPLޤ
1
3
ޣCIޤ
ޣUBޤ
16
WiFi Unit
RUNTKA810WJQZ
ޣRAޤ
15
R/C, Operation Unit
DUNTKF494FM01
11216
ޣRAޤ
14
HDMI
USB
USB
ETHER
NET
1
2
1
2
180 180
LchRSP-ZA511WJQZ (40"/46")
RSP-ZA512WJQZ (52"/60")
LC-40/46/52/60LE835U Only

Related product manuals