EasyManua.ls Logo

Sharp MX-3500N - Page 306

Sharp MX-3500N
448 pages
Print Icon
To Next Page IconTo Next Page
To Next Page IconTo Next Page
To Previous Page IconTo Previous Page
To Previous Page IconTo Previous Page
Loading...
MX3500N ELECTRICAL SECTION 11 – 7
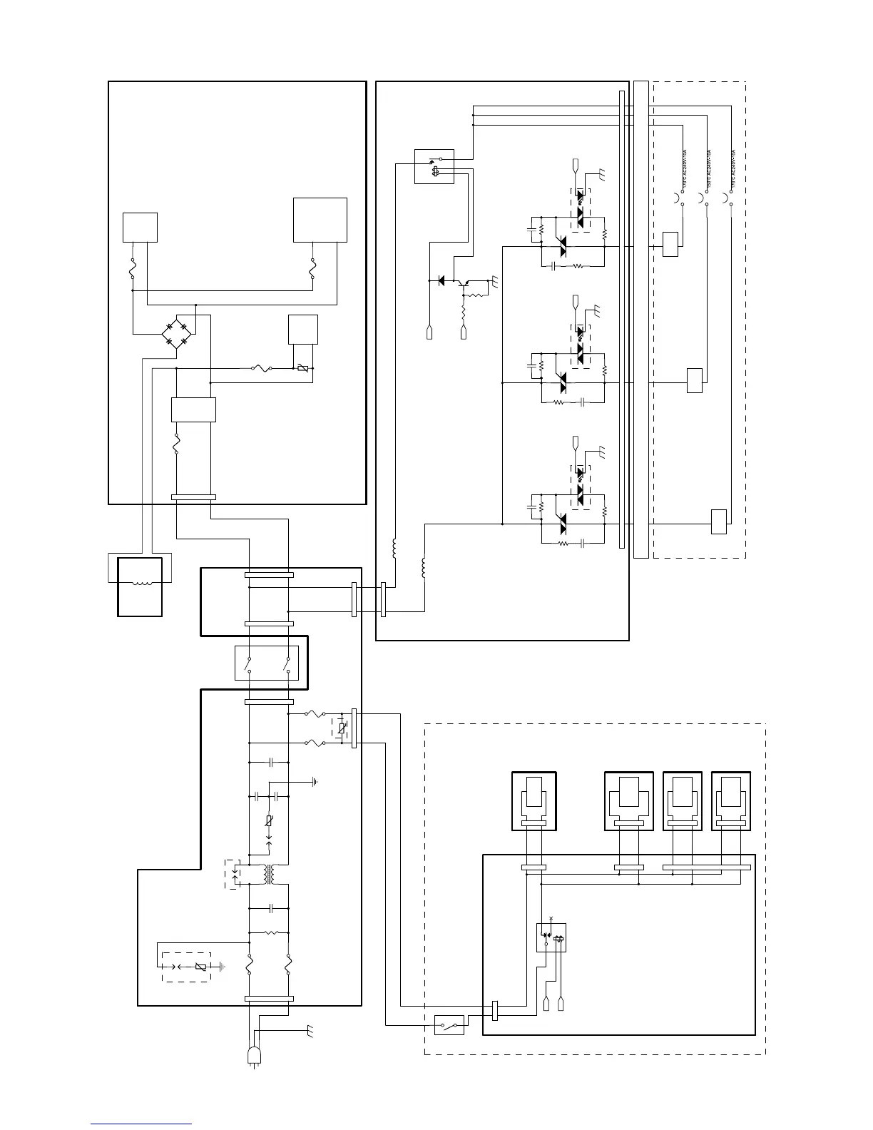
G. AC power line diagram (200V series)
HLOUT_UM
INT24V1
HLOUT_LM
/HL_PR
HLOUT_US
24V2
GND
L
N
T10AH/250V
T10AH/250V
AC PWB
2
6
RY1
6
2
G
HL PWB
T2
GND
1
G
4
4
GND
T1
1
T2
drawer
TD1
SSR1 SSR2
HL MAIN
THERMOSTAT TS_LM
THERMOSTAT TS_UM
FUSING UNIT
HL LOW
THERMOSTAT TS_E
HL E
6
2GND
G
4
1
SSR3
T1 T1
T2
MAIN POWER SW
WH-L
WH-N
NC
WH PWB
NO
10W
LCC
T2.0AH/250V
WH-L WH-N
F3 F4
T2.0AH/250V
AC IN
TD2
TD3
10W
DESK
MAIN UNIT
10W
MAIN UNIT
SCN
SCN unit
5W
no-mounting
no-mounting
DESK
OPTION
OPTION
LCC
WARM HEATER SET : OPTION
no-
mounting
Voltage
Generation
+24V1
+24V2
+24V3
+24V4
+24V5
+12V
+5Vn
+3.3V
FW
Generating
Circuit
DC POWER SUPPLY
T8AH/250V
T3.15AH/250V
T6.3AH/250V
N/F
T3.15AH/250V
Voltage
Generation
+5Vo
+5VL
OPTION
10mH
3A
Reactor
VR3
F103
A1
VR2VR2
~
~
+-
D102
~
~
+-
D102
WH-SWWH-SW
F101
L2L2
L1L1
VR1
Z101
A2
F2
A1
F102
F1
F301
RY1

Table of Contents

Other manuals for Sharp MX-3500N

Related product manuals