EasyManua.ls Logo

Sharp PN-Q801 - Page 103

Sharp PN-Q801
116 pages
Print Icon
To Next Page IconTo Next Page
To Next Page IconTo Next Page
To Previous Page IconTo Previous Page
To Previous Page IconTo Previous Page
Loading...
TR 4
ENGLISHITALIANO DEUTSCHESPAÑOL FRANÇAISTÜRKÇE РУССКИЙ
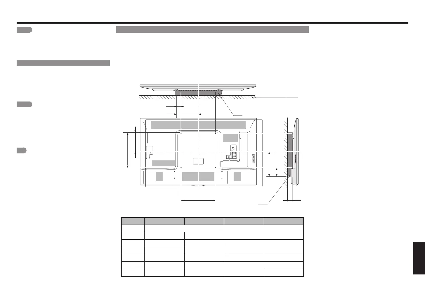
Monitörü Duvara Monte Etmek
Duvara Monte Kiti Özellikleri
Duvara monte kiti için standart ölçüler aşağıda gösterilmiştir
*1
: DUVAR
*2
: DUVARA MONTE KİTİ
a1
: Monte deliğinden maksimum uzaklık.
a2 : Monitör merkezinden maksimum uzaklık.
b1 : Monitör merkezi ve monte deliği arasındaki uzaklık.
b2 : Monitör merkezinden maksimum uzaklık.
b3 : Monte deliğinden maksimum uzaklık.
c1 : Minimum boşluk.
A
b1
B
b3
c1
b2
a2
a1
*2
*1
*2
Birim: inch (mm)
PN-Q901 PN-Q801 PN-Q701 PN-Q601
(A-B) 23 5/8 (600) - 15 3/4 (400) 15 3/4(400) - 15 3/4(400)
a1 1 37/64 (40) 2 3/8 (60) 2 3/8 (60)
a2 13 25/64 (340) 14 3/16 (360) 10 1/4 (260)
b1 7 7/8 (200) 8 9/32 (210) 8 9/32 (210) 8 43/64 (220)
b2 14 49/64 (375) 10 61/64 (278) 10 29/32 (277) 10 9/16 (268)
b3 6 57/64 (175) 3 7/16 (87) 3 7/16 (87)
c1 3 5/32 (80) 2 9/16 (65) 1 15/16 (49) 1 31/32 (50)
DİKKAT
Monitör kurulumu uzmanlık gerektirdiği için
yalnıza yetkili servis personeli tarafından
gerçekleştirilmelidir. Müşteriler bu işlemi kendileri
yapmayı denememelidir. SHARP, uygun olmayan
veya kaza ya da yaralanmayla sonuçlanan
montajlardan sorumlu değildir.
Duvara asmak
Duvara monte kiti (ayrı olarak satılır) Monitörü duvara monte
etmenizi sağlar. Duvara monte hakkında detaylı bilgi için
ürünle birlikte sağlanan talimatlara bakın.
Monte işlemi için bir teknisyenden yardım alınması tavsiye
edilmektedir.
Duvara monte işlemini kendiniz yapmanız halinde, ürüne
gelebilecek herhangi bir hasardan veya sizin ya da bir
başkasının yaralanmasından SHARP sorumlu değildir.
DİKKAT
Duvara monte aparatınızı, yere dik gelen sağlam
bir duvar üzerine kurun.
Monitörü kartonpiyer yüzeyden başka bir yüzeye
monte etmek istiyorsanız, lütfen detaylı bilgi için
size en yakın satıcıyla/servisle iletişime geçin.
Monitörü tavana veya eğik duvara monte etmek,
düşmesine ve ciddi ziksel yaralanmalara sebep
olabilir. Daima iki kişi Monitörü duvara monte
etmelidir.
NOT
Monitördeki uçbirimi yapılandırmasından dolayı, bu
modeli duvara monte ederken, duvar ve Monitör
arasında kablolar için yeterli boşluk olduğundan
emin olun.

Other manuals for Sharp PN-Q801

Related product manuals