EasyManua.ls Logo

Sharp PN-Q801 - Page 41

Sharp PN-Q801
116 pages
Print Icon
To Next Page IconTo Next Page
To Next Page IconTo Next Page
To Previous Page IconTo Previous Page
To Previous Page IconTo Previous Page
Loading...
ES 4
ITALIANO DEUTSCHESPAÑOL FRANÇAISTÜRKÇEРУССКИЙ ESPAÑOLITALIANO DEUTSCHESPAÑOL FRANÇAISTÜRKÇEРУССКИЙ
Colocar el monitor en la pared
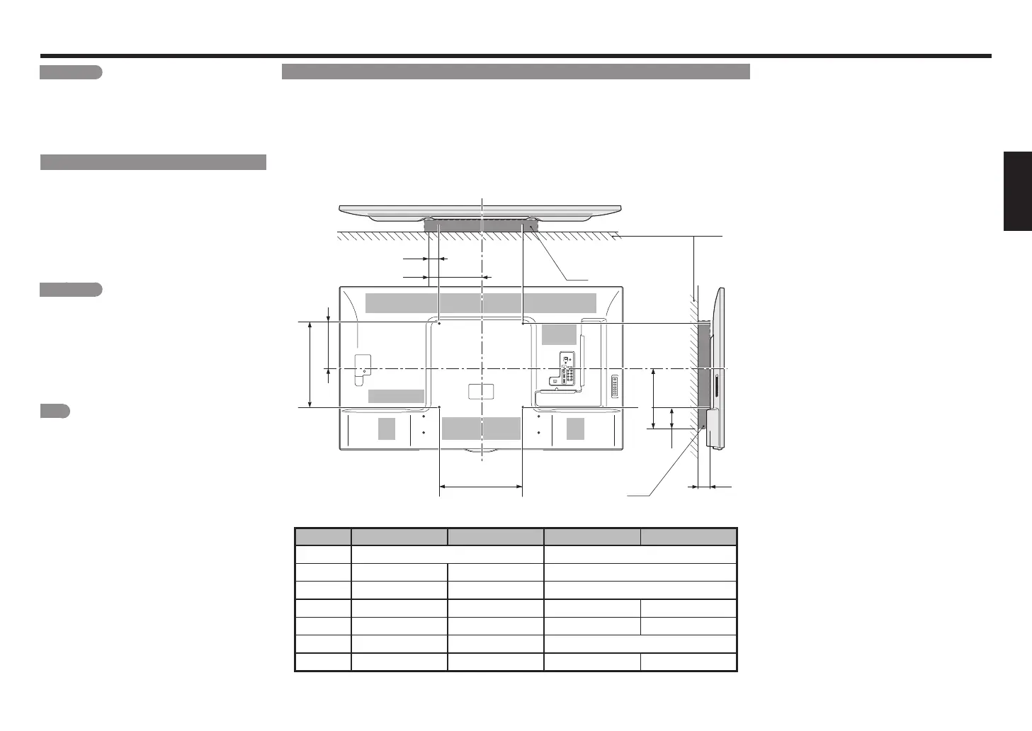
Especificaciones del kit de montaje en pared
Las dimensiones estándar para los kits de montaje en pared se muestran a continuación:
*1 : PARED
*2 : KIT DE MONTAJE EN PARED
a1 : Distancia máxima desde el agujero de montaje.
a2 : Distancia máxima desde el centro del monitor.
b1 : Distancia entre el centro del monitor y el agujero de montaje.
b2 : Distancia máxima desde el centro del monitor.
b3 : Distancia maxima desde el agujero de montaje.
c1 : Hueco mínimo.
A
b1
B
b3
c1
b2
a2
a1
*2
*1
*2
Unidad: pulgada (mm)
PN-Q901 PN-Q801 PN-Q701 PN-Q601
(A-B) 23 5/8 (600) - 15 3/4 (400) 15 3/4(400) - 15 3/4(400)
a1 1 37/64 (40) 2 3/8 (60) 2 3/8 (60)
a2 13 25/64 (340) 14 3/16 (360) 10 1/4 (260)
b1 7 7/8 (200) 8 9/32 (210) 8 9/32 (210) 8 43/64 (220)
b2 14 49/64 (375) 10 61/64 (278) 10 29/32 (277) 10 9/16 (268)
b3 6 57/64 (175) 3 7/16 (87) 3 7/16 (87)
c1 3 5/32 (80) 2 9/16 (65) 1 15/16 (49) 1 31/32 (50)
PRECAUCIÓN
Instalar el monitor en la pared requiere de
conocimientos especiales que solo debe poner
en práctica el personal de servicio cualificado.
Los clientes no deben intentar hacer el trabajo
ellos mismos. SHARP no se hace responsable
de montajes incorrectos o montajes que causen
accidentes o lesiones.
Colgar en la pared
El kit de montaje de pared (vendido por separado)
le permite montar el monitor en la pared. Para más
información detallada sobre la instalación del montaje
de pared, vea las instrucciones proporcionadas con el
producto.
Le recomendamos que contacte con un técnico para
obtener asistencia cuando lo esté instalando.
SHARP no se hace responsable de ningún daño al
producto o lesión a usted u otras personas si decide
instalar el montaje de pared por su cuenta.
PRECAUCIÓN
Instale su montaje de pared en una pared sólida
perpendicular al suelo.
Si quiere fijar el montaje de pared a superficies
que no sea yeso, contacte con su tienda/asesor
más cercano para obtener información adicional.
Si instala el monitor en la parte más alta de la
pared o en una pared inclinada, podría caer y
provocar lesiones personales graves. Siempre
tiene que haber dos personas montando el
monitor en la pared.
NOTA
Debido a la configuración del terminal en este monitor,
cuando monte en la pared este modelo, asegúrese de
que hay espacio suficiente entre la pared y el monitor
para los cables.
Para utilizar este monitor montado en una pared,
retire el soporte del cable de CA en la parte trasera
del monitor y utilice los tornillos suministrados con el
soporte de montaje en pared para asegurar el soporte
en la parte trasera del monitor.

Other manuals for Sharp PN-Q801

Related product manuals