EasyManua.ls Logo

Sharp PN-Q801 - Page 78

Sharp PN-Q801
116 pages
Print Icon
To Next Page IconTo Next Page
To Next Page IconTo Next Page
To Previous Page IconTo Previous Page
To Previous Page IconTo Previous Page
Loading...
IT 4
Installare a muro il monitor
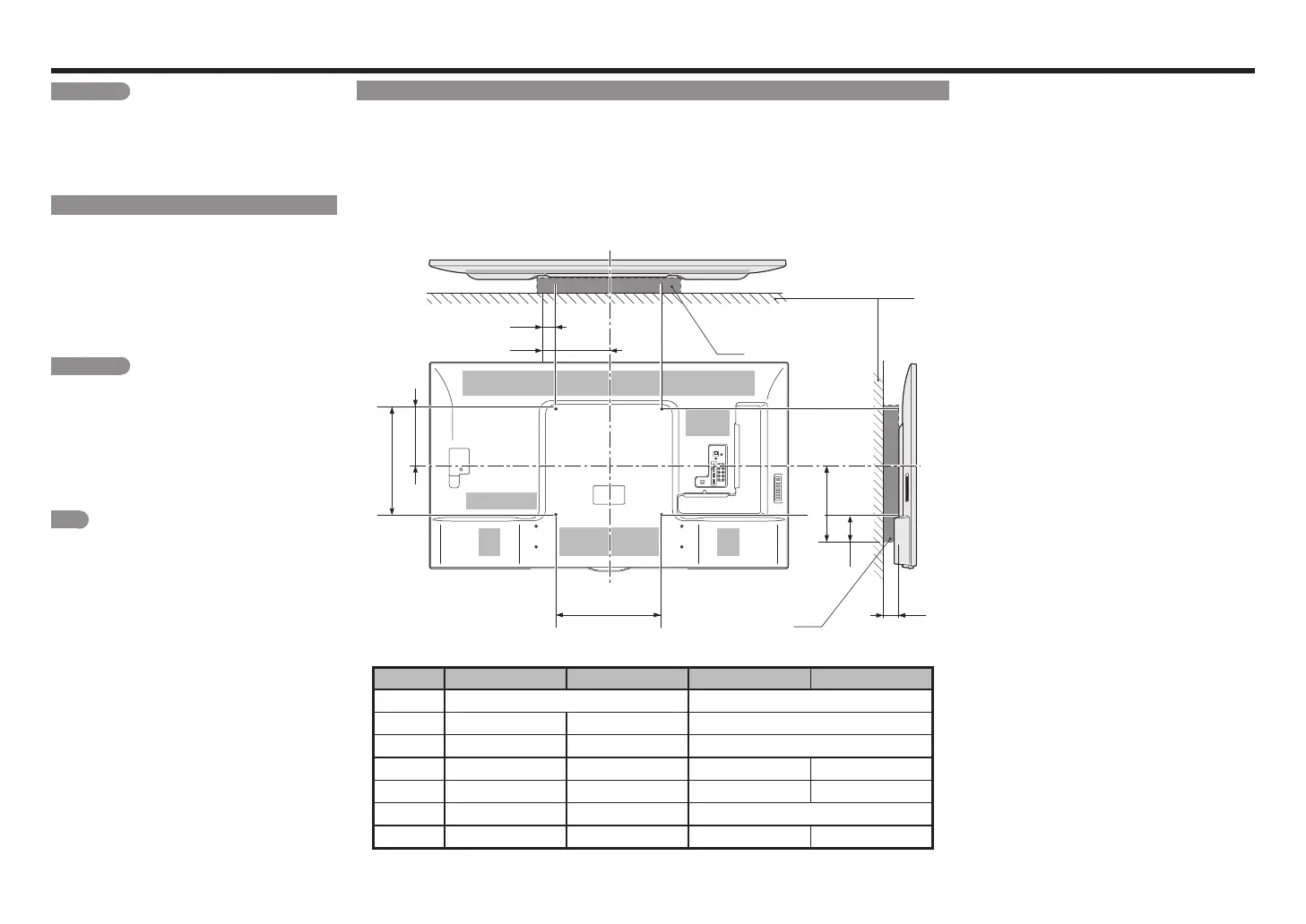
Specifiche tecniche del kit per il montaggio a muro
Le dimensioni standard di montaggio a muro sono le seguenti
*1 : MURO
*2 : KIT DI MONTAGGIO A MURO
a1 : Massima distanza dal foro di montaggio.
a2 : Massima distanza dal centro del monitor.
b1 : Distanza tra il centro del monitor e il foro di montaggio.
b2 : Massima distanza dal centro del monitor.
b3 : Massima distanza dal foro di montaggio.
c1 : Distanza minima.
A
b1
B
b3
c1
b2
a2
a1
*2
*1
*2
Unità: pollice (mm)
PN-Q901 PN-Q801 PN-Q701 PN-Q601
(A-B) 23 5/8 (600) - 15 3/4 (400) 15 3/4(400) - 15 3/4(400)
a1 1 37/64 (40) 2 3/8 (60) 2 3/8 (60)
a2 13 25/64 (340) 14 3/16(360) 10 1/4 (260)
b1 7 7/8 (200) 8 9/32 (210) 8 9/32 (210) 8 43/64 (220)
b2 14 49/64 (375) 10 61/64 (278) 10 29/32 (277) 10 9/16 (268)
b3 6 57/64 (175) 3 7/16 (87) 3 7/16 (87)
c1 3 5/32 (80) 2 9/16 (65) 1 15/16 (49) 1 31/32 (50)
ATTENZIONE
L'istallazione del monitor richiede capacità
specifiche e dovrebbe essere eseguita
esclusivamente da personale qualificato. Il cliente
non dovrebbe provare a farlo da solo. SHARP
non ha alcuna responsabilità per un montaggio
improprio, o nel caso di un montaggio che porti ad
incidenti o infortuni.
Montaggio a muro
Il kit di montaggio a muro (venduto separatamente)
permette di montare a muro il monitor. Per informazioni
dettagliate sull'istallazione del supporto a muro, guardare
le istruzioni fornite assieme al prodotto.
Nel caso di istallazione, raccomandiamo di contattare un
tecnico specializzato per l'assistenza.
SHARP non è responsabile per qualsiasi danno al
prodotto, o infortunio nei vostri confronti o nei confronti
di altre persone, nel caso decidiate di installare voi stessi
il supporto a muro.
ATTENZIONE
Installate il vostro supporto a muro su di una
parete solida perpendicolare al pavimento.
Quando desiderate installare il supporto a muro
su superfici differenti da pareti di calcestruzzo,
contattate il vostro rivenditore/consulente più
vicino per informazioni addizionali. Se installate il
monitor a soffitto, o su pareti inclinate, potrebbe
cadere e causare gravi infortuni personali. Per
il montaggio a parete del monitor è sempre
necessario essere in due persone.
NOTA
A causa della configurazione degli ingressi di
questo monitor, quando monterete a muro questo
modello, assicuratevi che tra il muro e il monitor ci sia
abbastanza spazio per i cavi.
Per utilizzare questo monitor montato a muro,
rimuovere il sostegno del cavo di alimentazione nella
parte posteriore del monitor, e successivamente le
viti fornite con il supporto per il montaggio a muro, in
modo da assicurare il supporto alla parte posteriore
del monitor.

Other manuals for Sharp PN-Q801

Related product manuals