EasyManua.ls Logo

Sharp R-410HK - Page 34

Sharp R-410HK
44 pages
Print Icon
To Next Page IconTo Next Page
To Next Page IconTo Next Page
To Previous Page IconTo Previous Page
To Previous Page IconTo Previous Page
Loading...
32
R-410HK
R-410HW
R-409HK
6
45
1
2
3
6
45
1
2
3
A
B
C
D
E
F
G
H
A
B
C
D
E
F
G
H
R7
4 - R7
8
:2
70Kx5
C60 - C64
:3
30pF
/
5
0Vx
5
OVEN LAMP
TURN
TABL
E
MOTOR
FA
N
M
OTOR
PO
WE
R
TR
AN
SFO
R
M
E
R
DOO
R
SENSING
SWITCH
G
10
G
11
G
12
G
13
G9
G8
G7
G6
G5
G4
G3
G2
G1
NO
NO
B-
1
B-
2
C1
R3
C2
R2
2SA9
33AS
R5
Q2
R
6
3.3K
1
/4W
1
0
u
/3
5V
C
5
D5 D6
27
1/4 W
R4
510
1/
2
W
(J
1
)
V
RS
1
10
G471
K
-5V
INT
BZ
M
D1
- D4
2
2
0
0
u
F
2
5
V
AN5 AN
6
P20
P21
P22
P23
P24
P25
P26
P27
AN7
IC1
BL
NL
CF1
1
24
25
40
41
64
65
80
P
OP
CORN
9
3
6
2
5
8
0
1
4
7
TIMER
CLO
CK
COO
K
START
STOP
CL
EAR
*
*
*
*
W
he
n do
or i
s cl
ose,
Key can
be oper
at
ed.
LIQUID CRYSTAL DISPLAY
N
O.
LBS.
C
UPS
KG OZ.
COOK
SENSOR
DEFROST
AUTO%
VL2
VL1
AN
7
AN
6
AN
5
AN
4
AN
3
AN
2
AN
1
AN
0
P57
P56
P55
CNTR0
P
53
P
52
P
51
P
50
P
47
P
46
P
45
P
44
P
4
3
IN
T0
S
E
G
8
SEG
9
S
E
G10
S
E
G
11
S
E
G
12
S
EG
13
S
E
G
14
S
E
G
15
S
E
G
16
S
E
G17
SEG
18
S
E
G
19
SE
G
20
S
EG21
S
EG
22
S
E
G
23
S
E
G
24
S
E
G
25
P
12
P
13
P
14
P
15
P
16
P
17
P41
P40
R
E
SET
P71
P7
0
XI
N
XOUT
V
SS
P27
P26
P25
P2
4
P23
P22
P21
P20
VL3
COM0
CO
M1
COM2
COM3
AVSS
VREF
VC
C
SEG0
SEG1
SEG2
SEG3
SEG4
SEG
5
SEG6
SEG7
C
ST
4.
00MGW
R67
15K
R66
15K
R65
15K
R
64
15K
R63
15K
R62
15K
R61
15K
R60
15K
R80
1M
R
110
15K
(G)
(F)
P
O
WE
R
L
EVEL
CLEA
R
KEY U
N
IT
DE
F
ROS
T
M
INUTE
P
L
US
REHEAT
R
7
8
R77
R76
R75
R
74
C64
C
63
C62
C61
C60
R
68
15K
R
69
15K
R70
15K
R
7
1
15K
R
72
15K
P70
P71
P41
P45
(G)
CPU UN
I
T
R
41
15K
R
40
4
.
7K
C
4
0
0.
01uF
25V
POWER U
N
IT
D
OO
R
C
O
M
Q20
DTA143E
KA
Q4
D
T
A12
3JS
Q3
DTD14
3ES
SP1
Q30
DT
A143EK
A
C20
0.
1uF50
V
(F)
1SS2
70A
x2
4.
7K 1
/4W
JUMPER
WI
ER
C
1
0
47u
F/
1
6V
1N40
02x4
WH-1
WH-1
1
2
LD
4LD3LD2
LD
1
AC
(N)
COM
COM
AC(H)
a
b
d
c
T1
PA151D
R
D
30
1SS
270A
D
31
1SS
270A
RY2
D
U
12D1-
1
P
(M
)-
R
RY1
D
U12
D
1
-1P(M)-
R
D
7
1
S
S
2
7
0
A
D
8
1
S
S
2
7
0
A
GND
C
1
1
0.
1uF/
50V
C
1
2
0.
1uF
50V
Q11
DTA14
3E
KA
R
1
2
15K
C
1
3
0.
01uF25V
R
1
0
1K
ZD1
0
U
D
Z4.
3B
Q
102
SA
10
37A
K
C14
R11
15K
0.01uF25V
(J10)
(J11)
GND
R1
3
10
K
R1
4
10
K
R1
5
10
K
(J12)
4.7K
AN4
(J15)
20K
(J17)
4.7K
(J13)
3.6K
4.
7K
(J16)
3.6K
(J14)
4.7K
COM0
COM1
COM2
COM3
COM2
COM1
SEG21
SE
G20
SE
G19
SE
G18
S
EG17
S
EG16
SEG15
SEG14
SEG13
SEG12
SEG11
SEG10
SEG9
SEG8
SEG7
SEG6
SEG5
SEG4
SEG3
SEG2
SEG1
SEG0
:I
F NOT S
P
ECIFIE
D 1
/1
0
W
±
5
%
NO
TE
0.1
uF
50V
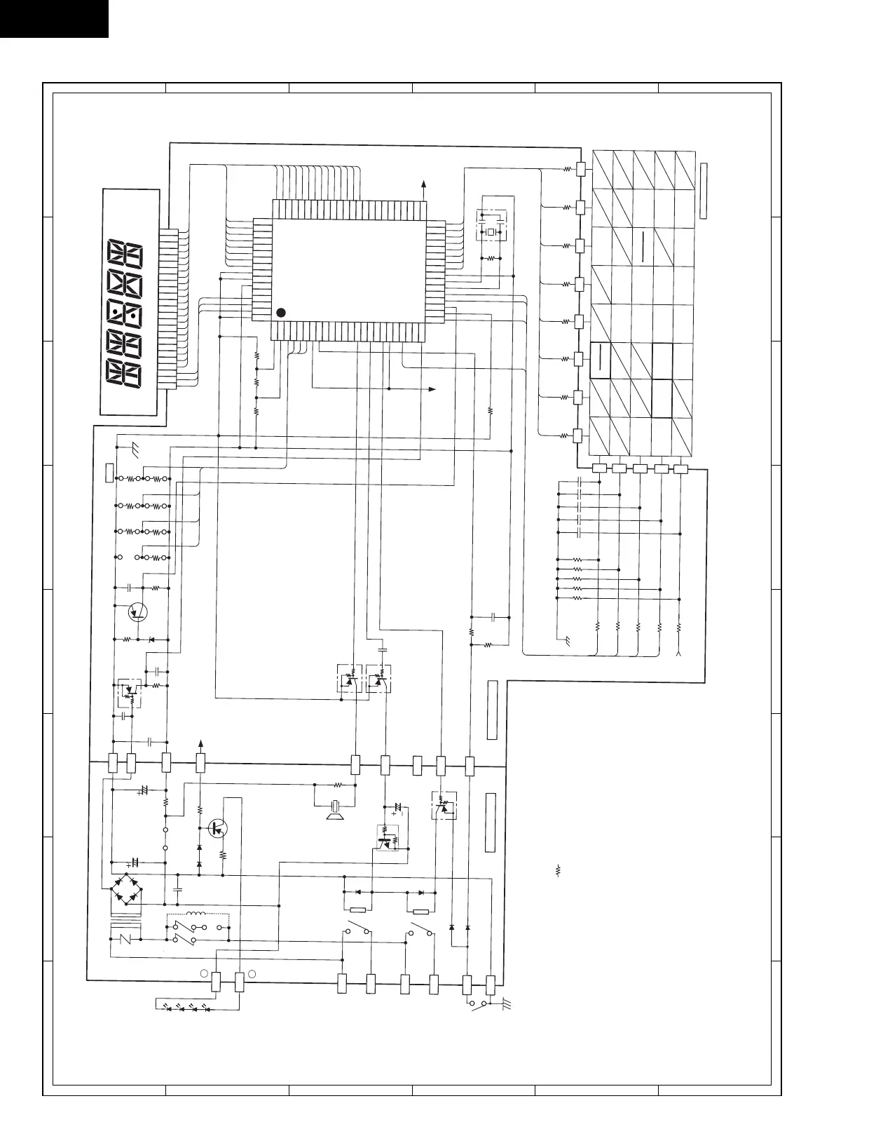
Figure S-3. Control Unit Circuit (R-409HK)

Related product manuals