EasyManua.ls Logo

Sharp SJ-FS810V - Automatic Ice Maker

Sharp SJ-FS810V
36 pages
Print Icon
To Next Page IconTo Next Page
To Next Page IconTo Next Page
To Previous Page IconTo Previous Page
To Previous Page IconTo Previous Page
Loading...
14
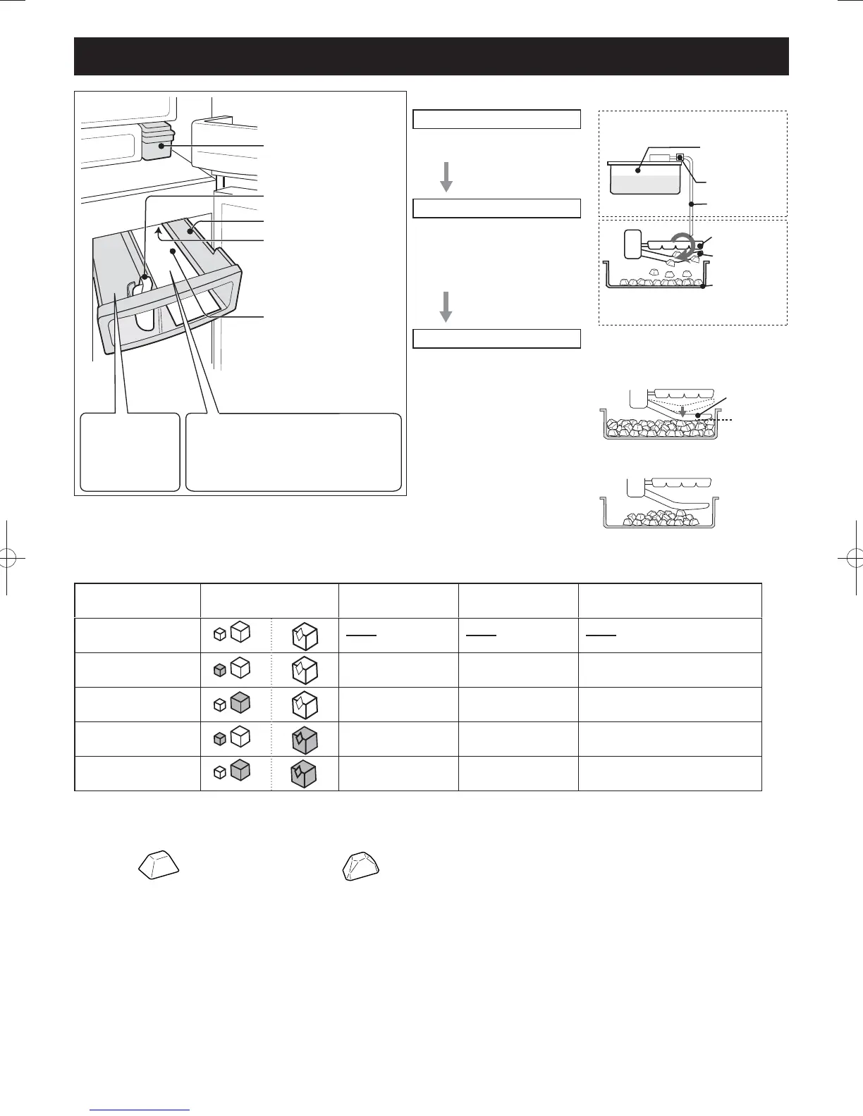
Detection lever
The volume of ice cubes are
checked periodically by the
detection lever.
Ice cube volume will decrease when
the ice cubes are not smoothed.
AUTOMATIC ICE MAKER
Water tank
(Approx. 1.8 L)
Shovel
Ice storage box
Noise-prevention
sheet
To turn down the
dropping sound of ice
cubes.
Do not throw away
this sheet.
Ice storage area
Stored ice cube volume (Maximum)
Normal size ice : Approx. 232 pcs.
Large size ice : Approx. 112 pcs.
Food area
Store the small
frozen food.
How ice cubes are made
Water supply
Water is sent from the water
tank to the ice tray.
Ice making
Ice cubes are made.
(8 pieces at one time)
The number of ice cubes
per cycle may sometimes
change.
Releasing
Ice tray rotates, releasing
the ice and returns to “Water
supply”.
The ice tray will not rotate
when the ice storage box is
full.
<Refrigerator compartment>
Water tank
Pump
Pipe
Ice tray
Detection
lever
Ice storage
box
<Freezer compartment>
Detection
lever
Full volume
(About half the volume)
Kinds of ice making mode
There are 5 modes you can choose as shown below.
The size or the clarity of ice cube differs according to the selected mode.
Mode Icon Ice size Clarity of ice
Required time
for each ice making
Ice making OFF
[
Normal ice
[
Normal Normal Approx.2 hours
Large ice
[
Large Normal Approx.3 and a half hours
Clear ice
(Normal size)
[
Normal High Approx.6 hours
Clear ice
(Large size)
[
Large High Approx.8 hours
NOTE
2 types of ice cube are made at the same time.
Cube Multifaceted shape
More than one mode cannot be selected at one time.
The ice making time as shown above is only a rough indication at
the ambient temperature of 30°C, the temperature adjustment set
to Med, Energy saving turned off, and with no opening or closing
of the doors.
Ice making right after changing the mode
The rst batch of ice cubes made right after changing the
operating mode does not re ect the change in size or clarity. This
is because there are still half-made ice cubes left in the ice tray
when switching to the changed mode. Ice cubes of the 2nd batch
or later will re ect the mode change.
Ice making takes longer when:
The room temperature is high.
Less cooling operation, e.g. in winter.
Many food products are stored.
Refrigerator is defrosting.
The door is frequently opened.
When you restart the ice making operation.
Energy saving mode is in operation.
The clarity of clear ice is declined
under the following conditions
Ice making is carried out for the rst time.
Large amount of food is stored in the other compartments.
Energy saving or Express freezing is in operation.
The temperature is set higher or lower than the initial temperature
adjustment. (Refrigerator : 3°C, Freezer : -18°C)
Ice tray
Ice tray is located at
the upper section in
the back.
(Unremovable)
(B423)W1.indb14(B423)W1.indb14 2013/04/1818:24:382013/04/1818:24:38

Related product manuals