EasyManua.ls Logo

Sharp SJ-P482N - Описание

Sharp SJ-P482N
Print Icon
To Next Page IconTo Next Page
To Next Page IconTo Next Page
To Previous Page IconTo Previous Page
To Previous Page IconTo Previous Page
Loading...
4
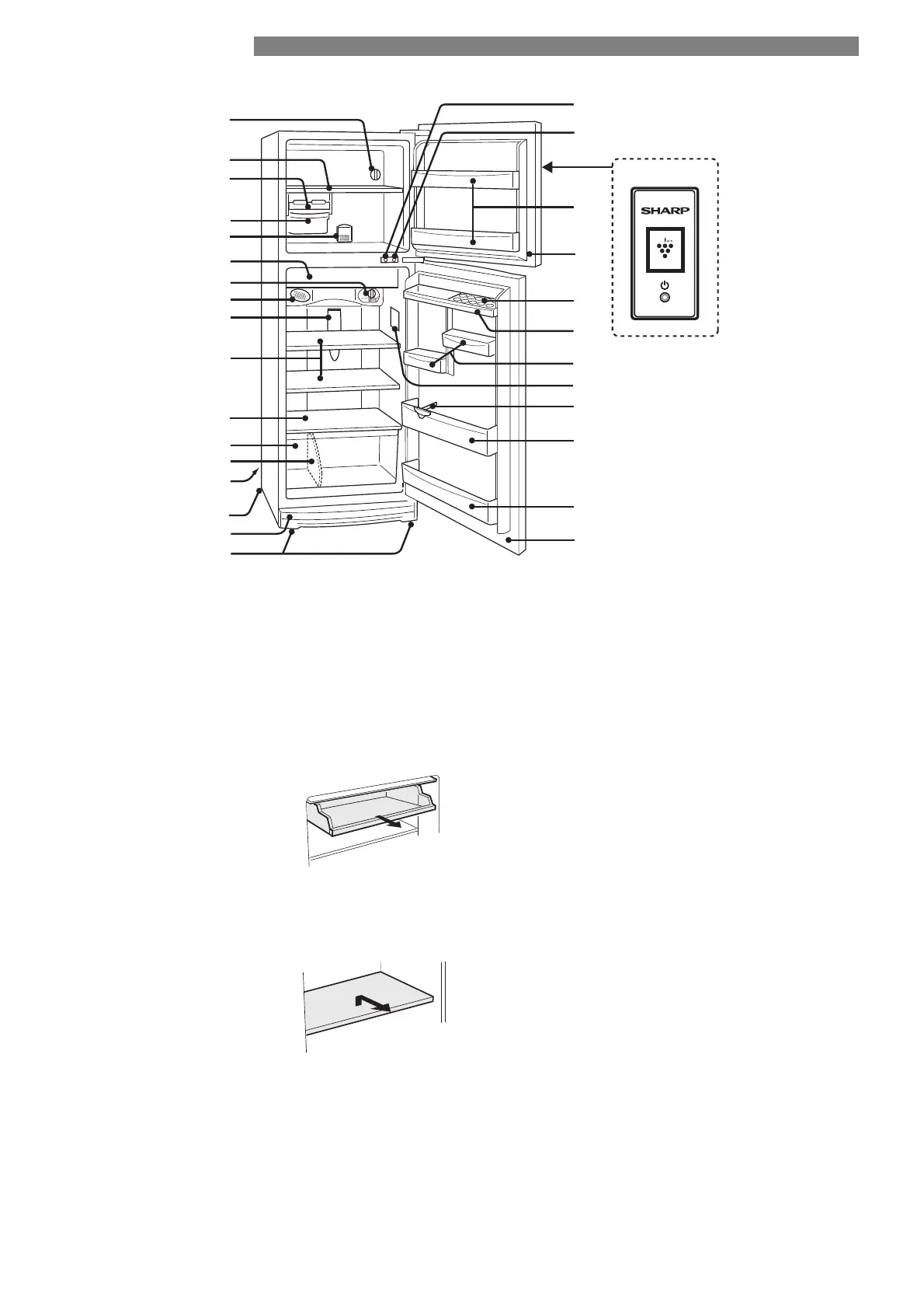
ОПИСАНИЕ
1. Ручка регулировки температуры
морозильной камеры
2. Полка морозильной камеры
3. Секция приготовления кубиков льда
4. Коробка для кубиков льда
5. Дезодорирующий элемент
6. Камера для свежих
продуктов
Крышка камеры для свежих
продуктов открывается, если
потянуть выдвигающуюся
полку на себя.
7. Ручка регулировки температуры
холодильной камеры
8. Освещение
9.
Полка холодильника
Для того, чтобы вынуть ее,
потяните ее слегка вверх, а
затем выньте ее.
10. Полка
11. Секция для хранения овощей
12. Разделительная пластина
13. Выпарной лоток (задняя сторона)
14. Ролики
15. Ножная крышка
16. Регулируемые ножки
17. Выключатель вентиляции
18. Выключатель вентиляции и
освещения
19. Отсек для бутылок
20. Дверной магнитный затвор
21. Держатель яиц
22. Дверное отделение для яиц
23. Малый отсек
В этих отсеках можно хранить продукты небольшого
размера. Продукты большого размера, типа бутылок с
соком, могут выпасть из такого отсека при открывании
или закрывании дверцы.
24. Предохранительное приспособление
для бутылок
25. Отсек для бутылок
26. Панель Ионизатор "PLASMACLUSTER"
27. Этикетка функции
Информация о содержании, такая как объем и
наружные размеры.
1
2
3
4
5
5
7
8
9
10
11
12
13
14
16
15
17
18
19
20
22
23
21
24
25
19
20
6
26
Plasmacluster
27
(A986)_RUS.fm Page 4 Thursday, February 19, 2009 3:46 PM

Related product manuals