EasyManua.ls Logo

Sharp VC-GH61SM - Page 57

Sharp VC-GH61SM
91 pages
Print Icon
To Next Page IconTo Next Page
To Next Page IconTo Next Page
To Previous Page IconTo Previous Page
To Previous Page IconTo Previous Page
Loading...
111110
VC-GH61GM/SM,GH611GM
VC-GH60SM,GH600SM,GH601SM
VC-FH310GM/SM
VC-GH61GM/SM,GH611GM
VC-GH60SM,GH600SM,GH601SM
VC-FH310GM/SM
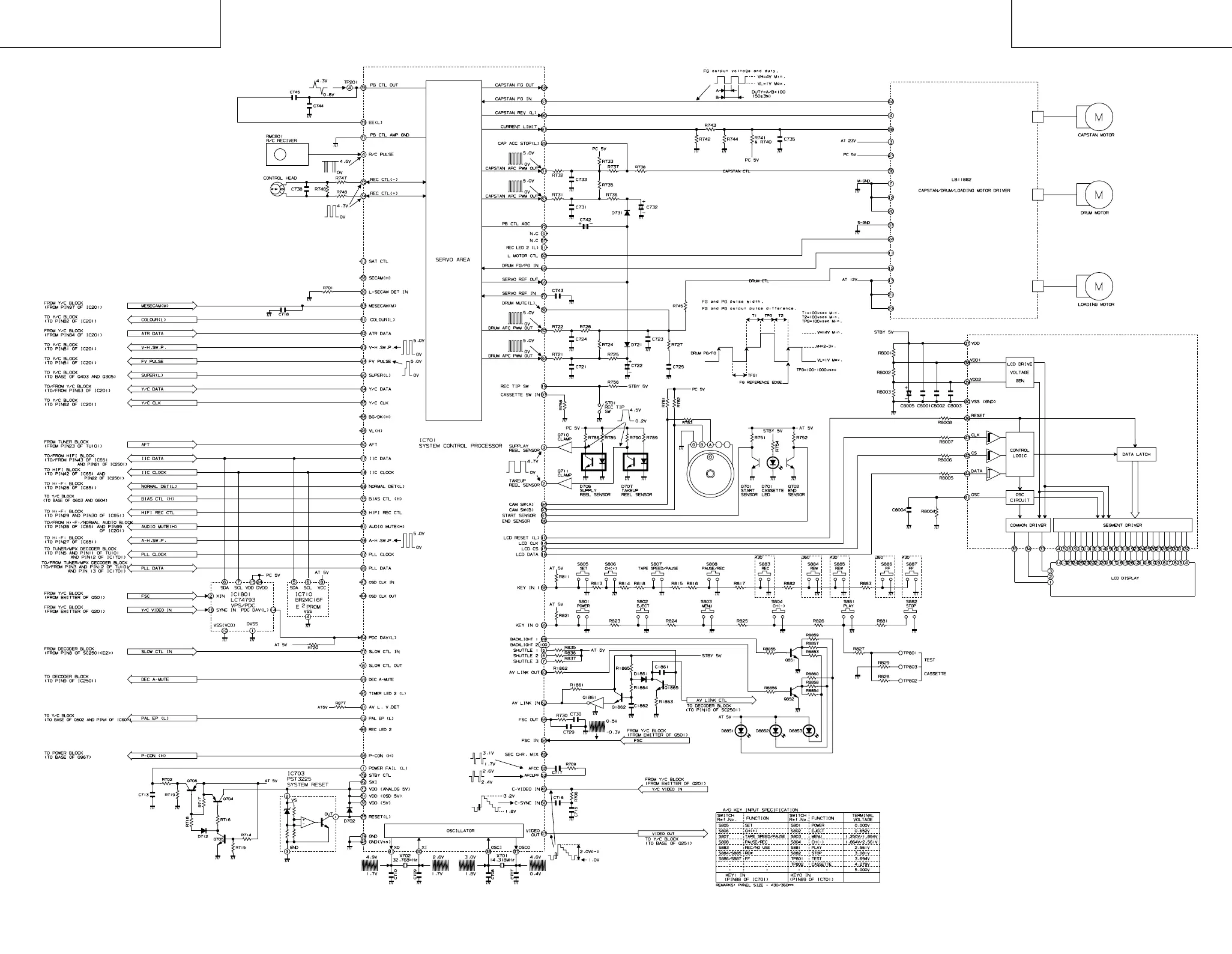
SYSTEM SERVO BLOCK DIAGRAM / SYSTEMS-SERVO-BLOCKSCHALTBILD

Related product manuals