EasyManua.ls Logo

Sharp VE-CG30U - Page 41

Sharp VE-CG30U
67 pages
Print Icon
To Next Page IconTo Next Page
To Next Page IconTo Next Page
To Previous Page IconTo Previous Page
To Previous Page IconTo Previous Page
Loading...
VE-CG30U
VE-CG40U
57
10 11 12 13 14 15 16 17 18 19
A
B
C
D
E
F
G
H
I
J
12345678910
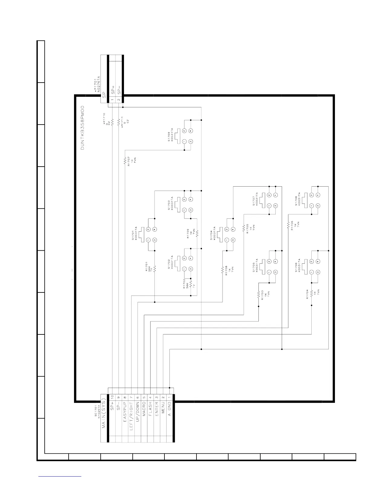
8-15. OPERATION SCHEMATIC DIAGRAM (VE-CG40U)

Related product manuals