EasyManua.ls Logo

Sharp VE-CG30U - Page 42

Sharp VE-CG30U
67 pages
Print Icon
To Next Page IconTo Next Page
To Next Page IconTo Next Page
To Previous Page IconTo Previous Page
To Previous Page IconTo Previous Page
Loading...
58
VE-CG30U
VE-CG40U
A
B
C
D
E
F
G
H
I
J
12345678910
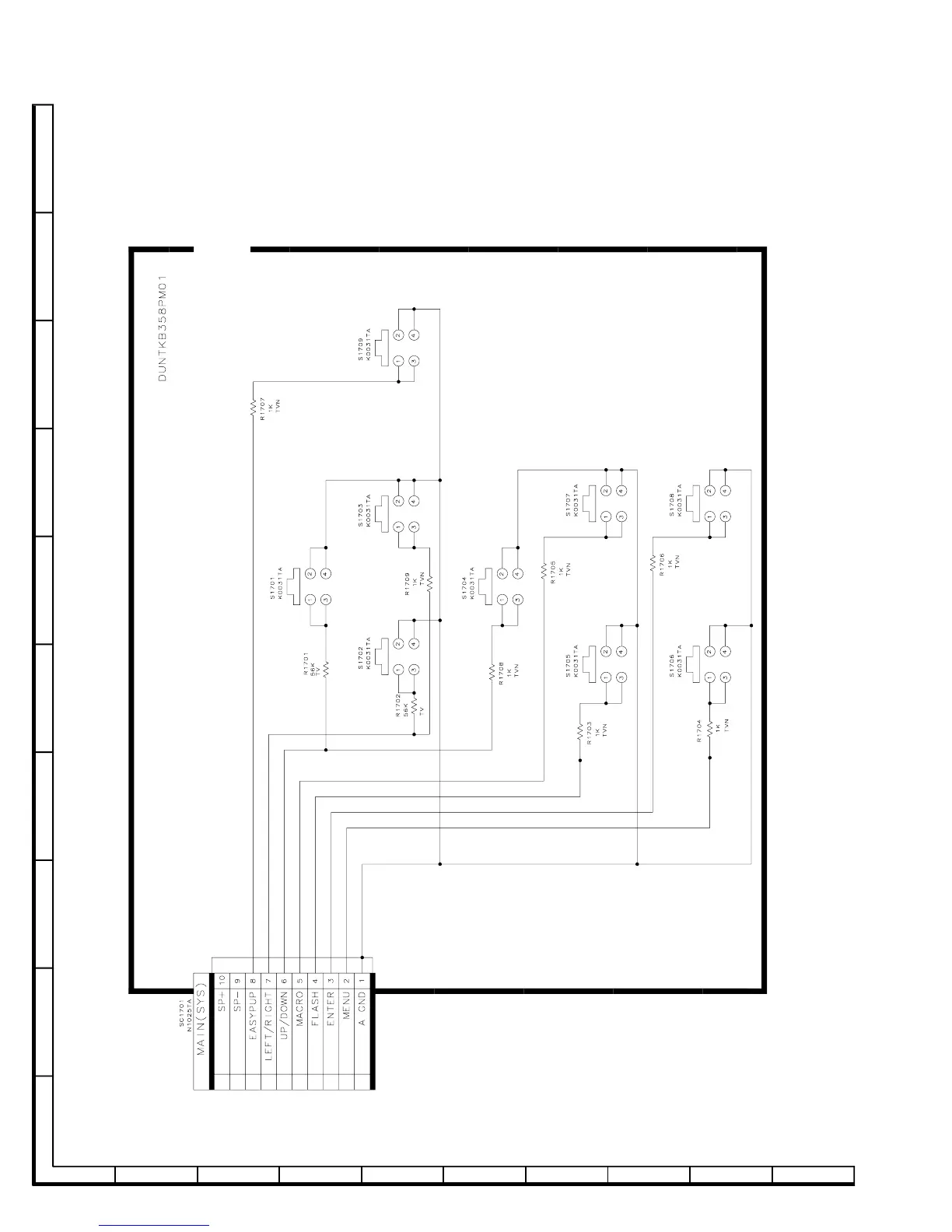
8-16. OPERATION SHCMATIC DIAGRAM (VE-CG30U)

Related product manuals