EasyManua.ls Logo

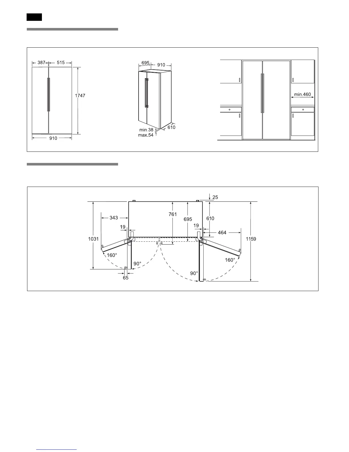
Siemens KA - Dimensions de Lappareil Et Cotes Dencombrement; Angle Douverture des Portes

Siemens KA
108 pages
Print Icon
To Next Page IconTo Next Page
To Next Page IconTo Next Page
To Previous Page IconTo Previous Page
To Previous Page IconTo Previous Page
Loading...
48
     
   


Table of Contents

Other manuals for Siemens KA

Related product manuals