EasyManua.ls Logo

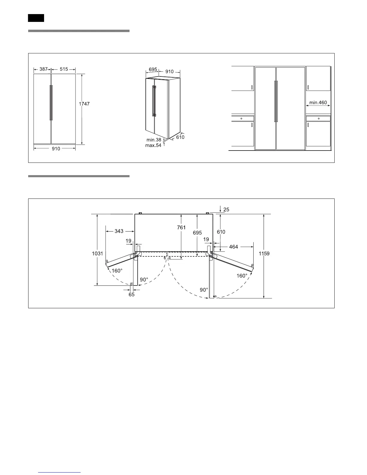
Siemens KA63DA71 - Angle Douverture des Portes; Dimensions de Lappareil Et Cotes Dencombrement

Siemens KA63DA71
123 pages
Print Icon
To Next Page IconTo Next Page
To Next Page IconTo Next Page
To Previous Page IconTo Previous Page
To Previous Page IconTo Previous Page
Loading...
46
     
   


Table of Contents

Related product manuals