EasyManua.ls Logo

Siemens LFL1.148

Siemens LFL1.148
11 pages
To Next Page IconTo Next Page
To Next Page IconTo Next Page
To Previous Page IconTo Previous Page
To Previous Page IconTo Previous Page
Loading...
8/11
Building Technologies Division CC1N7454en
20.11.2017
Control program
In the event of fault and lockout indication:
No start
For example: Start control loop interrupted via actuator (SA)
Lockout due to a fault in the flame supervision circuit
Abortion of startup sequence because the auxiliary switch in actuator (SA) has
cut the start control loop
1
Lockout, because no flame signal was present on completion of the ignition
safety time (TSA)
2
Lockout because no flame signal was present on completion of the second
safety time
Lockout because the flame signal was lost during burner operation
Lockout on completion of the control program, due to extraneous light or a faulty
flame signal
For example: Flame not extinguished
After the reset, the burner control’s switching mechanism first returns to the start position
and then initiates a burner restart.
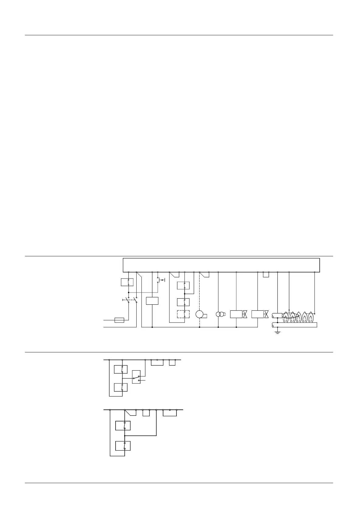
Connection diagram
12 321 4125146 8
(7)
16 18
19 11
15
22
23
24
H
L
N
AL
EK2
W
R
GP
M1
Z
BV1
BV2
ION1
ION2
7454a04/0204
LFL1.148
SB
Si
Connection examples
5
4121520
11
68
W
R
LP
7454a02/1195
2-stage forced draft gas burner without
load controller (LR) and without actuator
(SA)
W
R
5 4 12 8 6 14 15 20 11
7454a03/1195
Atmospheric gas burner without fan
assistance, load controller (LR) and
actuator (SA)

Related product manuals