EasyManua.ls Logo

Siemens SENTRON VL Series - Final Testing and Dimensional Data; Final Test Procedure and Product Dimensions

Siemens SENTRON VL Series
10 pages
To Next Page IconTo Next Page
To Next Page IconTo Next Page
To Previous Page IconTo Previous Page
To Previous Page IconTo Previous Page
Loading...
3ZX1012-0VL20-1WA1 9
3
< 5 X
Test:
2.
2.
TRIP


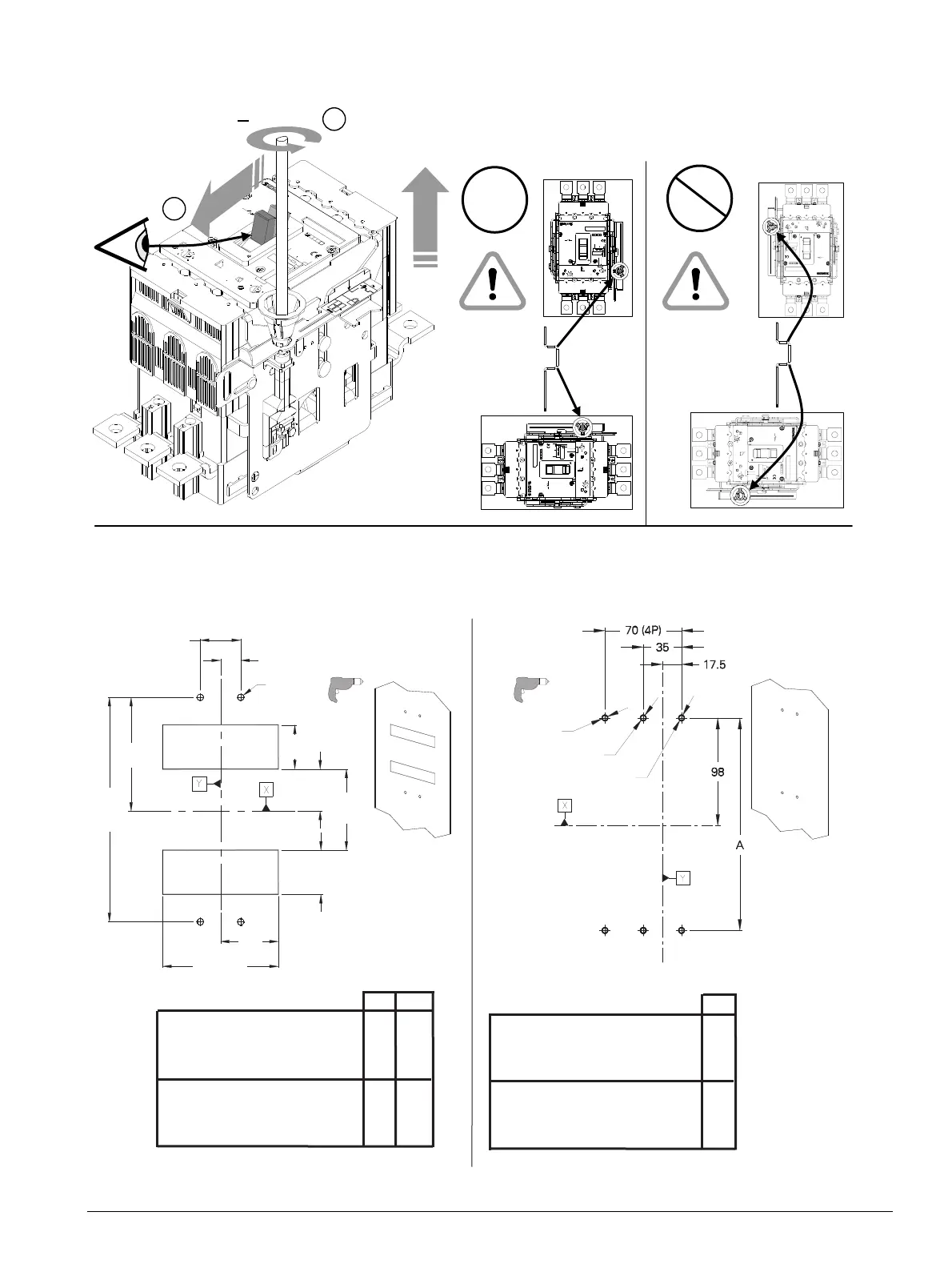
3 Pole 4 Pole
3VL92004WA30 / 3VL92004WA40
3VL93004WA30 / 3VL93004WA40
3 Pole 4 Pole
3VL92004WB30 / 3VL92004WB40
3VL93004WB30 / 3VL93004WB40
B
194
315
A
70
191.5
3 Pole 4 Pole
3VL92004WC30 / 3VL92004WC40
3VL93004WC30 / 3VL93004WC40
3 Pole 4 Pole
3VL92004WD30 / 3VL92004WD40
3VL93004WD30 / 3VL93004WD40
A
194
315
;É3
;É33
;É3



3
3



3
3
;É
$
%
3VL9300-4WA/WB_0 3VL9300-4WC/WD_0

Other manuals for Siemens SENTRON VL Series

Related product manuals