EasyManua.ls Logo

Sime ECOMAXI VB 200 - Part 2: Cautions of Using

Sime ECOMAXI VB 200
Print Icon
To Next Page IconTo Next Page
To Next Page IconTo Next Page
To Previous Page IconTo Previous Page
To Previous Page IconTo Previous Page
Loading...
2
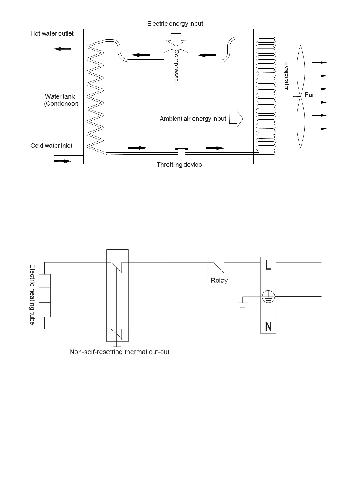
Fig.1 Working principles of air source heat pump water heater
2. Working Principles of Electricity-Assistant Heating
Electric heating tube transfers the electric energy into the thermal energy, from which water will
absorb constantly and the temperature rises. When the temperature reaches the setting temperature,
the temperature control devices (which is on the PCB board) will shut off power supply automatically,
then the electric heating tube stops working. If dry-heating or over-heating phenomenon occurs, the
protection device non-self-resetting thermal cut-out will shut off immediately for protection.
Fig.2 Working principles of electricity-assistant heating
Part 2: Cautions of Using
Make sure to install safety valve at the water inlet during installation.
Remove the plug of condensed water outlet and keep it unblocked before using the air source heat
pump waterheater.
When finished installation, please check again that the water tank is filled with water before
supplying power.
Before using the appliance, make sure that one PPR connecting pipe no shorter than 1.5 m has been
installed to the waterinlet.

Other manuals for Sime ECOMAXI VB 200

Related product manuals