EasyManua.ls Logo

Sime ECOMAXI VB 200 - Page 5

Sime ECOMAXI VB 200
Print Icon
To Next Page IconTo Next Page
To Next Page IconTo Next Page
To Previous Page IconTo Previous Page
To Previous Page IconTo Previous Page
Loading...
2
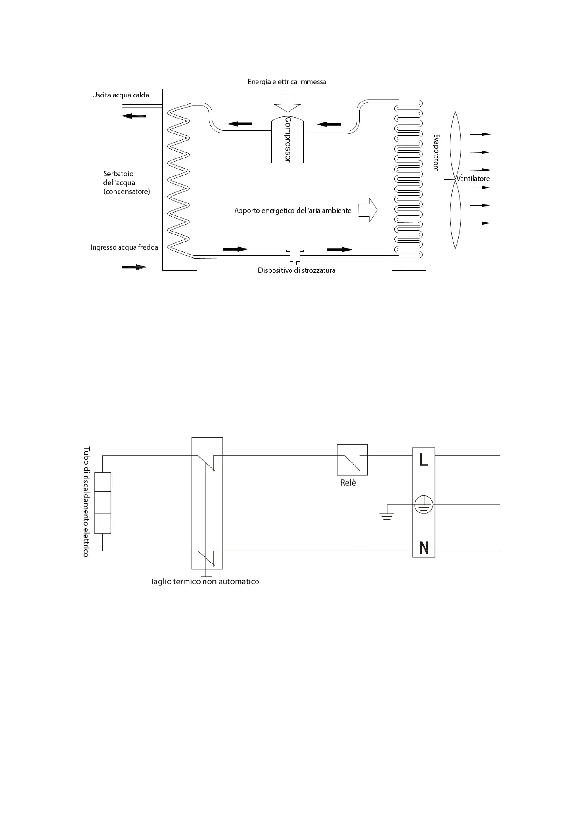
di strozzamento per ridurre significativamente la pressione e la temperatura. Infine, la ventola aspira
l'aria all'interno dell'evaporatore e il refrigerante liquido freddo assorbe il calore dell'aria per tornare ad
essere vapore. Il refrigerante continua a funzionare in questo modo per riscaldare l'acqua.
Fig.1 Principi di funzionamento dello scaldacqua a pompa di calore con sorgente d'aria
2. Principi di funzionamento del riscaldamento elettrico
Il tubo di riscaldamento elettrico cede l'energia elettrica all'energia termica, che viene
costantemente assorbita dall'acqua e fa aumentare la temperatura. Quando la temperatura raggiunge
la temperatura impostata, il dispositivo di controllo della temperatura (che si trova sulla scheda PCB)
interrompe automaticamente l'alimentazione, quindi il tubo di riscaldamento elettrico smette di
funzionare. Se si verificano fenomeni di surriscaldamento o riscaldamento a secco, il dispositivo di
protezione con taglio termico di tipo non-automatico si spegne immediatamente per garantire la
protezione.
Fig.2 Principi di funzionamento del riscaldamento elettrico assistito
Parte 2: Precauzioni d'uso
Assicurarsi di installare lavalvola di sicurezza all'ingresso dell'acqua durante l'installazione.
Rimuovere il tappo dell'uscita dell'acqua di condensa e mantenerlo libero prima di utilizzare lo
scaldacqua a pompa di calore con sorgented'aria.
Al termine dell'installazione, controllare che il serbatoio dell'acqua sia pieno prima di attivare la
corrente.
Prima di utilizzare l'apparecchio, assicurarsi che sia stato installato un tubo di collegamento in PPR
non più corto di 1,5 m all'ingresso dell'acqua.

Other manuals for Sime ECOMAXI VB 200

Related product manuals