EasyManua.ls Logo

Sime Open.zip 6 25 BF - Page 5

Sime Open.zip 6 25 BF
48 pages
Print Icon
To Next Page IconTo Next Page
To Next Page IconTo Next Page
To Previous Page IconTo Previous Page
To Previous Page IconTo Previous Page
Loading...
3
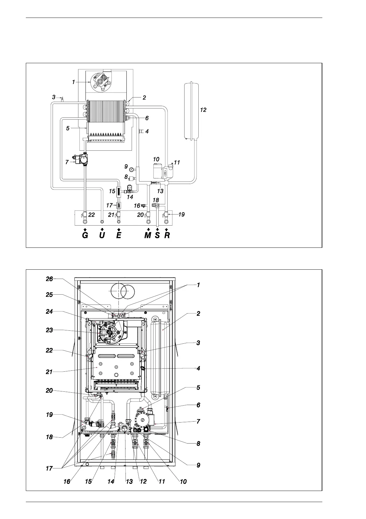
1.4 SCHEMA FUNZIONALE
Fig. 2
Fig. 3
1.5 COMPONENTI PRINCIPALI
LEGENDA
1 Ventilatore
2 Scambiatore bitermico
3 Sonda sanitario
4 Termostato sicurezza
5 Camera combustione
6 Sonda riscaldamento
7 Valvola gas
8 Pressostato acqua
9 Idrometro
10 Circolatore
11 Valvola sfogo aria
12 Vaso espansione
13 By-pass automatico
14 Elettrovalvola caricamento
impianto (se esistente)
15 Flussostato sanitario
16 Scarico caldaia
17 Filtro acqua sanitaria
18 Valvola sicurezza
19 Rubinetto ritorno impianto
20 Rubinetto mandata impianto
21 Rubinetto entrata sanitario
22 Rubinetto gas (non di fornitura)
LEGENDA
1 Prese analisi combustione
2 Vaso espansione
3 Sonda riscaldamento
4 termostato sicurezza
5 Valvola sfogo aria
6 Termostato antigelo sanitario (optional)
7 Circolatore
8 Valvola sicurezza 3 bar
9 Scarico caldaia
10 Rubinetto ritorno impianto
11 Rubinetto mandata impianto
12 Pressostato acqua
13 Idrometro
14 Elettrovalvola caricamento
impianto (se esistente)
15 Rubinetto entrata sanitario
16 Flussostato sanitario
17 Termoresistenza antigelo sanitario (optional)
18 Quadro elettrico
19 Valvola gas
20 Sonda sanitario
21 Camera combustione
22 Scambiatore bitermico
23 Ventilatore
24 Pressostato fumi
25 Presa pressione positiva
26 Presa pressione negativa

Related product manuals