EasyManua.ls Logo

Skyjack SJ 4626 - Electrical Panel Diagram (ANSI;CSA EE Rated)

Skyjack SJ 4626
130 pages
Print Icon
To Next Page IconTo Next Page
To Next Page IconTo Next Page
To Previous Page IconTo Previous Page
To Previous Page IconTo Previous Page
Loading...
SKYJACK, Page 27SJIII Conventional Series
143911
A B C D E F G H
V
Z
Y
X
W
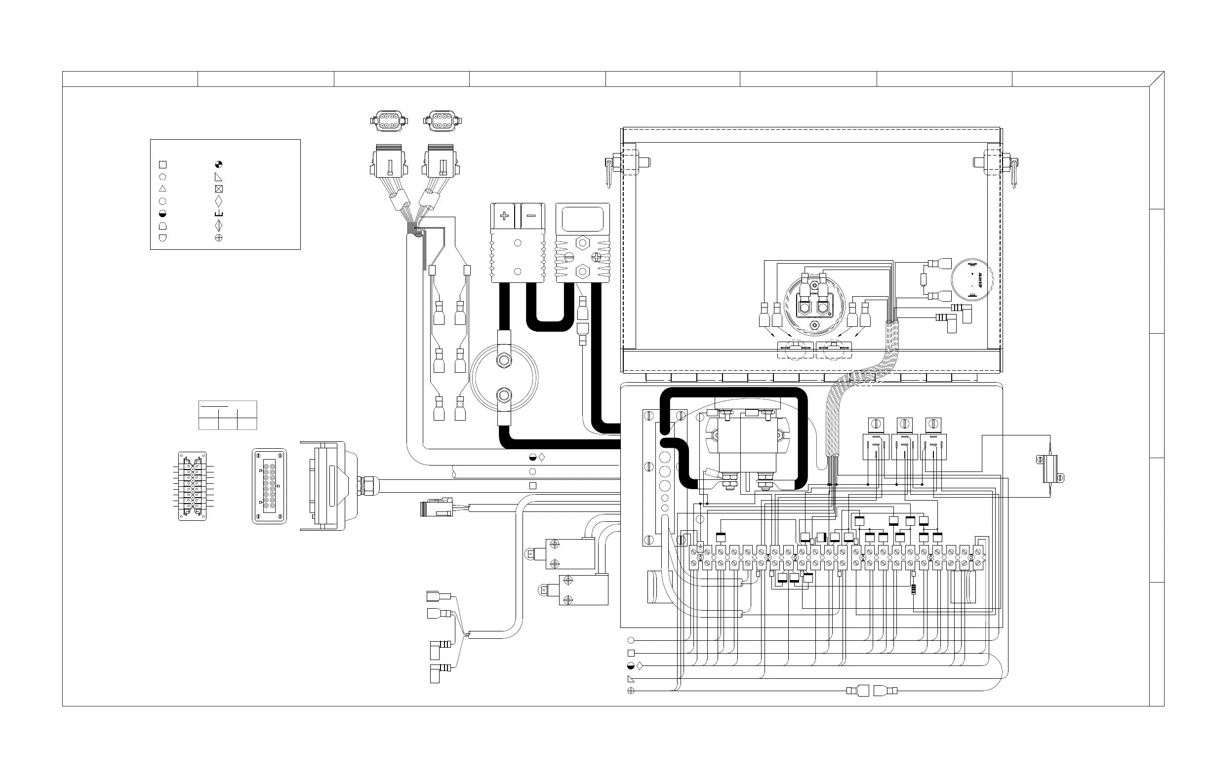
3.18 Electrical Panel Diagram (ANSI/CSA EE Rated)
M147790AA_S3
BACK VIEW
FEMALE
GREEN (7A)
BLACK (14)
ORANGE (13)
RED (07)
8
6
7
16
14
15
5
3
4
13
11
12
GREEN WHITE (49)
BLUE WHITE (8C)
(7A) RED WHITE
(23) BLACK WHITE
(24) BLUE BLACK
(59) ORANGE BLACK
(18) RED BLACK
(OPT) GREEN BLACK
16
14
15
8
6
7
13
11
12
5
3
4
WHITE (02)
BLUE (15)
2
1
10
9
(NOT USED)
(16) WHITE BLACK
10
9
2
1
FRONT VIEW
BACK VIEW
EUROPE
WIRE NUMBER
21B
60
N.A
WIRE NUMBER
21B
7A
CONTROL CABLE OPTIONS
WIRE COLOUR
GREEN/BLACK
RED/WHITE
PIN 6 - 8C (BLUE/WHITE)
PIN 8 - 02 (WHITE)
PIN 7 - 7A (GREEN)
1 2 4
DEUTSCH
3 321
DEUTSCH
4
8 7 56 78 6 5
PIN 1 - 71 (BLACK/WHITE)
PIN 3 - 18 (RED/BLACK)
PIN 4 - 18A (RED/BLACK)
PIN 2 - 21 (ORANGE/BLACK)
PIN 4 - 14E (BLACK)
PIN 2 - 05 (GREEN/BLACK)
PIN 3 - 13 (ORANGE)
PIN 1 - 07 (RED)
18A - RED/BLACK
02 - WHITE
TO REAR MANIFOLD
PIN 5 - N/U
PIN 5 - N/U
PIN 8 - 71 (BLACK/WHITE)
PIN 6 - N/U
PIN 7 - 19 (BLUE)
REAR HARNESS
21
MAIN MANIFOLD
REAR HARNESS
PLATFORM CONTROL BOX
MAIN MANIFOLD HARNESS
PLATFORM CONTROL BOX
BATTERY TRAY
72 - BROWN
71 - BLUE
19 - BLUE
HYDRAULIC TRAY
72 - BROWN
02 05 19A1972
D21-1
D13
13 18
D17-1
D17C
1771
D28A
29
D19A
D21
59
D17C-1
D14E
D23D14
D17
D21A
D16D15
2321A141615
D24
24
59A
MAIN DISCONNECT
TO BATTERIES TO MOTOR
+
+
00 00
BATTERY
CONNECTOR
03
05
RELAY
CONTROL
PROPORTIONAL
STEERING
RELAY
BRAKE/
RELAY
SWITCH
TILT
(00 WHITE - 14 AWG)
(03 BLUE - 14 AWG)
02
02
19A
00
02
BEEPER
29
02
PIN 86 - 02
PIN 87 - 19A
PIN 87a - 28A
PIN 86 - 02
PIN 87a - 17C
PIN 87 - 17A
PIN 86 - 02
PIN 87a - 59
PIN 87 - N/U
PIN 30 - 19
TILT SWITCH RELAY
PIN 85 - 28
BRAKE/STEERING RELAY
PIN 30 - 17B
PIN 85 - 17 PIN 85 - 21C
PROP. CONTROL RELAY
PIN 30 - 59A
22
29
TO FLASHER IF EQUIPPED
TO FLASHER
LEGEND:
TO ENGINE
TO JOYSTICK BOX
TO TERMINAL BLOCK
TO MAIN MANIFOLD
TO REAR MANIFOLD
TO OUTRIGGER
SOLENOID CABLES
TO HIGH SPEED LIMIT SWITCH
TO LOWER KEYSWITCH BOX
TO TILT SWITCH
TO END OF STROKE
TO POWER DECK
TO BATTERY
02
19A
28A
19
28 02
17A
17
17C
17B
59A
59
02 21C
+
03
19A
02
+
HORN
8C7A07
TO POTHOLE LIMIT
TO BASE CONTROLS
TO HIGH SPEED LIMIT
TO TILT SWITCH
PIN 1 - 19 (BLACK)
PIN 2 - 28 (GREEN)
PIN 3 - 02 (WHITE)
PIN 4 - N/U
TO HORN
TO FLASHING LIGHT
02 - WHITE
02 - WHITE
49 - BLACK
22 - GREEN
HORN/FLASHING LIGHT
TILT SWITCH
49
49
14E
D14E-1
02
22
02
49
18A 18A 18A
020202
18A
02
YEL
BLUE

Table of Contents

Other manuals for Skyjack SJ 4626

Related product manuals