EasyManua.ls Logo

Skyjack SJKB-40-XRT - Page 30

Skyjack SJKB-40-XRT
213 pages
Print Icon
To Next Page IconTo Next Page
To Next Page IconTo Next Page
To Previous Page IconTo Previous Page
To Previous Page IconTo Previous Page
Loading...
SJKB-40-D, SJKB-40-D/F SECTION 3, Page 7JUN. 1999
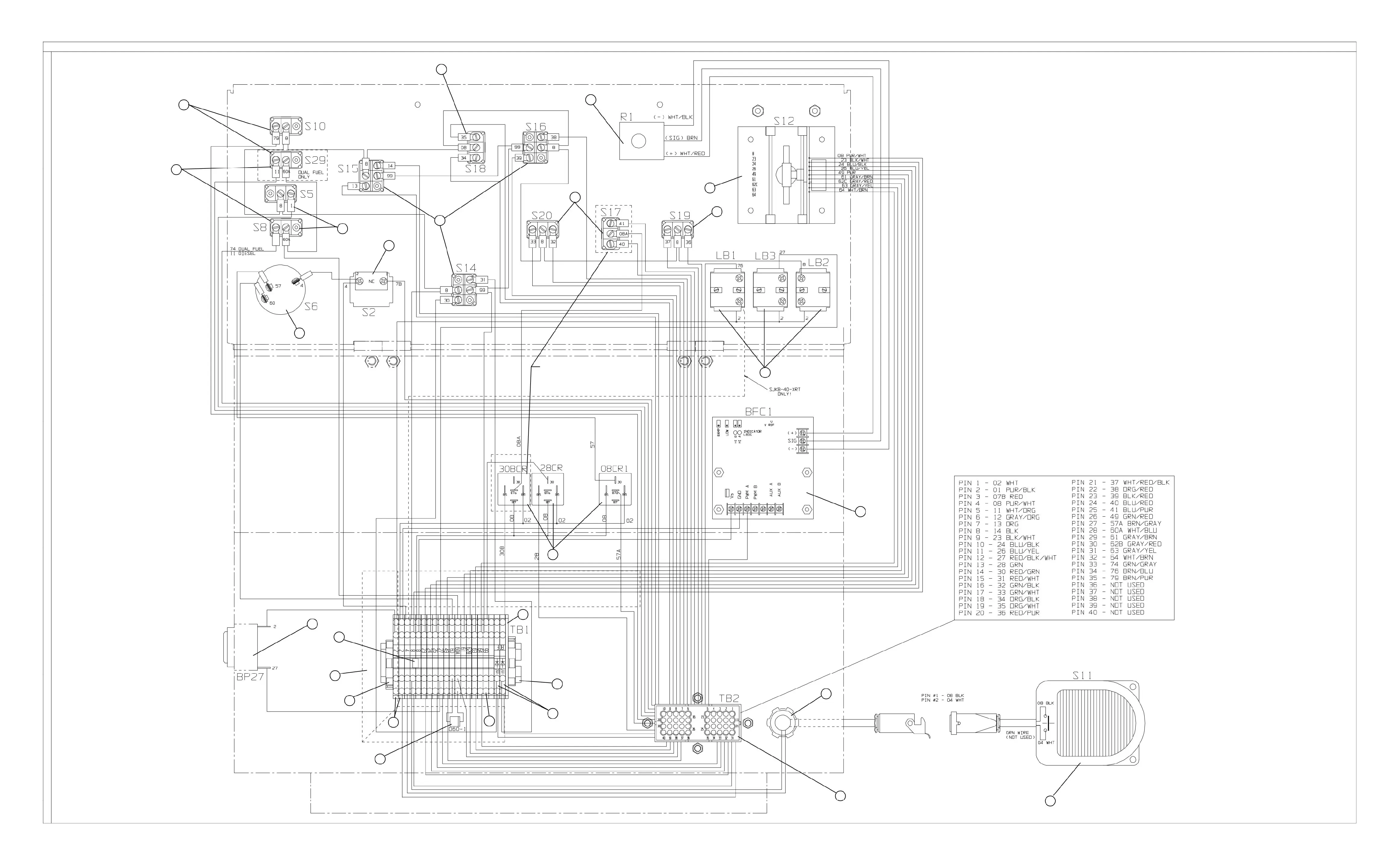
FIGURE 3-1. OPERATOR’S CONTROL CONSOLE DIAGRAM (S/N 95088 AND ABOVE.)
MA40-306
13
1
23
24
3
PL ATFORM LE VELING FROM
PLATFORM CONTROL CONSOLE IS
NOT AVAIL ABLE ON EUROPEAN
MACHINES
HGFEDCBA
7
6
5
4
3
2
1
WVUTSRQPONMLKJI
14
13
12
11
10
9
8
6
8
2
5
4
6
9
10
6
7
12
18
21
22
16
25
17
20
15
19
14
11

Table of Contents

Related product manuals