EasyManua.ls Logo

Smeg KSET91E - Page 8

Smeg KSET91E
13 pages
Print Icon
To Next Page IconTo Next Page
To Next Page IconTo Next Page
To Previous Page IconTo Previous Page
To Previous Page IconTo Previous Page
Loading...
EN
1
17
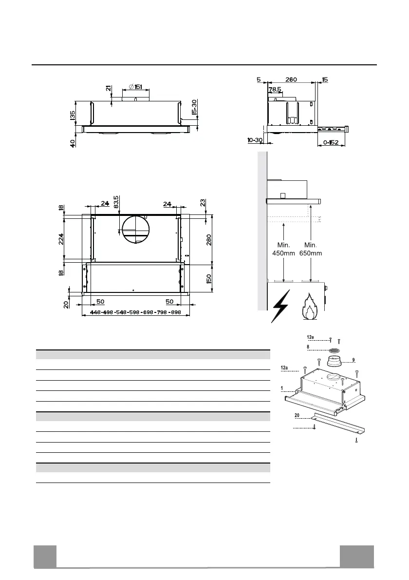
CHARACTERISTICS
Components
Ref. Q.ty Product Components
1 1 Hood Body, complete with: Controls, Light, Blower, Filters
8 1 Directional Air Outlet grille
9 1 Reducer Flange ø 150-120 mm
20 1 Closing element
Ref. Q.ty Installation Components
12a 4 Screws 4,2 x 44,4
12b 2 Screws 4,2 x 12,7
12e 2 Screws 2,9 x 9,5
Q.ty Documentation
1 Instruction Manual
12b

Related product manuals