EasyManua.ls Logo

Smeg SBS63XE - Refrigerator

Smeg SBS63XE
39 pages
Print Icon
To Next Page IconTo Next Page
To Next Page IconTo Next Page
To Previous Page IconTo Previous Page
To Previous Page IconTo Previous Page
Loading...
6 / 38 EN
Refrigerator / User Guide
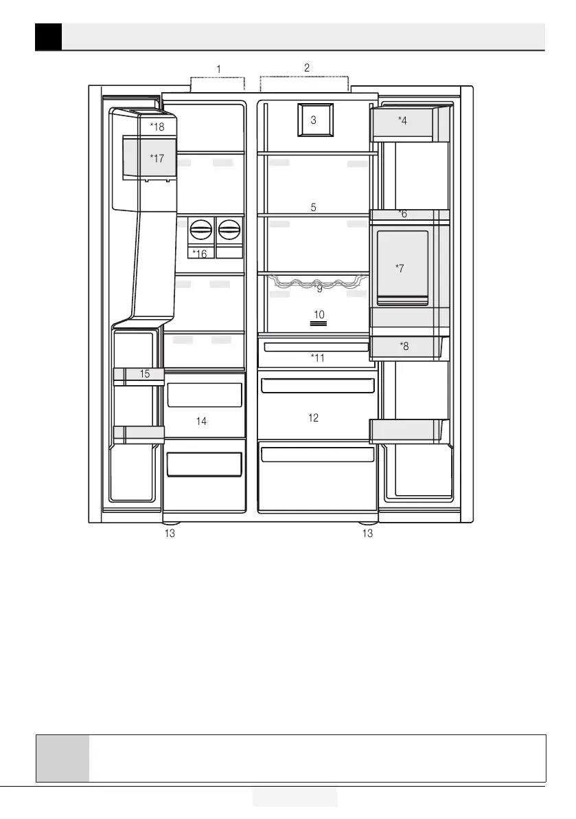
2 Refrigerator
C
*Optional: Figures in this user guide are schematic and may not be exactly match your product. If your
product does not comprise the relevant parts, the information pertains to other models.
1- Freezer compartment
2- Cooler compartment
3- Fan
4- Butter-cheese compartment
5- Glass shelves
6- Cooler compartment door shelves
7- Minibar accessory
8- Water tank
9- Bottle shelf
10- Odour filter
11- Zero degree compartment
12- Vegetable bins
13- Adjustable stands
14- Frozen food storing compartments
15- Freezer compartment door shelves
16- Icematics
17- Ice storage box
18- Ice-maker decorative lid
*Optional
2
3
*4
5
*6
1
*7
*11
*16
*17
*18
12
13
14
15
13
*8
10
*9

Related product manuals