EasyManua.ls Logo

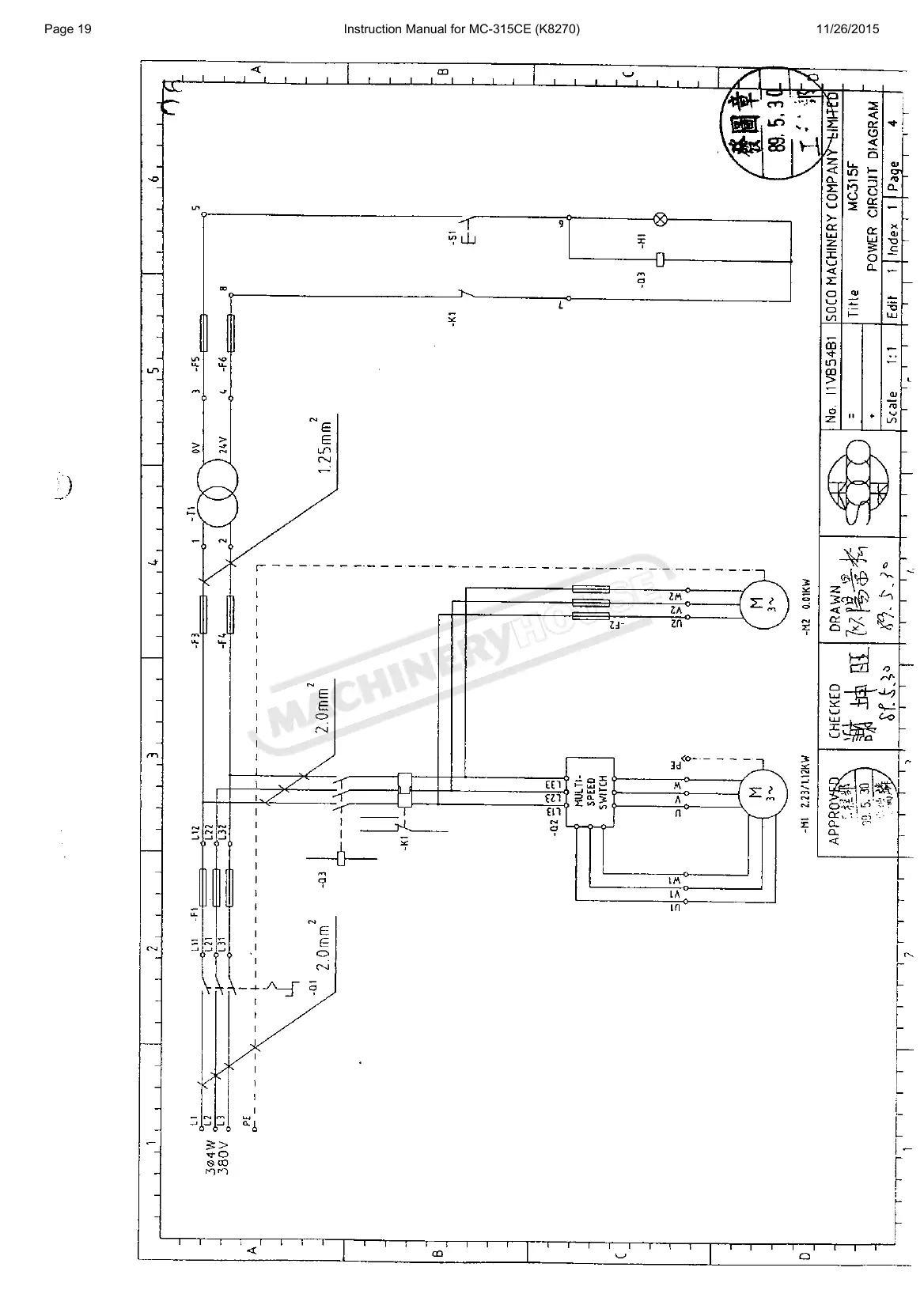
SOCO MC-315F - Page 19

Default Icon
39 pages
Print Icon
To Next Page IconTo Next Page
To Next Page IconTo Next Page
To Previous Page IconTo Previous Page
To Previous Page IconTo Previous Page
Loading...
Instruction Manual for MC-315CE (K8270)
11/26/2015
All manuals and user guides at all-guides.com

Related product manuals