EasyManua.ls Logo

Solahart Continuous Flow - Page 21

Solahart Continuous Flow
40 pages
Print Icon
To Next Page IconTo Next Page
To Next Page IconTo Next Page
To Previous Page IconTo Previous Page
To Previous Page IconTo Previous Page
Loading...
INSTALLATION WATER HEATER
21
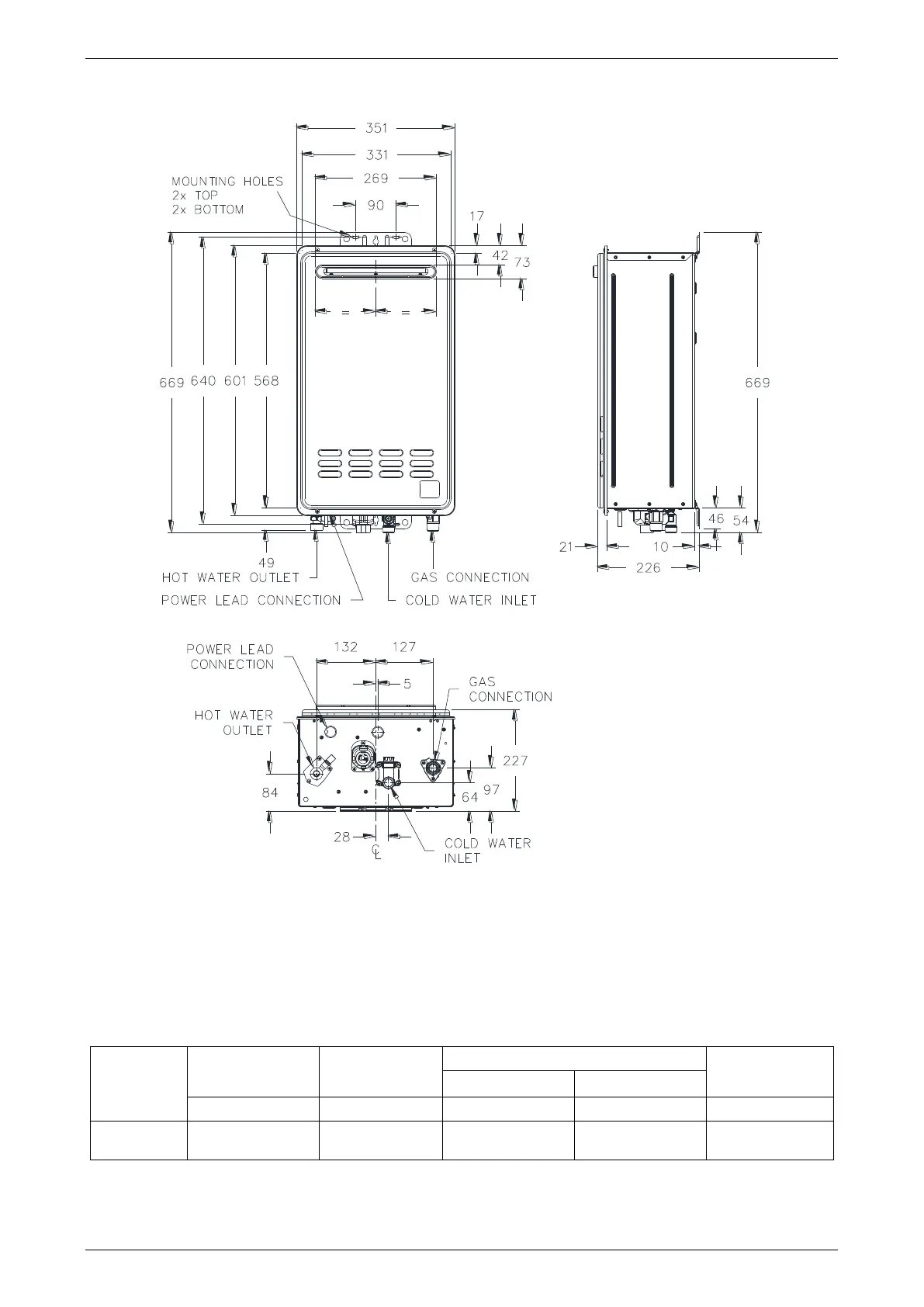
DIMENSIONS AND TECHNICAL DATA 27 LITRE MODELS
Model natural
propane
10143274
10143275
Rated delivery
(@ 40°C rise)
litres / min
16.7
Recovery
(@ 25°C rise)
litres / min
27
Mass Empty (unpackaged)
kg
23
Gas Details
Hourly Gas
Consumption
(MJ)
Min Gas Pressure
(kPa)
Test Point Gas Pressure (kPa)
Max Gas Pressure
(kPa)
minimum
maximum
Model
27
27
27
27
27
Natural
205
1.13
0.193
0.905
3.50
Propane
205
2.75
0.277
1.54
3.50
Model numbers: 4 = Natural, 5 = Propane.
Digit 4, 5 is included in the part number as the eighth (last) digit, e.g. 10143274, to denote gas type.
Technical data is subject to change.

Related product manuals