EasyManua.ls Logo

Sony DCR-PC109 - Page 30

Sony DCR-PC109
67 pages
Print Icon
To Next Page IconTo Next Page
To Next Page IconTo Next Page
To Previous Page IconTo Previous Page
To Previous Page IconTo Previous Page
Loading...
DCR-PC109/PC109E
4-7
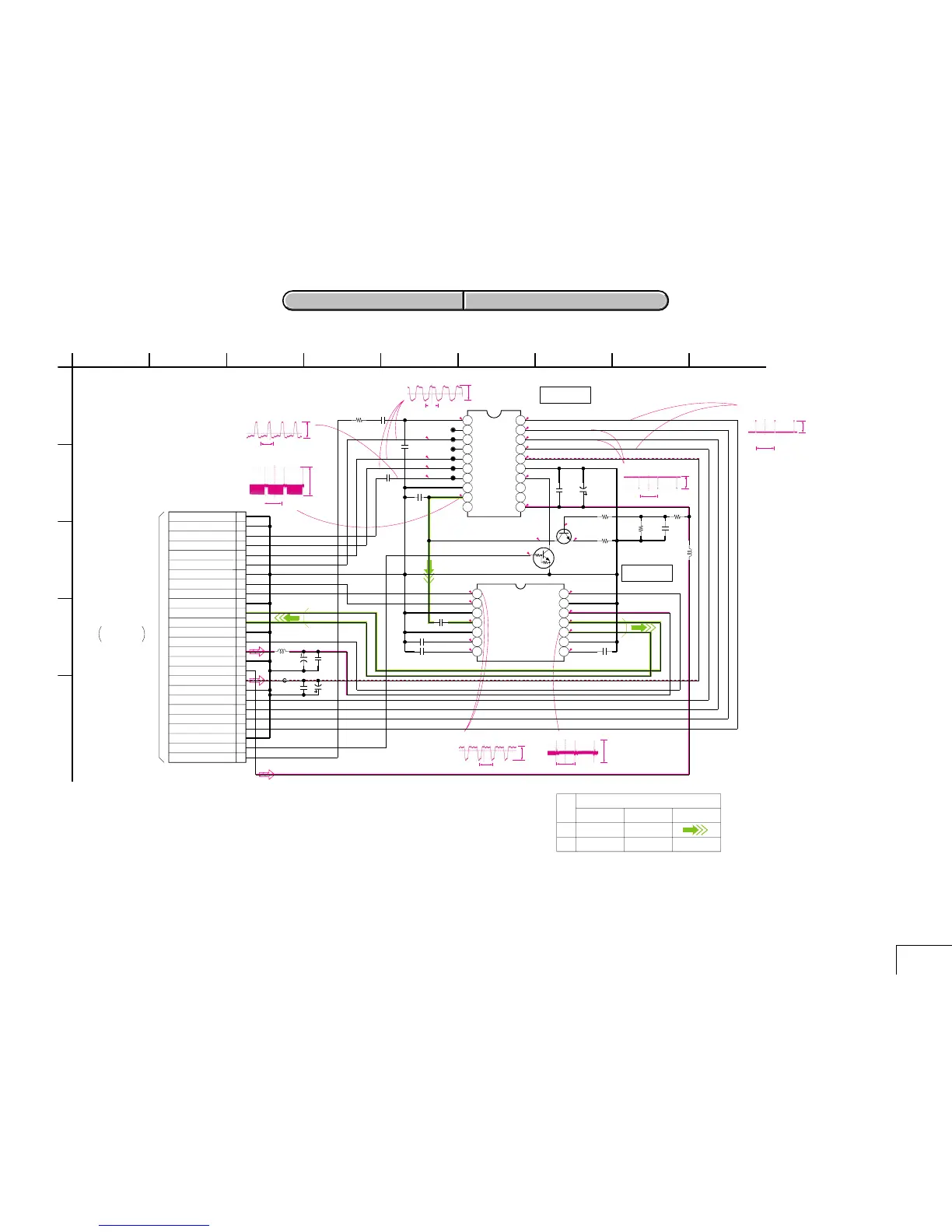
4-2. SCHEMATIC DIAGRAMS
For Schematic Diagram
• Refer to page 4-69 for printed wiring board.
4-8
CD-494
3 IC201 qs
4 IC201 qf
37 µsec
4.8 Vp-p
53.6 µsec
2.0 Vp-p
5 IC201 qg, qh, qk
37 nsec
4.2 Vp-p
1 IC201 1, 4
53.6 µsec
8.2 Vp-p
2 IC201 2, 3
53.6 µsec
8.2 Vp-p
7 IC202 qd, qf
3.7 Vp-p
6 IC202 5
53.6 µsec
0.6 Vp-p
37 nsec
Note
Note
Note:Pin No.and index mark of IC201 and IC202
are shown as viewed from the bottom.
NO MARK:REC/PB MODE
R :REC MODE
P :PB MODE
R-7.4/P0
R-0.3/P0
R-0.4/P0.1
R-7.3/P0
R-7.8/P0
R11.2/P0
P0
R15.3
R11.1/P0
P0
R1.4
R1.7
P0
P0
R1.4
R13.4
P0
R12.3/P0
P0
R12.3
P0
R8.2
R7.4
P0
R0.9/P0
R0.4/P0
1.3
R2.0/P0.4
R2.0/P0.1
R2.8/P0
2.8
R0.6/P1.8
R0.6/P1.8
1.6
0
IC201 is not included in this COMPLETE board.
B
0.1u
C210
100uH
L202
XX
C206
B
0.1u
C219
B
1u
C205
B
0.1u
C208
B
0.1u
C203
0
R201
B
0.1u
C215
XX
C201
B
0.1u
C202
10u
10V
TA
A
C218
B
0.1u
C209
IC202 AD80017AJRURL
1
CLPDM
2
GND
3
VDD
4
CCD-
5
CCD+
6
GND
7
BYP
8
BYP
9
BYP
10
BYP
11
CCD_IN
12
GND
13
SHD
14
SHP
FB201
0uH
UNR32A300LSO
Q201
ICX457AKF-13
IC201
12345678910
11 12 13
14 15 16 17 18 19
20
L201
10u
6.3V
TA
A
C214
B
1u
C213
4.7u
25V
TA B
C204
2SC5096-O/R(TE85L)
Q202
2700
R203
B
0.1u
C207
1k
R205
10k
R204
12k
R206
26P
CN201
1
2
3
4
5
6
7
8
9
10
11
12
13
14
15
16
17
18
19
20
21
22
23
24
25
26
JL201
JL202
JL203
JL204
JL205
JL206
1
A
RCSUB
CCD_OUT+
A_2.8V
XSHP
GND
XSHD
CAM_-7.5V
GND
GND
CAM_15V
CLPDM
CCD_OUT-
V4
LH
V2
GND
N.C.
V1
H2
VDD
V_OUT
V3
VL
GND
VSUB
RCSUB
N.C.
RG
N.C.
VDD2
N.C.
H1
V2
H2
RG
V3
LH
V1
V4
H1
VSUB
GND
GND
GND
GND
GND
CLAMP
SWITCH
IC201
CCD IMAGER
CDS
IC202
TO
VC-352 BOARD(1/21)
CN5001
THROUGH THE
FP-839
FLEXIBLE
(PAGE 4-23
OF LEVEL3)
Y/CHROMAYCHROMA
VIDEO SIGNAL
REC
PB
SIGNAL PATH
16
37
C
5
D
B
E
96842
XX MARK:NO MOUNT
CCD IMAGER
CD-494 BOARD
4-2. SCHEMATIC DIAGRAMS CD-494 PRINTED WIRING BOARD
4-2. SCHEMATIC DIAGRAMS CD-494 PRINTED WIRING BOARD

Related product manuals