EasyManua.ls Logo

Sony DCR-PC109 - Page 32

Sony DCR-PC109
67 pages
Print Icon
To Next Page IconTo Next Page
To Next Page IconTo Next Page
To Previous Page IconTo Previous Page
To Previous Page IconTo Previous Page
Loading...
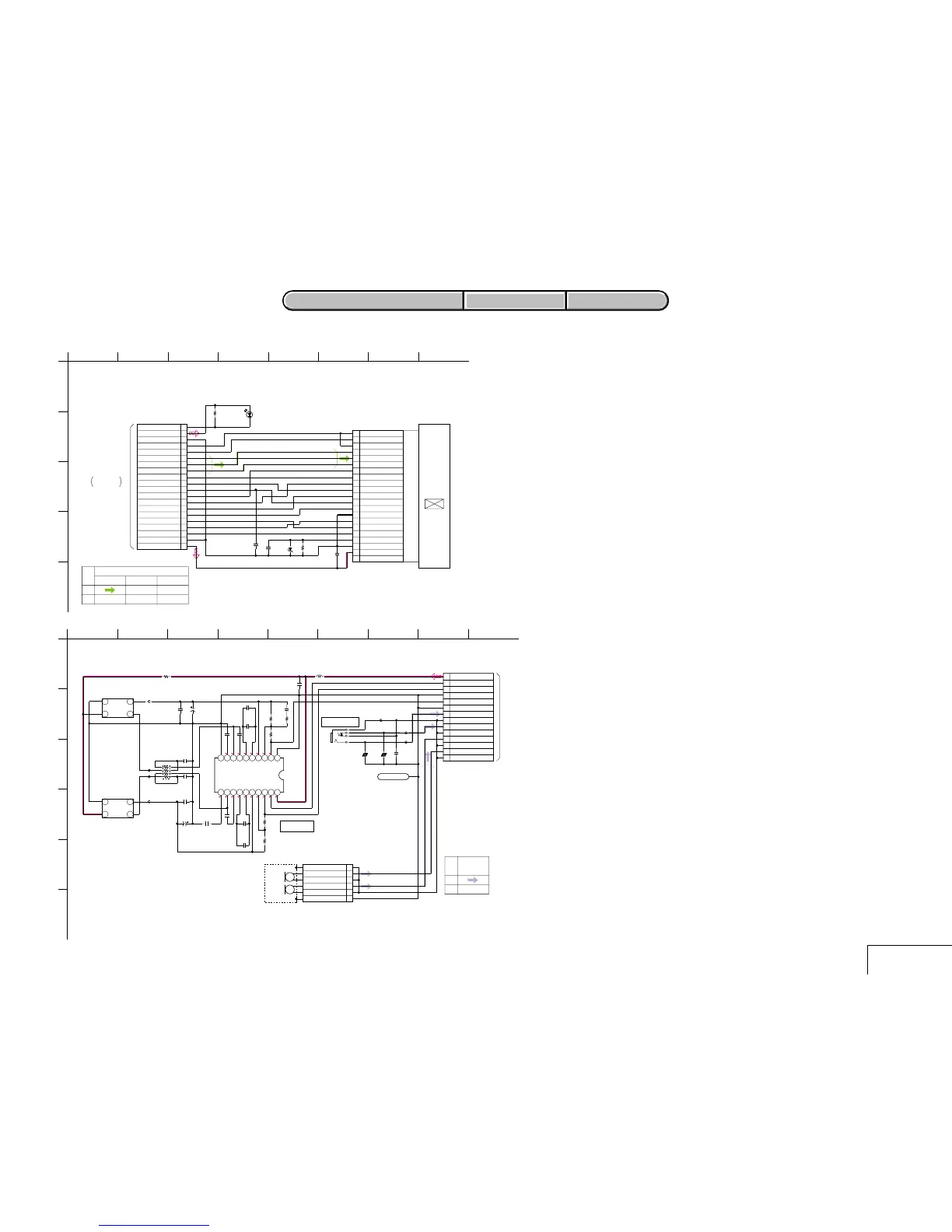
DCR-PC109/PC109E
4-11 4-12
LB-096/SE-140
For Schematic Diagram
• Refer to page 4-72 for printed wiring board of LB-096.
• Refer to page 4-77 for printed wiring board of SE-140.
4-2. SCHEMATIC DIAGRAMS
LB-096 BOARD SE-140 BOARD
4-2. SCHEMATIC DIAGRAMS
LB-096 BOARD SE-140 BOARD
1u
B
C302
0.1u
B
C301
2.2u
F
C303
47k
R302
1/10W
EDZ-TE61-5.6B
D302
D303
E1S35-AW0C7-01-A3
CN301 20P
1
2
3
4
5
6
7
8
9
10
11
12
13
14
15
16
17
18
19
20
1M
R305
21PCN302
1
2
3
4
5
6
7
8
9
10
11
12
13
14
15
16
17
18
19
20
21
1
A
STB
REF
BLK
VR
VG
VST
PSIG
COM
HCK1
CS
VCK
EN
VSS
VDD
PCG
HCK2
VSSG
HST
VB
RGT
STB
BLK
REF
PCG
EVF_GND
VG
EVF_VDD
HST
EN
COM
VCK
HCK2
HCK1
EVF_GND
EP_4.6V
PSIG
LED_K
VST
VR
VB
N.C.
(BACKLIGHT)
LCD902
COLOR
EVF UNIT
TO
VC-352 BOARD(15/21)
CN9301
THROUGH THE
FP-842
FLEXIBLE
(PAGE 4-52
OF LEVEL 3)
LB-096 BOARD
XX MARK:NO MOUNT
EVF RELAY
37
C
5
D
B
E
6842
16
CHROMA Y/CHROMAY
REC
VIDEO SIGNAL
PB
SIGNAL PATH
NO MARK:REC/PB MODE
R :REC MODE
P :PB MODE
0.7
0.6
1.3
1.3
1.3
1.3
1.3
1.2
0.9
0.8
1.3
1.3
1.3
1.3
1.3
1.2
2.8
R0
P2.8
0.047u
B
C409
C412
6.3V
10u
0uH
FB402
1
3
5
7
2
4
6
8
0.047u
C408
B
0.047u
B
C410
R406
XX
0.047u
B
C406
UPC6756GR-8JG-E2
IC401
1
PASS
2
OUT1
3
AM1
4
Vref1
5
HO1
6
HI1
7
LO1
8
LIA1
9
LIB1
10
GND
11
LIB2
12
LIA2
13
LO2
14
HI2
15
HO2
16
Vref2
17
AM2
18
OUT2
19
CRST
20
VCC
R405
1M
C415
XX
0uH
FB404
10u
6.3V
C414
4.7u
B
C405
R402
1M
SE401
1
34
2
C402
0.1u
B
XX
C404
4.7u
B
C401
XX
C407
R403
10k
RB401
22k
R404
10k
0uH
FB401
0uH
FB403
10uHL401
SE402
1
34
2
C413
10u
6.3V
C403
0.1u
B
4.7u
B
C416
0
R401
6P
CN401
1
2
3
4
5
6
VDR402
J401
VDR401
2200p
B
C417
14PCN402
1
2
3
4
5
6
7
8
9
10
11
12
13
14
LND401
6.3V
10u
C411
1
A
0uH
FB407
0uH
FB405
0uH
FB406
OUT
GND
Vcc
Vcc
GND
Vref
Vref
OUT
REG_GND
YAW_AD
PITCH_AD
EXT_MIC_R
INT_MIC_L
EXT_MIC_L
MIC_GND
MIC_GND
VST_C_RESET
MIC_GND
MIC_GND
INT_MIC_R
A_2.8V
REG_GND
GND
CH_GND
MIC_R
MIC_L
N.C
GND
CH_GND
(PITCH SENSOR)
(YAW SENSOR)
MIC
(PLUG IN POWER)
PITCH/YAW
SONSOR AMP
IC401
L-CH
R-CH
MIC
MIC
MIC901
MIC UNIT
PITCH/YAW SENSOR AMP.MIC IN
XX MARK:NO MOUNT
SE-140 BOARD
37
F
C
5
D
B
E
96842
16
AUDIO
SIGNAL PATH
SIGNAL
REC
PB
TO
FP-843 FLEXIBLE
(PAGE 4-20)
1
2
3
4

Related product manuals