EasyManua.ls Logo

Sony KDL-24R400A - Page 37

Sony KDL-24R400A
40 pages
Print Icon
To Next Page IconTo Next Page
To Next Page IconTo Next Page
To Previous Page IconTo Previous Page
To Previous Page IconTo Previous Page
Loading...
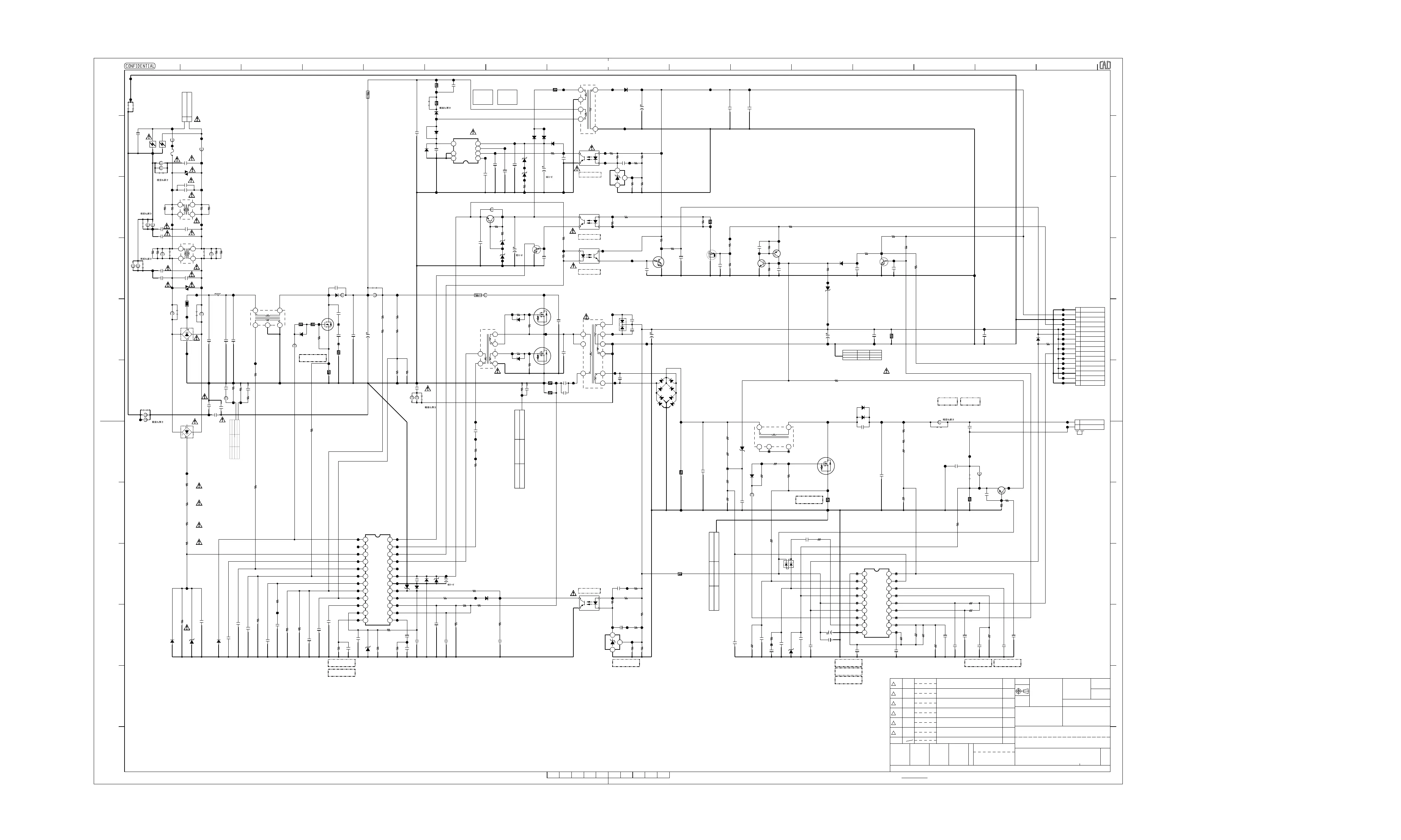
Chassis RB1FK, BA
37
Chassis RB1FK, BA
G BOARD SCHEMATIC
G BOARD SCHEMATIC DIAGRAM FOR 42” MODEL
J
8 10
ISSUED ’ . .
14
E
B
K
11
DRAWNING
(TYPE D42)
15
G
D
1
D
L
4 12 16
E
I
2 6
A
7
C
J
SONY STANDARD
’90.10
13
G
K
A1
H
3
L
F
5
F
H
I
A
9
C
B
mm
X
SUFFIX
DESCRIPTION
’ . .
:
R E V I S I O N
6
FAMILY
-
3
PART NO.
DRAWN BY
’ . .
SCALE
D A T E
X
ORIGINAL
MODEL
-
X
PART NO.
PLANNED BY
’ . .
ANGLE
ECN-NO.
5
FINISH(COLOR)
-
2
SHEET
CHECKED BY
’ . .
UNIT
X
MATERIAL(COLOR)
-
X
TENTATIVE
’ . .
TOLERANCE
REPL.
(J)
APPROVED BY
-
1
MODEL
’ . .
USED ON
4
(E )
HISTORY
-
X COUNT
SIGN.
X
RANK
ALL resistors are in ohms,W unless otherwise noted.
ALL capacitors are in uF(p:pF)unless otherwise noted.
TO THE LOCAL PURCHASING DEPARTMENT OF SONY. THE REPRODUCTION, DISTRIBUTION AND UTILIZATION OF THIS DOCUMENT AS WELL AS THE COMMUNICATION OF ITS CONTENTS TO OTHERS WITHOUT EXPRESS AUTHORIZATION
THIS DOCUMENT IS THE PROPRIETARY PROPERTY OF SONY. ITS USE IS AUTHORIZED ONLY FOR RESPONDING TO A REQUEST FOR QUOTATION, OR FOR THE PERFORMANCE OF WORK FOR SONY. ALL QUESTIONS MUST BE REFERRED
IS PROHIBITED. OFFENDERS WILL BE HELD LIABLE FOR THE PAYMENT OF DAMAGES. ALL RIGHTS RESERVED IN THE EVENT OF THE GRANT OF A PATENT, UTILITY MODEL OR DESIGN. COPYRIGHT RESERVED.
YYYY/MM/DD HH:MM
JL6208
JL6317
1k
R6217
XX
R6401
D6301
XX
JL6202
JL6303
DA2J10100L
D6516
JL6539
25V
0.01
C6513
JL6310
DZ2J220M0L
D6514
330k
R6502
JL6410
1%
10k
R6209
JL6505
10k
R6218
47
R6544
JL6541
2.2k
R6402
JL6545
XX
R6309
JL6549
JL6512
JL6504
R6304
XX
JL6514
50V
1000p
C6525
330k
R6504
JL6535
JL6112
JL6524
JL6551
JL6314
JL6559
XX
R6202
JL6211
JL6103
JL6216
JL6319
XX
R6535
JL6203
JL6306
10k
R6552
JL6219
220
R6549
JL6419
JL6311
50V
1000p
C6515
JL6304
D6303
XX
JL6506
JL6411
D6510
XX
JL6550
JL6509
JL6403
JL6547
JL6215
JL6542
JL6530
XX
C6401
JL6416
JL6526
5.6k
R6306
JL6523
1/4W
2.2
R6308
25V
0.1
C6532
JL6536
JL6102
JL6548
JL6565
JL6406
JL6224
JL6560
JL6207
JL6104
JL6220
50V
100p
C6307
DA2J10100L
D6517
JL6209
JL6321
16V
0.22
C6527
50V
10
C6534
M’t
PS2561AL1-1-V-W
PH6301
1W
100k
R6302
1/2W
10
R6301
JL6307
DZ2J062M0L
D6511
DA2J10100L
D6310
10k
R6553
1%
47k
R6512
JL6322
3.3k
R6204
JL6308
D6503
XX
JL6510
10V
0.47
C6505
JL6116
JL6414
JL6214
JL6546
JL6217
JL6543
50V
C6524
1000p
JL6222
JL6533
PS2561AL1-1-V-W
PH6302
1%
6.8k
R6210
JL6528
JL6511
JL6113
JL6531
10k
R6409
JL6223
C6302
XX
JL6554
JL6566
47
R6545
JL6105
1k
R6201
50V
4700p
C6313
JL6320
330k
R6503
1%
330
R6517
JL6213
R6205
470
JL6312
JL6540
330k
R6505
JL6316
10k
R6516
D6502
1
2
3
4
JL6513
JL6555
DA2J10100L
D6515
JL6109
220
R6550
1
2
2P
CN6101
AC_N
AC_L
JL6409
50V
1000p
C6516
JL6305
PS2561AL1-1-V-W
PH6303
JL6556
JL6552
JL6532
JL6527
JL6106
JL6503
JL6423
JL6537
JL6553
JL6568
JL6110
47k
R6206
JL6221
JL6564
DZ2J150M0L
D6402
25V
0.1
C6529
25V
0.1
C6402
JL6201
10k
R6511
JL6212
JL6313
XX
R6403
50V
1000p
C6511
470k
R6538
JL6301
JL6315
PS2561AL1-1-V-W
PH6501
JL6309
JL6415
10k
R6219
JL6417
1%
56k
R6513
4.7k
R6307
JL6502
JL6404
JL6302
JL6501
JL6558
JL6408
JL6544
JL6418
JL6534
JL6529
JL6101
JL6525
JL6218
JL6517
16V
0.22
C6201
JL6516
JL6567
JL6413
JL6111
16V
0.22
C6528
JL6562
JL6204
JL6210
500V
470p
C6304
JL6538
1k
R6548
JL6424
JL6427
JL6425
JL6428
JL6426
JL6420
JL6421
JL6429
JL6430
JL6432
JL6431
JL6422
JL6405
JL6407
JL6402
JL6401
JL6801
JL6802
1%
4.7k
R6407
100
R6212
50V
C6204
1000p
C6207
0.1
16V
0.1
C6209
16V
0.1
C6537
XX
C6208
16V
0.1
C6306
JL6563
25V
C6312
0.01
JL6318
25V
0.01
C6504
1%
24k
R6501
1%
24k
R6533
D6506
XX
LTC014EUBFS8TL
Q6803
JL6810
JL6840
0
R6815
JL6838
C6808
1000p
JL6834
JL6839
JL6823
JL6827
C6803
1000p
C6823
1000p
JL6805
JL6849
XX
C6804
JL6808
JL6848
JL6831
D6806
XX
JL6819
1/10W
1%
330k
R6819
JL6837
C6822
1000p
JL6842
JL6826
1/10W
1%
330k
R6821
JL6820
D6807
XX
R6803
220k
R6804
220k
JL6811
50V
C6827
1000p
JL6804
JL6812
JL6836
JL6830
JL6803
JL6825
JL6829
JL6807
JL6832
R6829
1k
10k
R6811
C6805
1000p
JL6841
JL6809
JL6835
XX
R6818
C6812
1000p
JL6824
JL6828
1/10W
1%
330k
R6820
LSCR523UBFS8TL
Q6203
LSAR523UBFS8TL
Q6204
DA2J10100L
D6404
4.7k
R6411
JL6433
JL6434
JL6843
2W
0.33
R6554
2W
0.33
R6555
35V
C6310
100
M’t
LTC014EUBFS8TL
Q6302
JL6561
R6551
1M
25V
C6539
0.01
500V
C6523
470p
500V
C6522
470p
JL6521
2W
R6524
22
JL6520
2.2k
R6542
50V
1000p
C6535
50V
1000p
C6533
1%
220k
R6536
1%
100k
R6534
1/4W
22
R6515
1/4W
22
R6514
1k
R6405
XX
R6406
D6805
XX
ahceM tnuoM
A6502
Q6502,Q6503
50V
C6826
100p
25V
C6825
0.01
C6101
0.1
310V
C6102
0.1
100
R6824
100
R6825
1W
0.22
R6812
22k
R6805
22k
R6806
18k
R6539
1W
R6410
470
1%
1.2k
R6408
3
1
2
MM1431FNRE
IC6401
3
1
2
MM1530DNRE
IC6201
JL6412
JL6822
JL6205
JL6206
1/10W
1%
9.1k
R6822
R6303
XX
Q6301
XX
JL6519
0.01
C6520
1M
R6522
JL6117
JL6118
GAP 6.5mm
GAP 6.5mm
50V
2.2
C6311
M’t
D6513
XX
D6512
XX
D6501
XX
RB751V40,115
D6504
C6103
0.1
125uH
L6504
100
R6833
DA4J104K0L
D6814
JL6821
10k
R6834
10k
R6835
10k
R6836
DA2J10100L
D6815
100
R6832
JL6860
JL6861
JL6862
XX
R6101
XX
R6102
XX
R6104
XX
R6103
CXA3810M-T6
IC6501
1
PFC_OUT1
2
MODE1
3
AC_DETIN
4
AC_VRMS
5
PFC_ZCD
6
PFC_CS
7
PFC_VAO
8
PFC_VSENSE
9
PFC_OVP
01
PFC_TONMAX
11
RM_OFFADJ
21
RM_FMIN
31
RM_SS
41
RM_CS2
51
RM_CS1
61
RM_RT
71
VREF
81
GND
91
VCC
02
B_OK
12
RM_OUTN
22
AC_DETOUT
32
RM_OUTP
42
MODE2
16V
1
C6210
16V
1
C6308
C6820
XX
16V
1
C6830
C6405
XX
C6305
XX
C6309
0. 1
R6214
22k
R6215
47k
50V
1000p
C6206
8 7 5
4321
MIP2H2
IC6301
VDD
FB
OLP
VCCDRAIN
SOURCE
SOURCE
D6305
XX
D6304
XX
120k
R6830
1%
1/2W
0.1
R6543
JL6569
XX
C6543
XX
R6556
JL6119
C6809
XX
1%
200k
R6523
C6104
0.1
L6801
240uH
8 1
45
6
25V
C6810
1
25V
C6406
1
VD6101
VD6102
D6G-TA1
D6302
50V
0. 1
C6536
JL6120
XX
FB6402
XX
FB6105
1%
100
R6541
C6817
0. 1
C6807
XX
C6509
XX
50V
470p
C6519
1%
2M
R6525
1%
2M
R6526
1%
2M
R6527
1%
2M
R6528
2W
R6519
0. 1
ahceM tnuoM
A6801
Q6801
R6213
XX
R6221
100
1
2
3
4
5
6
7
8
9
10
11
12
13
14
15
16
16P
CN6401
GND
VCC_3_3_STBY
GND
POWER_ON/OFF
VCC_12V
AC_OFF_DET
VCC_12V
BLKT_EN
AUDIO_12V
BL_CNTRL
AUDIO_12V
BKL_ERR
VCC_12V
GND
VCC_12V
GND
JL6435
JS6801
XX
JL6121
JL6122
16V
C6403
1000
16V
C6404
1000
SG20SC4M
D6403
1/4W
15
R6802
250V
4A
F6101
220
R6809
1%
16V
0.22
C6514
250V
C6106
100p
C6107
470p
C6108
470p
250V
C6502
100p
JS6401
XX
JS6501
XX
JS6104
XX
JS6103
XX
5
JS6102
4700p
C6829
1%
470
R6540
1%
270
R6546
25V
C6821
0.01
TH6501
2W
R6831
1%
R6823
150k
50V
C6815
0.01
LSAR523UBFS8TL
Q6804
2200p
C6831
10k
R6839
JL6863
JL6864
R6810
1%
470
6.3V
820
C6202
LTC014EUBFS8TL
Q6201
50V
C6203
4700p
R6211
6.8k
S
KF5N50FZA-U/P
Q6502
S
KF5N50FZA-U/P
Q6503
S
KF5N50FZA-U/P
Q6801
JL6436
JL6437
JL6438
JL6439
JL6440
JL6441
JL6442
JL6443
JL6444
JL6445
JL6446
JL6865
JL6866
FB6101
XX
FB6103
XX
FB6102
XX
FB6107
FB6108
FB6501
XX
FB6401
215uH
L6505
1
4
5
7
9
IC6801
BD9488F
1
OVP
2
UULO
3
SS
4
RT
5
PWM1
6
PWM2
7
FAILB
8
ADIM
9
ADIM_P
10
GND
11
DIMOUT
12
GATE
13
STB
14
VCC
15
ISENSE
16
FB
17
CS
18
TC54
2P
CN6801
1
LED+
2
LED-
3 4
XX
R6558
C6501
XX
SR260
D6201
S
RU1C001UNTCL
Q6202
800V
0.012
C6541
T6502
2
6
8
9
11
12
13
14
3
Mount Mecha
X25863671
A6501
XX
C6542
Mount Mecha
X25863661
A6401
1
2
3
4
D3SB80
D6101
450V
82
C6530
C6110
XX
C6109
XX
15k
R6509
15k
R6510
450V
1
C6506
450V
C6802
1
S
Q6501
KF11N50F
1
2
3
4
5
6
T6501
T6301
1
2
3
4
5
9
11EFS4G-TA1B2
D6308
11EFS4G-TA1B2
D6309
D6808
XX
1/4W
R6310
470
JS6302
XX
1
2 3
4
L6101
1
2 3
4
L6102
12.8mH
C6112
XX
1%
47k
R6207
FB6801
50V
C6832
4700p
25
JS6502
50V
C6824
100p
630V
1000p
C6833
C6834
XX
XX
C6407
XX
C6408
FB6802
JS6802
XX
C6503
470p
C6813
XX
JL6867
1%
390
R6508
FB6111
XX
R6105
XX
R6106
XX
R6108
JS6106
XX
FB6109
XX
XX
R6107
JS6105
XX
FB6110
XX
1kV
C6303
47p
630V
C6540
470p
JS6110
XX
JS6111
XX
FB6112
JL6868
FB6505
JL6123
JL6124
5
JS6108
C6521
XX
56
R6808
56
R6807
1k
R6814
25V
C6811
0.01
R6801
100k
D6509
1kohm
FB6104
FB6301
630V
1000p
C6545
330ohm
FB6506
330ohm
FB6803
630V
C6544
100p
FB6503
XX
5
JS6109
XX
FB6106
1kohm
FB6502
43k
R6837
560k
R6838
1%
R6817
680k
FB6508
330ohm
JL6125
JL6126
JL6127
JL6128
FB6507
C6546
470p
D6804
XX
D6803
XX
D6801
XX
D6802
XX
450V
1
C6507
450V
1
C6508
DZ2J082M0L
D6306
DZ2J082M0L
D6307
R6305
220
S3L40U-5060
D6817
S3L40U-5060
D6818
S3L40U-5060
D6816
S3L40U-5060
D6819
S3L40U-5060
D6820
REG12V FB
POWER ON
STBY FB
AC OFF DET
OVP 320V
UVLO 61V
ILED 300mA
OCP 440mA
RT 125kHz SS 10ms
LED 237V
OCP 2.6A
Fmin 73kHz
RM_OFF 245V
REG 12.3V
MIP-OVP
MIN 26V
TYP 29V
MAX 32V
MIP-OCP
MIN 0.405A
TYP 0.450A
MAX 0.495A
OCP 7.4A
APS-350(GL5)_PP
APS-350(GL5)_PP
APS-350(GL5)
2
2
2
2
2
2
2
3.3

Other manuals for Sony KDL-24R400A

Related product manuals