EasyManua.ls Logo

Sony KLV-32W400A - Wiring Layout

Sony KLV-32W400A
57 pages
Print Icon
To Next Page IconTo Next Page
To Next Page IconTo Next Page
To Previous Page IconTo Previous Page
To Previous Page IconTo Previous Page
Loading...
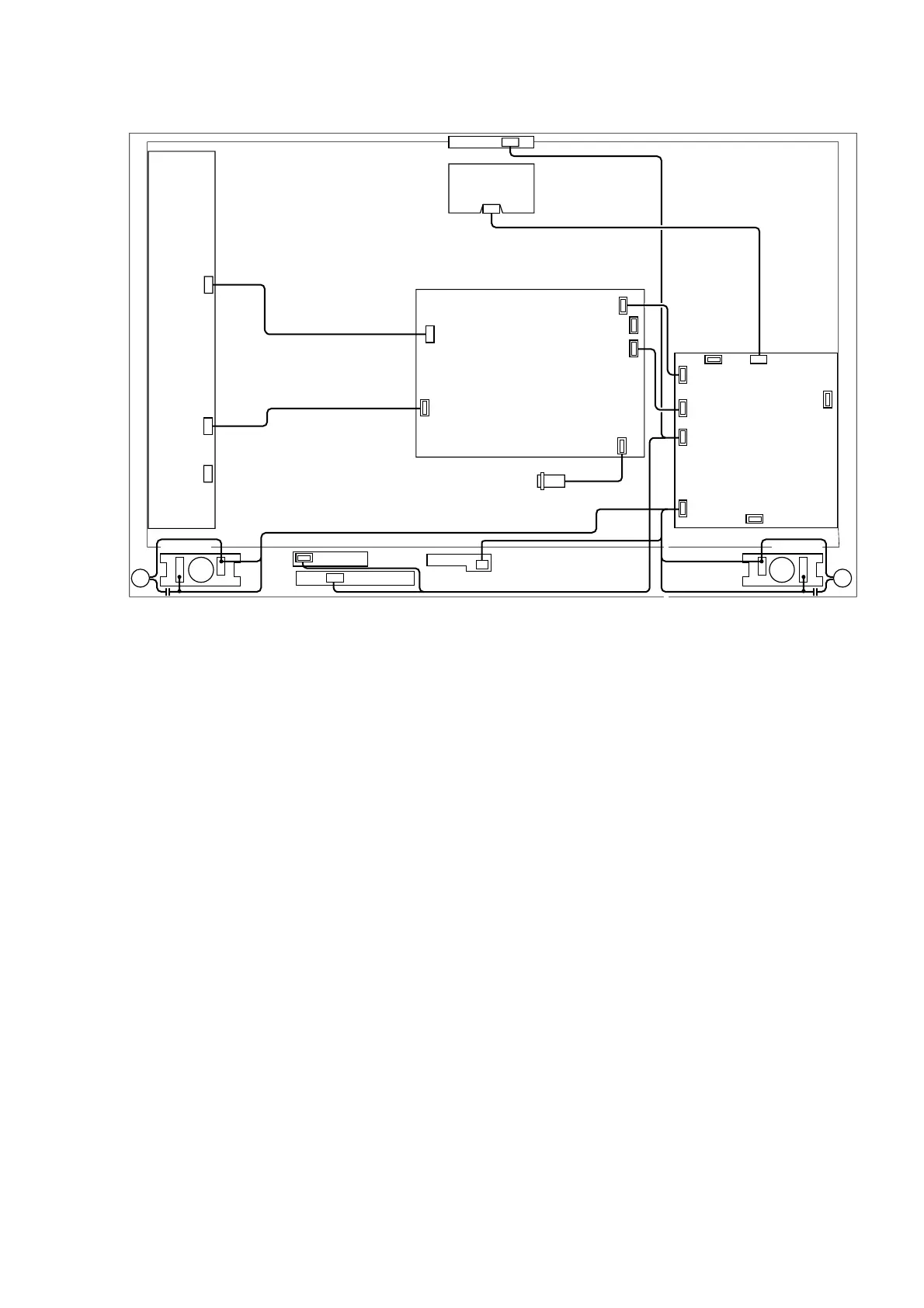
KLV-32/40/46/52W400A (GA) 1-22
KLV-46W400A
1-3-8. WIRING LAYOUT
T-CON
SWITCH UNIT
CN6154
CN6000
CN6151
CN6150
CN6700
CN6706
H4 board
H3E board
INVERTER
IP5 board
CN1
CN128
CN401
CN301
CN125
AC inlet
CN5501
CN5500
CN8001
CN3004
CN2001
CN4001
CN3003
CN4000
BG1G board
ILLUMINATION
MODULE
Speaker (R)Speaker (L)

Table of Contents

Related product manuals