EasyManua.ls Logo

Soosan SB121 - Page 37

Default Icon
121 pages
Print Icon
To Next Page IconTo Next Page
To Next Page IconTo Next Page
To Previous Page IconTo Previous Page
To Previous Page IconTo Previous Page
Loading...
Soosan
H
y
draulic Breaker
Soosan Heav
y
Industries Co.
,
Ltd
SB45 151TS -P
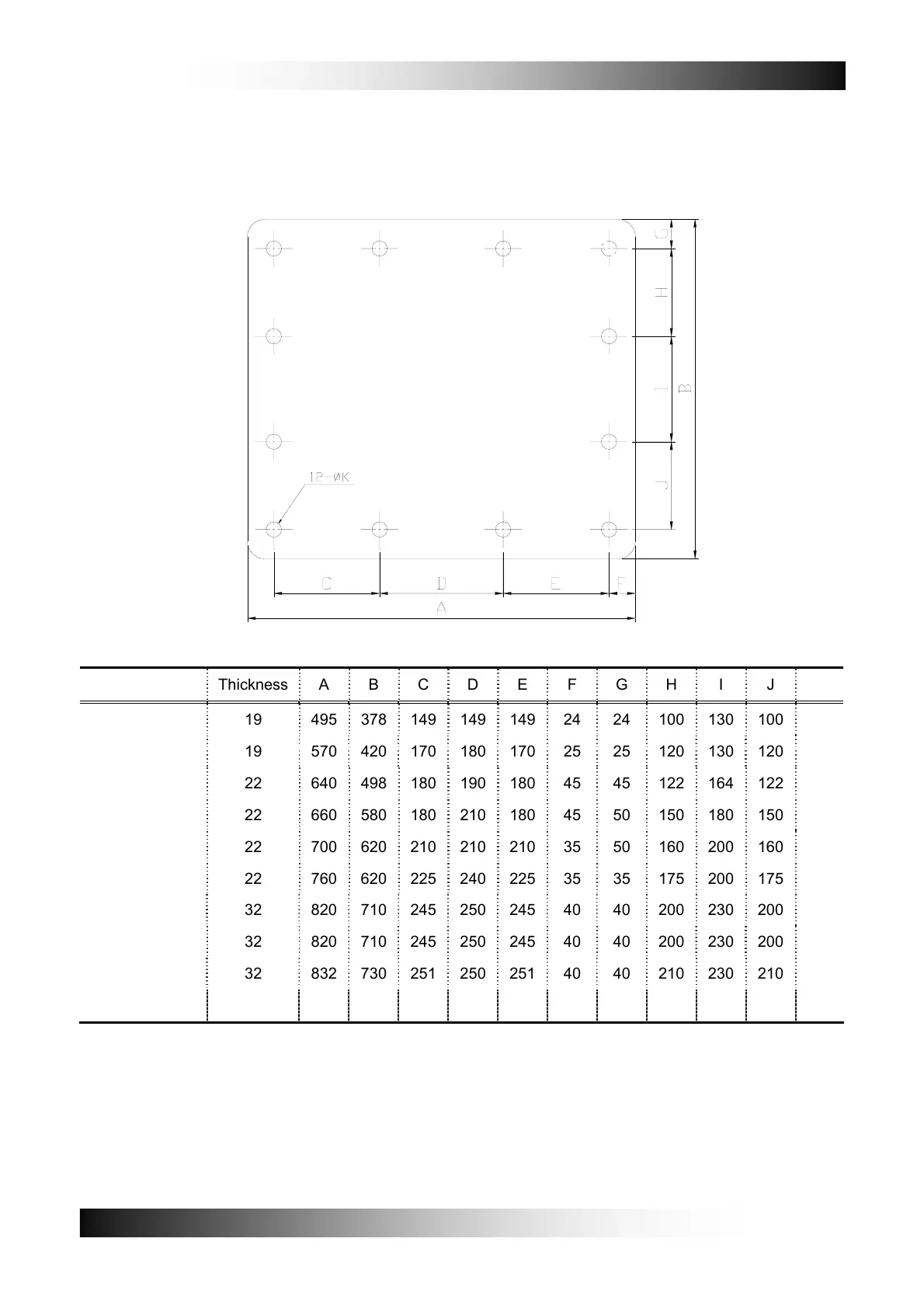
Model Thickness A B C D E F G H I J K
SB45TS-P 19 495 378 149 149 149 24 24 100 130 100 21
SB50TS-P 19 570 420 170 180 170 25 25 120 130 120 21
SB60TS-P 22 640 498 180 190 180 45 45 122 164 122 26
SB70TS-P 22 660 580 180 210 180 45 50 150 180 150 26
SB81TS-P 22 700 620 210 210 210 35 50 160 200 160 26
SB100TS-P 22 760 620 225 240 225 35 35 175 200 175 26
SB121TS-P 32 820 710 245 250 245 40 40 200 230 200 38
SB130TS-P 32 820 710 245 250 245 40 40 200 230 200 38
SB140TS-P 32 832 730 251 250 251 40 40 210 230 210 38
SB151TS-P 35 896 760 258 260 258 60 60 220 200 220 38
4. Preparation for Installation and Operation.

Related product manuals