EasyManua.ls Logo

Stagnoli E24 - Page 3

Default Icon
Print Icon
To Next Page IconTo Next Page
To Next Page IconTo Next Page
To Previous Page IconTo Previous Page
To Previous Page IconTo Previous Page
Loading...
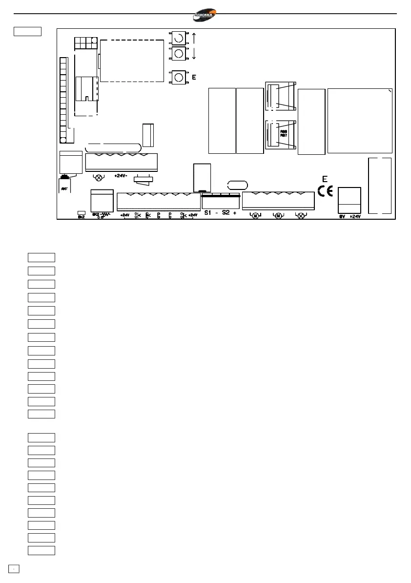
19
RO
3a
3b
2
3c
6
1
12
10
11
16
13
4 5 8
9
7
14
23
15
18
17
19
20
21
22
1 Memorie de sistem
2 Afişaj
3 Chei de setare
4 Releu direcţional motor 1
5 Releu direcţional motor 2
6 Mosfet motor 1
7 Mosfet motor 2
8 Releu bliţ
9 Punte dio
10 Modul receptor
11 PTC 3A pentru închidere electrică 12V
12 Închidere electrică mosfet
13 Poartă deschisă (SCA)/accesoriinchidere electrică detector poar deschisă
terminal
ieşire
14 Releu detector poar deschisă
15 Codificator PTC 0,1A
16 Terminal aerian radio
17 Colier rezistent
18 Terminal intrare colier
19 Cone
ctor intrare/controale
20 Conector codificator motor
21 Conector bliţ/motoare
22 Terminal putere centrală 24V
23 Siguranţă rapidă 2,5A

Related product manuals