EasyManua.ls Logo

Stow MS-93 - Electric Motor Wiring Diagram

Default Icon
94 pages
Print Icon
To Next Page IconTo Next Page
To Next Page IconTo Next Page
To Previous Page IconTo Previous Page
To Previous Page IconTo Previous Page
Loading...
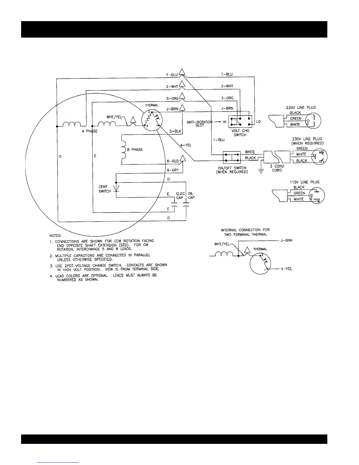
PAGE 36 — STOW MS-93 MIXER — OPERATION MANUAL — REV. #5 (03/26/10)
STOW MS-93 MIXER — WIRING DIAGRAM (ELECTRIC MOTOR)
Figure 38. Electric Motor Wiring Diagram