EasyManua.ls Logo

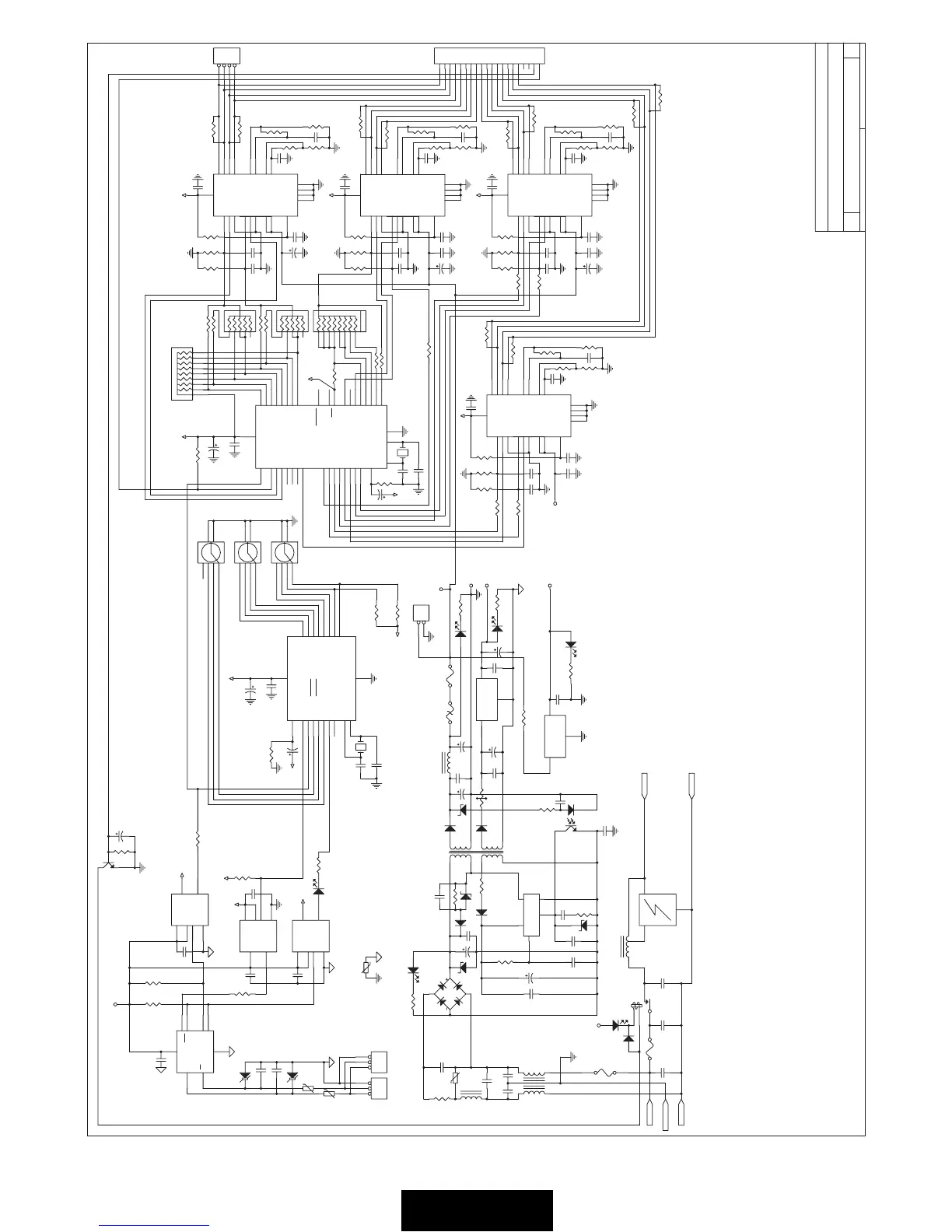
STUDIO DUE MINICITY 150 - Electronic Diagram; Complete Circuit Diagram

Default Icon
16 pages
Print Icon
To Next Page IconTo Next Page
To Next Page IconTo Next Page
To Previous Page IconTo Previous Page
To Previous Page IconTo Previous Page
Loading...
... 14 ...
•ELECTRONIC DIAGRAM art.9902/art.0102•
987654321
R21
1
2
C32
R7
1
2
C28
R2
A
2
K
3
VCC
8
GND
5
VB
7
VO
6
U2
6N137
1
3
2
Q1
1 2
C27
R1
R
1
RE
2
V
C
C
8
G
N
D
5
DE
3
D
4
A
6
B
7
U1
75176
1 2
C25
1 2
C26
Z2
12
C29
1
2
C31
R3
R5
A
2
K
3
VCC
8
GND
5
VB
7
VO
6
U3
6N137
6N137
R4
R17
12
C36
12
C37
R20
P0.0
P0.0
39
P0.1
38
P0.2
37
P0.3
36
P0.4
35
P0.5
34
P0.6
33
PSEN
29
ALE
30
EA
31
P2.7
28
P2.5
26
P2.4
25
P2.3
24
P2.2
23
P2.1
22
P2.0
21
P2.6
P2.6
27
P0.7
32
V
C
C
4
0
G
2
0
X
1
1
9
X
2
1
8
RXD
10
RST
9
P1.0
P1.0
1
P1.1
2
P1.2
P1.2
3
P1.3
4
P1.4
5
P1.5
P1.5
6
P1.6
7
P1.7
P1.7
8
P3.1
11
P3.2
12
12
P3.3
13
P3.4
14
P3.5
15
P3.6
16
P3.7
17
U6
1
4
3
6
2
5
S1
HUNDREDS
1
4
3
6
2
5
S2
TENS
1
4
3
6
2
5
S3
UNITS
12
C38
12
C39
R22
R62
1
2
3
4
5
6
R25
1
2
3
4
5
6
R23
R61
R24
1 2
C43
C43
1
2
C44
1
2
C45
R30 R31
R32
VR1
7
PH1
9
DS1
10
VR2
16
16
PH2
14
DS2
13
MA1
3
MB1
1
E1
2
K1
8
E2
21
K2
15
V
C
C
1
2
G
N
D
1
8
G
N
D
1
7
G
N
D
6
G
N
D
5
RC
11
VMM1
4
VMM2
19
19
MA2
20
MB2
22
U7
1
2
C49
R33
R33
R64
R64
R65
1
2
3
4
SHUTTER
1
2
C50
R34
R35
R36
R66
1
2
C46
1
2
C48
1 2
C51
R39
VR1
7
PH1
9
DS1
10
VR2
16
PH2
14
DS2
13
MA1
3
MB1
1
E1
2
K1
8
E2
21
K2
15
V
C
C
1
2
G
N
D
1
8
G
N
D
1
7
G
N
D
6
G
N
D
5
RC
11
VMM1
4
VMM2
19
MA2
20
MB2
22
U8
R38R37
9
8
7
6
5
4
3
2
1
R29
R26
R27
R63
1
2
C40
R18
RST
1
P3.0 RXD
P3.0 RXD
2
P3.1 TXD
P3.1 TXD
3
P3.2 INT0
P3.2 INT0
6
P3.3 INT1
P3.3 INT1
7
P3.4 T0
P3.4 T0
8
P3.5 T1
P3.5 T1
9
P3.7
11
XTAL2
4
XTAL1
5
G
N
D
1
0
V
C
C
2
0
P1.7
19
P1.6
18
P1.5
17
P1.4
16
P1.3
15
P1.2
14
P1.1 AI1
P1.1 AI1
13
P1.0 AI0
P1.0 AI0
12
U5
12
XT2
12
C33
1 2
C34
1 2
C35
12
C30
1 2
PTC1
R6
A
2
K
3
VCC
8
GND
5
VB
7
VO
6
U4
6N137
6N137
RX DMX
RX DMX
1
2
PTC2
1
2
PTC2
Z1
123
DMX IN
DMX IN
123
DMX OUT
DMX OUT
NTC1
12
VR1
R8
1
2
L2
1
2
C6
1
2
C7
1
2
C8
1 2
C9
R10
12
D2
Z3
Z4
1
2
C16
1
2
C17
1 2
L3
1 5
4 8
T1
1 2
D4
Z5
1
2
C18
+27
R16
R19
1 2
F30V
1 2
TJ
1
2
FAN
12
XT1
1 2
C41
12
C42
1 2
C67
R28
1
2
C52
1
2
C53
1
2
C54
1
2
C55
1
2
C56
1
2
C57
1
2
C58
R40
R41
R42
R43
1
2
3
4
5
6
7
8
9
10
11
12
13
14
15
16
17
18
19
20
J1
TO MOTOR
TO MOTOR
R67
R67
1
2
C65
R47
R68
R69
R32
R33
1 2
C59
1
2
C60
1
2
C61
R44
R45
R
R46
VR1
7
PH1
9
DS1
10
VR2
16
PH2
14
14
DS2
13
MA1
3
MB1
1
E1
2
K1
8
E2
21
K2
15
V
C
C
1
2
G
N
D
1
8
G
N
D
1
7
G
N
D
6
G
N
D
5
RC
11
VMM1
4
VMM2
19
MA2
20
MB2
22
U9
1
2
C73
R56
R57
VR1
7
PH1
9
DS1
10
VR2
16
PH2
14
DS2
13
MA1
3
MB1
1
E1
2
K1
8
E2
21
K2
15
V
C
C
1
2
G
N
D
1
8
G
N
D
1
7
G
N
D
6
G
N
D
5
RC
11
VMM1
4
VMM2
19
MA2
20
MB2
22
U10
R70
R71
1
2
C68
1
2
C69
1
2
C72
R51
R52
R53
R54
R55
1
2
C71
+5DMX
1
2
C19
1
2
C23
1
2
C24
R14
R15
VI
G
N
D
VO
U12
R60
+5
1 5
4 8
1 2
C15
1
2
C21
1
2
C22
R13
VI
G
N
D
VO
U13
1
2
4
3
U14
1 2
D5
1 3
MF1
1
2
C10
1
2
C11
1
2
C12
C12
1
2
C13
1
2
C14
R9
R11
1
2 3
45
U11
12
D3
1
2
1 2
C4
1 2
C3
1 2
C5
1
2
L1
1
2
ELECTRONIC
FUSE
1 2
FLAMP
1
2
C1
1
2
PFC
4
3
1
2
K1
1 2
D1
LAMP ON
LAMP ON
R12
Z6
1
2
C2
31
2
IGNITOR
12
BALLAST
1
2
C75
1
2
C74
R58
R59
1
2
C62
1
2
C63
1
2
C64
C64
1
2
C66
R48
R49
R50
R70
R71
R71
TO THERMIC SWITCH
TO THERMIC SWITCH
LAMP ON/OFF
LAMP
ON/OFF
+5V
VDD
+5V
+5V
+5V
8
1
2
4
8
1
2
4
8
+5V +5V
+5V
DIMMER
DIMMER
MAGENTA
+5V
+5V
+5V
1
2
4
+5V
+5V
o
o
+5V
+5V
GND
POWER
+30V
+5V
CYAN
+5V
YELLOW
+30V
+5V
+VDD
oo
MAIN
EARTH
+30V
LAMP
LAMP
MAIN
Date: June 24, 1999
June
24, 1999
Sheet 1 of 1
Size Document Number
Document Number
REV
D
1.0
Title
MINICITY
MINICITY

Related product manuals