EasyManua.ls Logo

Stulz CRS 210 CW - Page 13

Stulz CRS 210 CW
86 pages
Print Icon
To Next Page IconTo Next Page
To Next Page IconTo Next Page
To Previous Page IconTo Previous Page
To Previous Page IconTo Previous Page
Loading...
13
/04.2016/G35EN
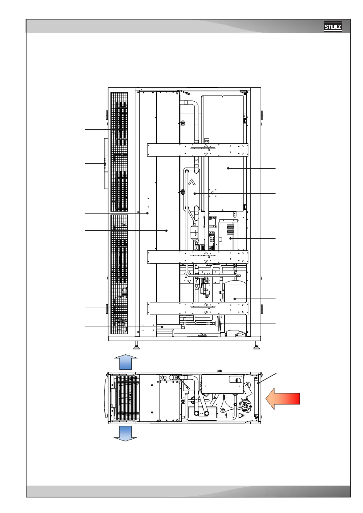
Air filter
E-box
Inverter
Electronic
expansion valve
Compressor
Fan
Controller
Evaporator
Steam humidifier
(Option)
Condensate drip
tray
Internal layout of GES unit, size 1
Condenser
GE-coil

Related product manuals