EasyManua.ls Logo

Stulz CRS 211 AS - Page 14

Stulz CRS 211 AS
86 pages
Print Icon
To Next Page IconTo Next Page
To Next Page IconTo Next Page
To Previous Page IconTo Previous Page
To Previous Page IconTo Previous Page
Loading...
14
/04.2016/G35EN
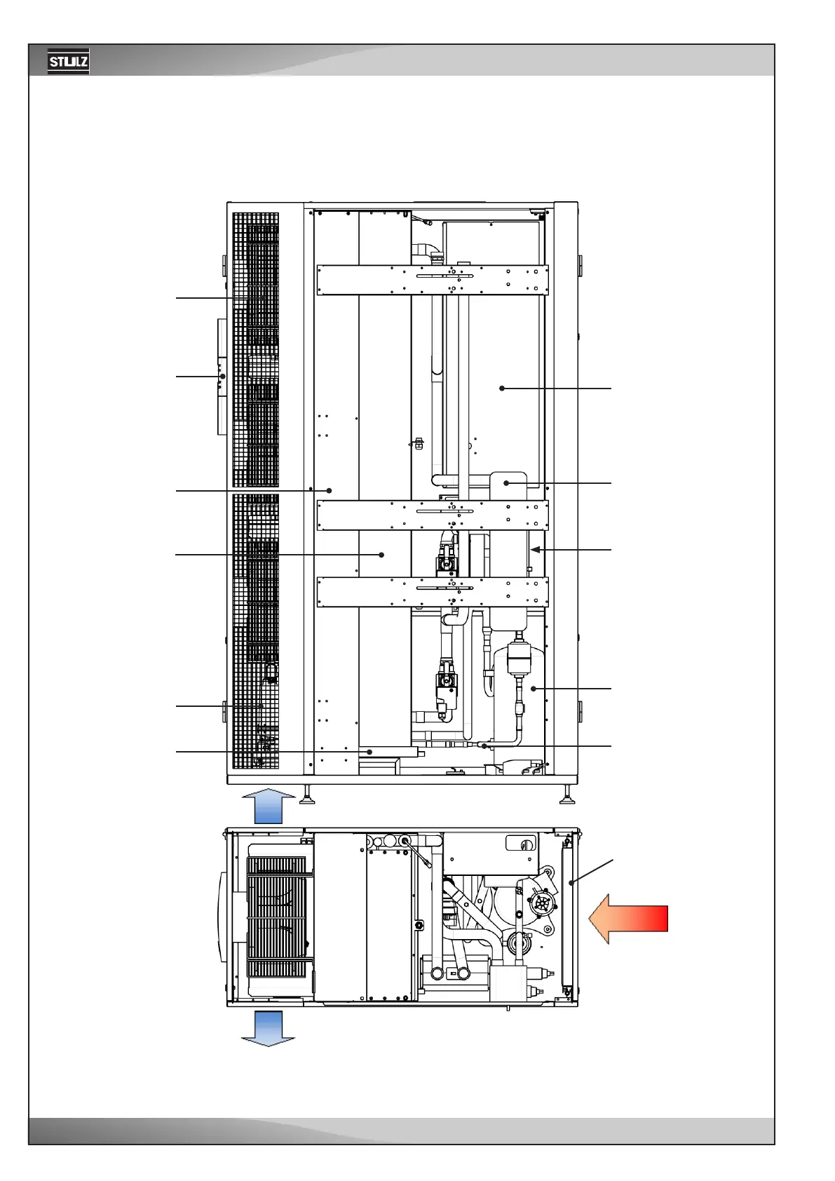
Internal layout of GES unit, size 2
E-box
Inverter
(behind condenser)
Electronic
expansion valve
Compressor
Fan
Controller
Evaporator
Steam humidifier
(Option)
Condensate drip
tray
Condenser
GE-coil
Air filter

Related product manuals