EasyManua.ls Logo

Stulz CRS 251 A - Page 12

Stulz CRS 251 A
86 pages
Print Icon
To Next Page IconTo Next Page
To Next Page IconTo Next Page
To Previous Page IconTo Previous Page
To Previous Page IconTo Previous Page
Loading...
12
/04.2016/G35EN
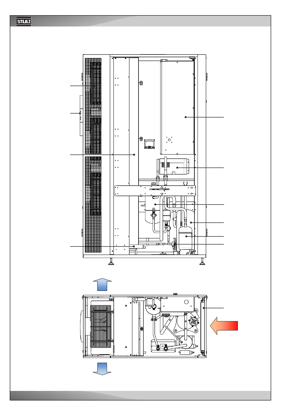
Air filter
E-box
Inverter
Electronic
expansion valve
Compressor
Liquid receiver
Fan
Controller
Evaporator
Condensate drip
tray
Internal layout of AS unit, size 2
Oil separator

Related product manuals