EasyManua.ls Logo

Stulz CRS 251 A - Page 14

Stulz CRS 251 A
86 pages
Print Icon
To Next Page IconTo Next Page
To Next Page IconTo Next Page
To Previous Page IconTo Previous Page
To Previous Page IconTo Previous Page
Loading...
14
/04.2016/G35EN
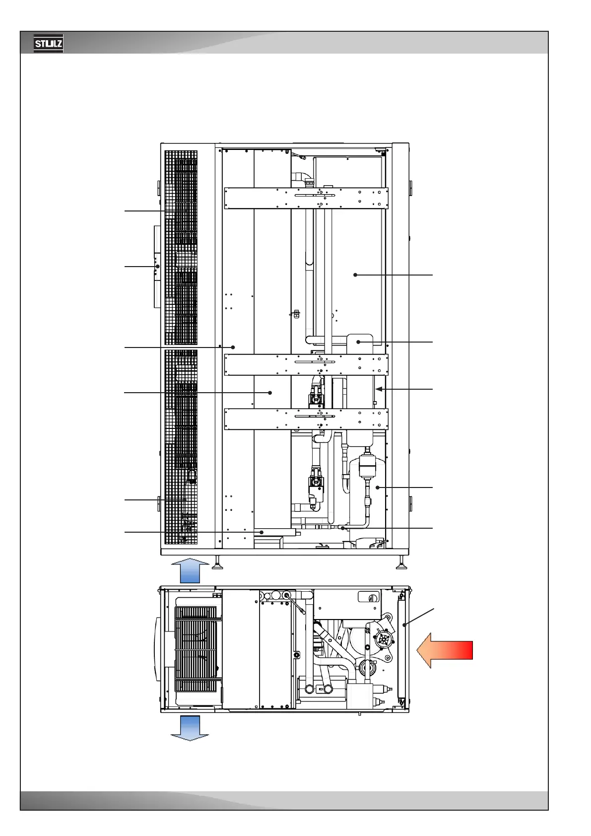
Internal layout of GES unit, size 2
E-box
Inverter
(behind condenser)
Electronic
expansion valve
Compressor
Fan
Controller
Evaporator
Steam humidifier
(Option)
Condensate drip
tray
Condenser
GE-coil
Air filter

Related product manuals