EasyManua.ls Logo

Stulz CRS 251 GES - Page 12

Stulz CRS 251 GES
86 pages
Print Icon
To Next Page IconTo Next Page
To Next Page IconTo Next Page
To Previous Page IconTo Previous Page
To Previous Page IconTo Previous Page
Loading...
12
/04.2016/G35EN
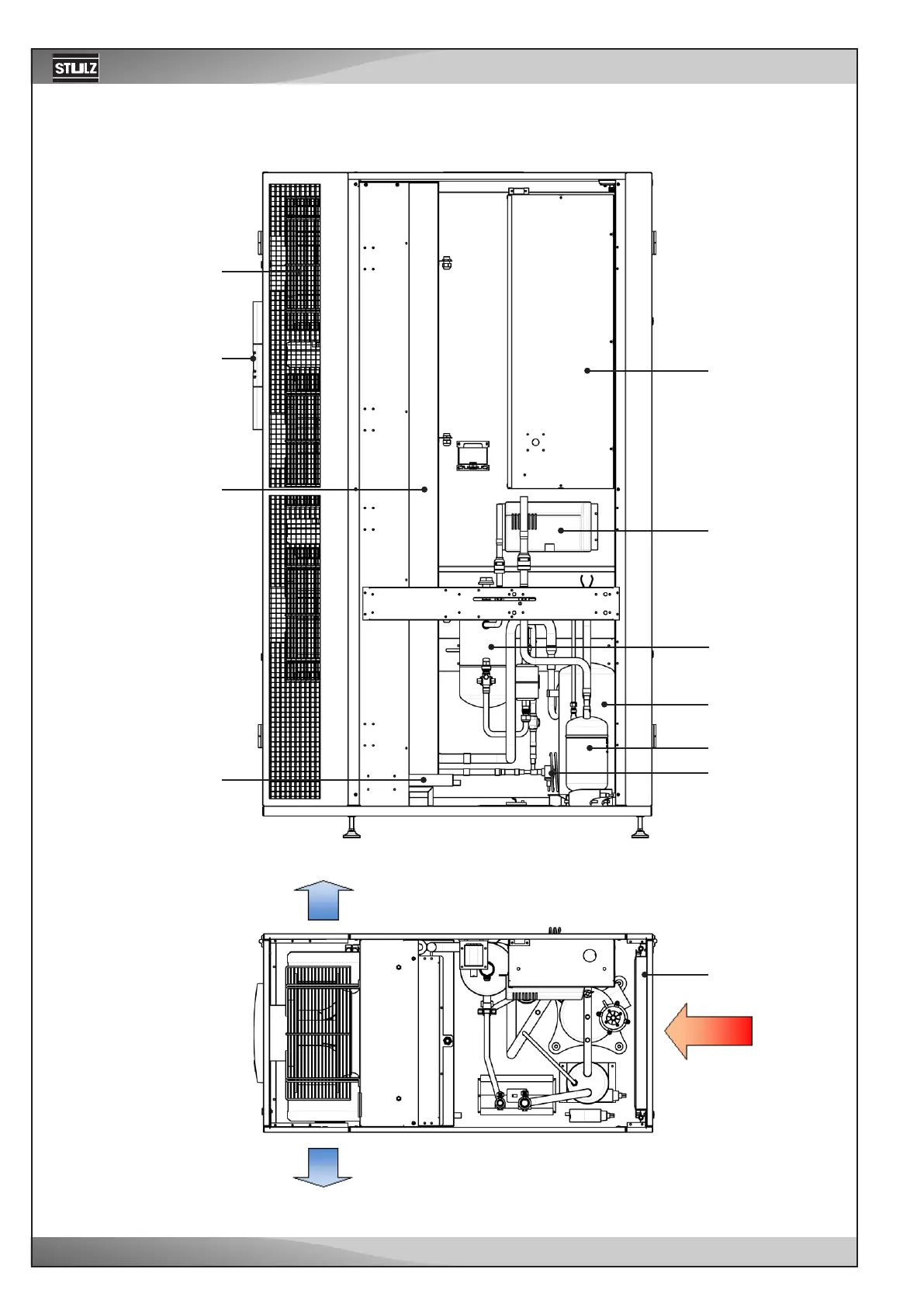
Air filter
E-box
Inverter
Electronic
expansion valve
Compressor
Liquid receiver
Fan
Controller
Evaporator
Condensate drip
tray
Internal layout of AS unit, size 2
Oil separator