EasyManua.ls Logo

Stulz CRS 251 GES - Page 40

Stulz CRS 251 GES
86 pages
Print Icon
To Next Page IconTo Next Page
To Next Page IconTo Next Page
To Previous Page IconTo Previous Page
To Previous Page IconTo Previous Page
Loading...
40
/04.2016/G35
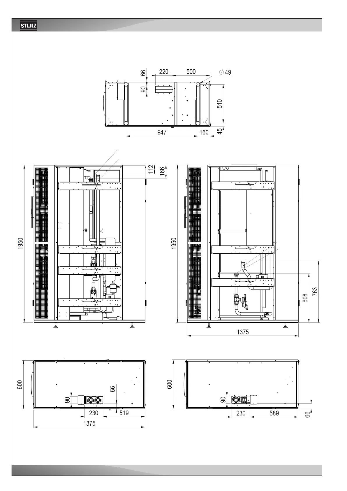
CRL 361 GES CRL 560 CW
EN
bottom view
side view
top view
4 supports
water outlet
water inlet
water
outlet
water
inlet
Size 2

Related product manuals