EasyManua.ls Logo

Stulz CRS 560 CW - Page 16

Stulz CRS 560 CW
86 pages
Print Icon
To Next Page IconTo Next Page
To Next Page IconTo Next Page
To Previous Page IconTo Previous Page
To Previous Page IconTo Previous Page
Loading...
16
/04.2016/G35EN
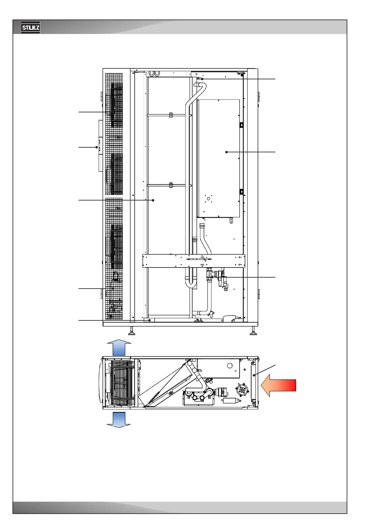
Air filter
E-box
Vent valve
2-way valve
Fan
Controller
Chilled water coil
Steam humidifier
(option)
Condensate drip
tray
Internal layout of CW unit, size 1

Related product manuals