EasyManua.ls Logo

Stulz Mini-Space DX CCU51A - Air Damper - Downflow

Stulz Mini-Space DX CCU51A
74 pages
Print Icon
To Next Page IconTo Next Page
To Next Page IconTo Next Page
To Previous Page IconTo Previous Page
To Previous Page IconTo Previous Page
Loading...
8
/01.2017/air_MSDX
120
80
EN
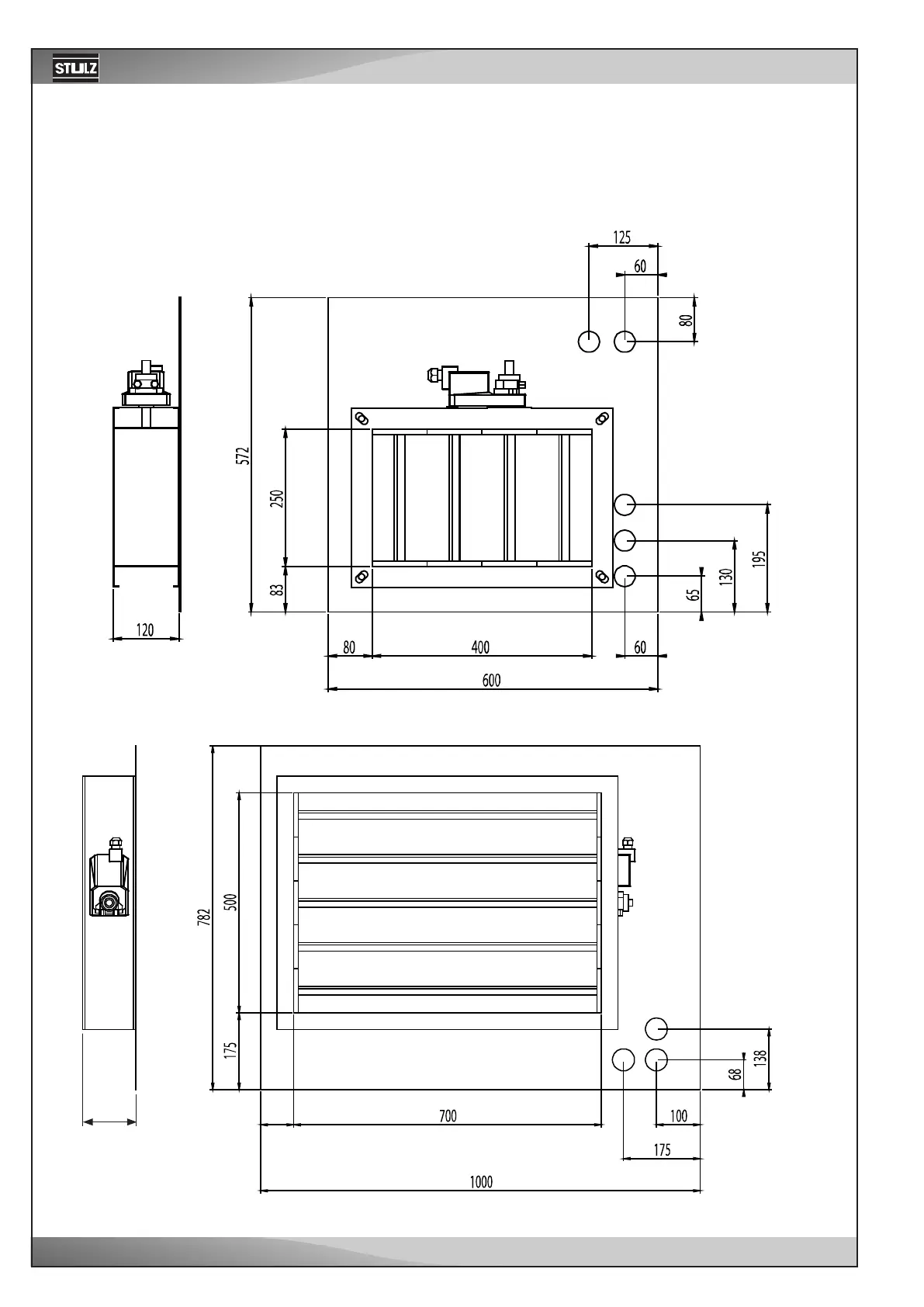
Bottom view
Front side
Bottom view
Front side
Air damper - Downflow
Here the use of the air damper on the discharge side of downflow units is shown. For the installation of an air damper
below the downflow unit an adaptor plate (see page before) is necessary.
Size 2:
Size 1:

Related product manuals