EasyManua.ls Logo

Sub-Zero 700BF - Page 8

Sub-Zero 700BF
11 pages
Print Icon
To Next Page IconTo Next Page
To Next Page IconTo Next Page
To Previous Page IconTo Previous Page
To Previous Page IconTo Previous Page
Loading...
Planning Information
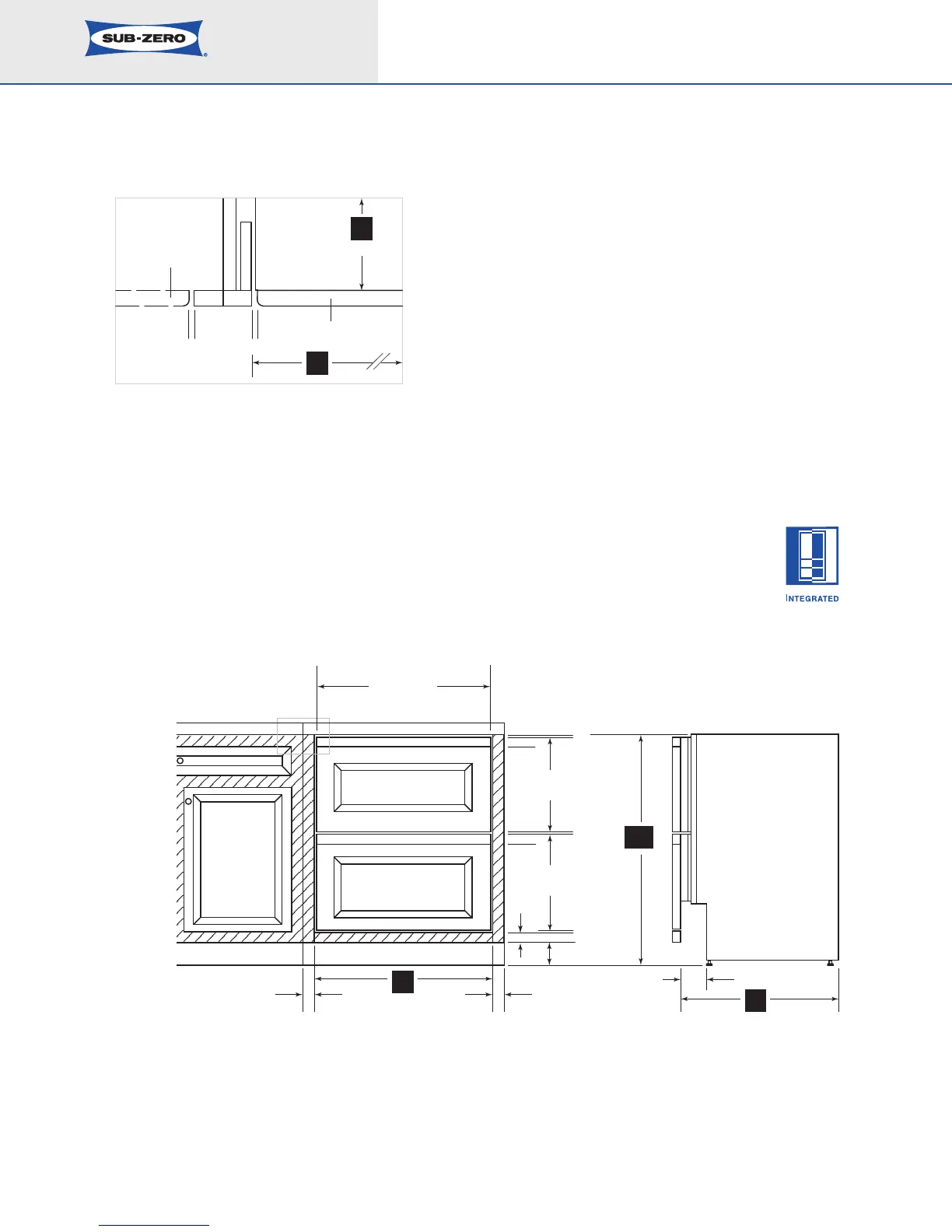
Integrated Model 700BF(I)
Installation of an Integrated drawer unit
within fr
amed ca
binetry.
*Dimensions may vary.
Dimensions in parentheses are in
millimeter
s unless otherwise specified
.
8
A) ALL REVEALS ARE 1/8" (3)
B) DRAWER RAILS ARE ATTACHED TO DRAWER FRONTS
C) BOTTOM RAIL MUST BE REMOVABLE
*DIMENSIONS MAY VARY
C
A
A
A
B
B
PANEL WIDTH
1
1
/2"
(38)
FRONT VIEW SIDE VIEW
26
3
/4" (679)
13
9
/16"
(345)
15
1
/16"
(383)
1
1
/2"
(38)
1
1
/2"
(38)
4"*
(102)
4" (102)
34
1
/2"
(876)
*
24"
(610)
27"
(686)
SHADED AREA
INDICATES STATIONARY
STYLES AND RAILS
TOP VIEW
A A
PANEL
CABINET DOOR
TO WALL
SUB-ZERO
UNIT
27"
(686)
24"
(610)
The illustration shows an Integrated drawer unit
installed within a framed cabinetry beaded inset
application.
IMPORTANT NOTE: Dimensions are based on a
1
/8" (3)
reveal. A reveal of up to
1
/4" (6) is possible, but panel
d
imensions need to be adjusted accordingly.
FRAMED CABINETRY – BEADED INSET APPLICATION

Other manuals for Sub-Zero 700BF

Related product manuals