EasyManua.ls Logo

Sub-Zero ICBBI-48S - Page 20

Sub-Zero ICBBI-48S
78 pages
Print Icon
To Next Page IconTo Next Page
To Next Page IconTo Next Page
To Previous Page IconTo Previous Page
To Previous Page IconTo Previous Page
Loading...
20
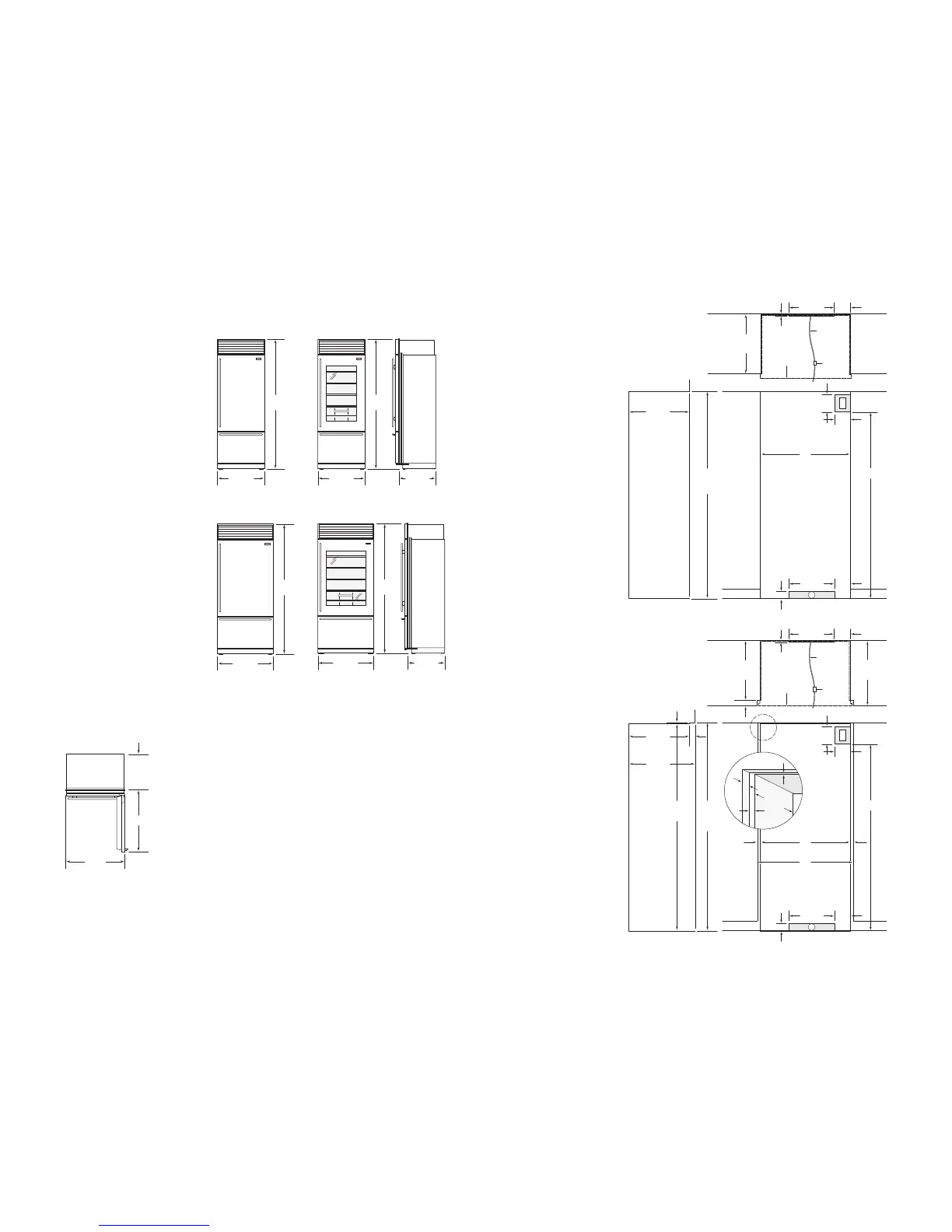
INSTRUCCIONES DE INSTALACIÓN PARA PRODUCTOS EMPOTRABLES
ESPACIO PARA APERTURA
DE PUERTA
Modelos Combi
A
Modelo ICBBI-30U 794 mm
806 mm empotrable
Modelo
ICBBI-30UG 794 mm
806 mm empotrable
Modelo
ICBBI-36U 946 mm
959 mm empotrable
Modelo
ICBBI-36UG 946 mm
959 mm empotrable
El espacio de la puerta toma como base las
medidas de la puerta y el tirador de acero
inoxidable.
MEDIDAS TOTALES
Modelos Combi
Modelo ICBBI-30U
ALP
762 mm 2.134 mm 610 mm
Modelo ICBBI-30UG
con puerta
de cristal
ALP
762 mm 2.134 mm 610 mm
Modelo ICBBI-36U
ALP
914 mm
2.134 mm 610 mm
Modelo ICBBI-36UG
con puerta
de cristal
ALP
914 mm 2.134 mm 610 mm
Las dimensiones de la unidad pueden
variar ± 3 mm.
606 mm
DETRÁS
DEL
MARCO
ANCHURA
DE LA UNIDAD
A
Modelo ICBBI-30U
Modelo ICBBI-36U
762 mm
2.134
mm
762 mm
2.134
mm
610 mm
914 mm
2.134
mm
914 mm
2.134
mm
610 mm
Modelo ICBBI-30UG
Modelo ICBBI-36UG
Se muestra el diseño
de acero inoxidable.
ESPECIFICACIONES DE LA
INSTALACIÓN
Modelos combi—
Revestible (no empotrable) y de acero inoxidable
A
Modelo ICBBI-30U 749 mm
Modelo ICBBI-30UG 749 mm
Modelo ICBBI-36U 902 mm
Modelo ICBBI-36UG 902 mm
Las medidas son para las cavidades acabadas.
ESPECIFICACIONES DE LA
INSTALACIÓN
Modelos combi—
Aplicación empotrable
AB
Modelo ICBBI-30U 749 mm 813 mm
Modelo ICBBI-30UG 749 mm 813 mm
Modelo ICBBI-36U 902 mm 965 mm
Modelo ICBBI-36UG 902 mm 965 mm
Las medidas son para las cavidades acabadas.
1.918 mm
178
mm
152
mm
E
UBICAR TOMA
ELÉCTRICA
EN ÁREA
SOMBREADA
457 mm
W
UBICAR TOMA DE AGUA EN
ÁREA SOMBREADA
152
mm
VISTA FRONTALVISTA LATERAL
2.127 mm
ALTURA
DE LA
CAVIDAD
A
ANCHURA DE LA CAVIDAD
76 mm
610 mm
PROFUNDIDAD
DE LA CAVIDAD
13 mm
457 mm
*
152
mm
610 mm
PROFUNDIDAD
DE LA CAVIDAD
VÁLVULA
DE CIERRE
CONTORNO DEL
MODELO REVESTIBLE
O DE ACERO
INOXIDABLE
VISTA
SUPERIOR
*EL SOPORTE ANTIVUELCO
NO DEBE INTERFERIR CON EL
CONDUCTO DE AGUA. CONSULTE
LAS INSTRUCCIONES DE INSTALACIÓN
PARA OBTENER LOS DATOS COMPLETOS.
CONDUCTO DE AGUA AMPLIADO
914 MM APROX. DESDE PARED TRASERA.
CONDUCTO
DE AGUA
1.918 mm
178
mm
152
mm
E
UBICAR TOMA
ELÉCTRICA
EN ÁREA
SOMBREADA
13 mm
457 mm
*
152
mm
610 mm
PROFUNDIDAD
DE LA CAVIDAD
665 mm
PROFUNDIDAD
EMPOTRABLE
VÁLVULA
DE CIERRE
CONTORNO DE
LA APLICACIÓN
EMPOTRABLE CON
PANEL DE 19 mm
457 mm
W
UBICAR TOMA DE AGUA EN
ÁREA SOMBREADA
152
mm
VISTA FRONTALVISTA LATERAL
VISTA
SUPERIOR
2.127 mm
ALTURA
DE LA
CAVIDAD
2.134
mm
ALTURA
EMPO-
TRABLE
6 mm
56 mm**
76 mm
A
ANCHURA DE LA CAVIDAD
B
ANCHURA EMPOTRABLE
32
mm
32
mm
56
mm**
610 mm
PROFUNDIDAD
DE LA CAVIDAD
665 mm
PROFUNDIDAD
EMPOTRABLE
*EL SOPORTE ANTIVUELCO
NO DEBE INTERFERIR CON EL
CONDUCTO DE AGUA. CONSULTE
LAS INSTRUCCIONES DE INSTALACIÓN
PARA OBTENER LOS DATOS COMPLETOS.
**CALCULADO CON UN PANEL DE
19 MM DE GROSOR.
CONDUCTO DE AGUA AMPLIADO
914 MM APROX. DESDE PARED TRASERA.
CONDUCTO
DE AGUA
6
mm
32
mm
DETALLE DEL
PRODUCTO
EMPOTRABLE
56
mm
610 mm
PROFUNDIDAD
DE LA CAVIDAD

Other manuals for Sub-Zero ICBBI-48S

Related product manuals