EasyManua.ls Logo

Sub-Zero ICBBI-48S - Technische Daten zur Installation

Sub-Zero ICBBI-48S
78 pages
Print Icon
To Next Page IconTo Next Page
To Next Page IconTo Next Page
To Previous Page IconTo Previous Page
To Previous Page IconTo Previous Page
Loading...
64
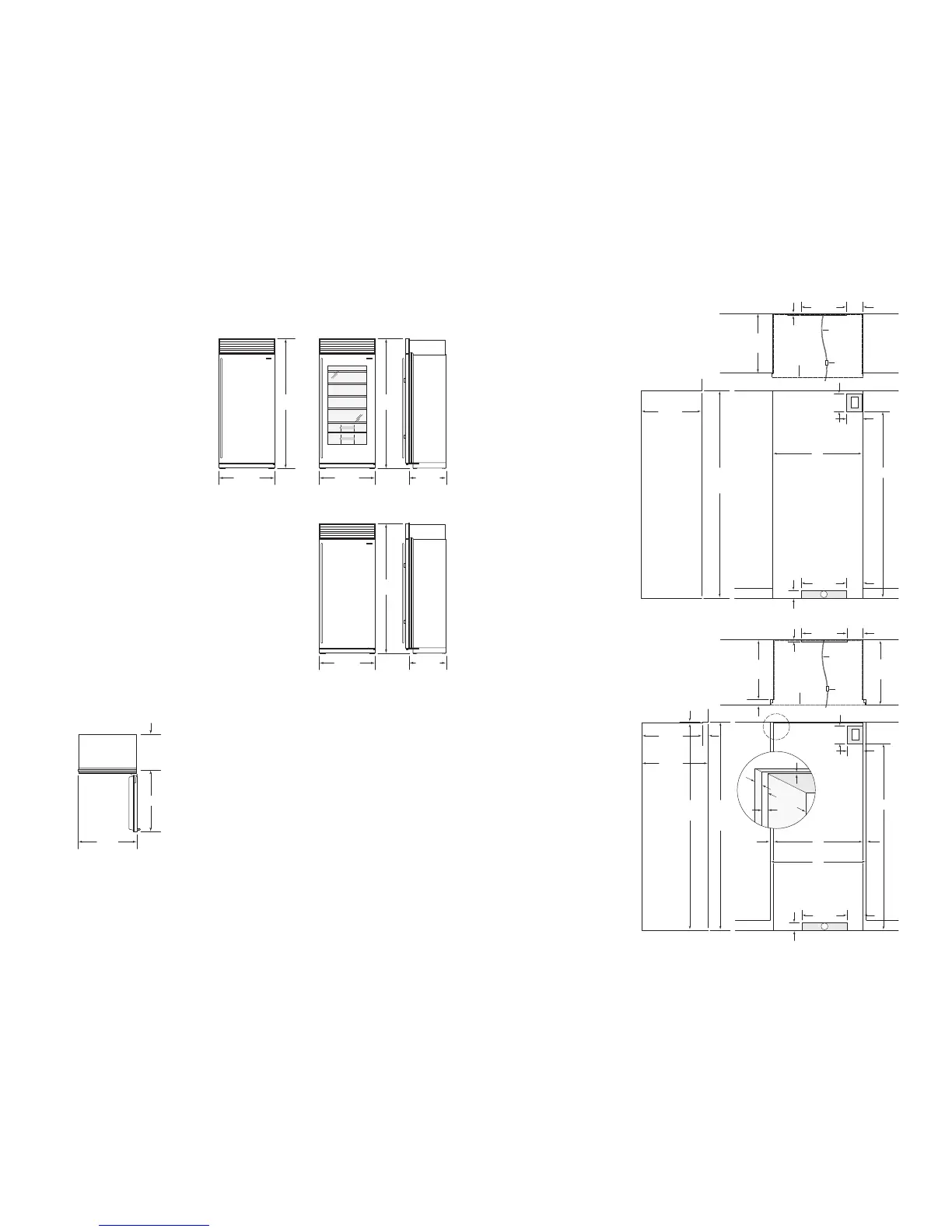
TECHNISCHE DATEN ZUR EINBAUINSTALLATION
Edelstahldesign abgebildet.
TÜRFREIRAUM
Modelle Nur Kühlschrank /
Nur Gefrierschrank
A
Modell ICBBI-36R 946 mm
959 mm bündig/
v
oll integriert
Modell I
CBBI-36RG 946 mm
959 mm bündig/
v
oll integriert
Modell I
CBBI-36F 946 mm
959 mm bündig/
v
oll integriert
Die Türfreiräume basieren auf den
Abmessungen der Edelstahltür und
des Griffs.
GESAMTABMESSUNGEN
Modelle Nur Kühlschrank /
Nur Gefrierschrank
Modell ICBBI-36R
Nur Kühlschrank
BH T
914 mm 2.134 mm 610 mm
Modell ICBBI-36RG
Nur Kühlschrank mit Glastür
BH T
914 mm 2.134 mm 610 mm
Modell ICBBI-36F
Nur Gefrierschrank
BH T
914 mm 2.134 mm 610 mm
Geräteabmessungen können bis zu
± 3 mm abweichen.
606 mm
HINTER
RAHMEN
BREITE
DES GERÄTS
A
Modell ICBBI-36R Modell ICBBI-36RG
914 mm
2.134
mm
914 mm
2.134
mm
610 mm
914 mm
2.134
mm
610 mm
Modell ICBBI-36F
TECHNISCHE DATEN ZUR
INSTALLATION
Modelle Nur Kühlschrank / Nur Gefrierschrank –
Verkleidung (nicht bündig/voll integriert) und
Edelstahl
A
Modell ICBBI-36R 902 mm
Modell ICBBI-36RG 902 mm
Modell ICBBI-36F 902 mm
Die Abmessungen sind für bearbeitete
Rohbauöffnungen.
Modelle ICBBI-36R und ICBBI-36RG benötigen
keinen Wasserleitungsanschluss.
TECHNISCHE DATEN ZUR
INSTALLATION
Modelle Nur Kühlschrank / Nur Gefrierschrank –
bündige/voll integrierte Ausführung
AB
Modell ICBBI-36R 902 mm 965 mm
Modell ICBBI-36RG 902 mm 965 mm
Model ICBBI-36F 902 mm 965 mm
Die Abmessungen sind für bearbeitete
Rohbauöffnungen.
Modelle ICBBI-36R und ICBBI-36RG benötigen
keinen Wasserleitungsanschluss.
1.918 mm
178
mm
152
mm
E
STROMVERSORGUNG
IM SCHATTIERTEN
BEREICH
UNTERBRINGEN
457 mm
W
WASSERVERSORGUNG
IM SCHATTIERTEN
BEREICH UNTERBRINGEN
152
mm
VORDERANSICHTSEITENANSICHT
2.127 mm
ÖFFNUNGS-
HÖHE
A
ÖFFNUNGSBREITE
76 mm
ÖFFNUNGS-
TIEFE
610 mm
13 mm
457 mm
*
152
mm
ÖFFNUNGS-
TIEFE
610 mm
ABSPERR-
VENTIL
KONTUR DES
VERKLEIDUNGS-
ODER
EDELSTAHLMODELLS
DRAUFSICHT
*DIE KIPPSCHUTZHALTERUNG
DARF SICH NICHT STÖREND
AUF DIE WASSERLEITUNG
AUSWIRKEN. AUSFÜHRLICHE
DETAILS FINDEN SIE IN DEN
INSTALLATIONSANWEISUNGEN.
WASSERLEITUNG UM CA. 914 MM
VON DER RÜCKWAND VERLÄNGERN.
WASSER-
LEITUNG
1.918 mm
178
mm
152
mm
E
STROMVER-
SORGUNG
IM SCHATTIERTEN
BEREICH
UNTERBRINGEN
13 mm
457 mm
*
152
mm
ÖFFNUNGS-
TIEFE
610 mm
665 mm
BÜNDIGE/VOLL
INTEGRIERTE
TIEFE
ABSPERR-
VENTIL
KONTUR DER
BÜNDIGEN/
VOLL INTEGRIERTEN
AUSFÜHRUNG MIT
19-mm-PLATTE
457 mm
W
WASSERVERSORGUNG
IM SCHATTIERTEN
BEREICH UNTERBRINGEN
152
mm
VORDERANSICHTSEITENANSICHT
DRAUFSICHT
2.127 mm
ÖFFNUNGS-
HÖHE
2.134 mm
BÜNDIGE/
VOLL
INTEGRIERTE
HÖHE
6 mm
56 mm**
76 mm
A
ÖFFNUNGSBREITE
B
BÜNDIGE/VOLL INTEGRIERTE BREITE
32
mm
32
mm
56
mm**
ÖFFNUNGS-
TIEFE
610 mm
665 mm
BÜNDIGE/VOLL
INTEGRIERTE
TIEFE
*DIE KIPPSCHUTZHALTERUNG
DARF SICH NICHT STÖREND AUF
DIE WASSERLEITUNG AUSWIRKEN.
AUSFÜHRLICHE DETAILS FINDEN SIE
IN DEN INSTALLATIONSANWEISUNGEN.
**GEHT VON EINER PLATTENSTÄRKE
VON 19 MM AUS.
WASSERLEITUNG UM CA. 914 MM
VON DER RÜCKWAND VERLÄNGERN.
WASSER-
LEITUNG
6
mm
32
mm
DETAIL BÜNDIG/
VOLL INTEGRIERT
56
mm
ÖFFNUNGS-
TIEFE
610 mm

Other manuals for Sub-Zero ICBBI-48S

Related product manuals