EasyManua.ls Logo

Sub-Zero ICBBI-48S - Page 65

Sub-Zero ICBBI-48S
78 pages
Print Icon
To Next Page IconTo Next Page
To Next Page IconTo Next Page
To Previous Page IconTo Previous Page
To Previous Page IconTo Previous Page
Loading...
65
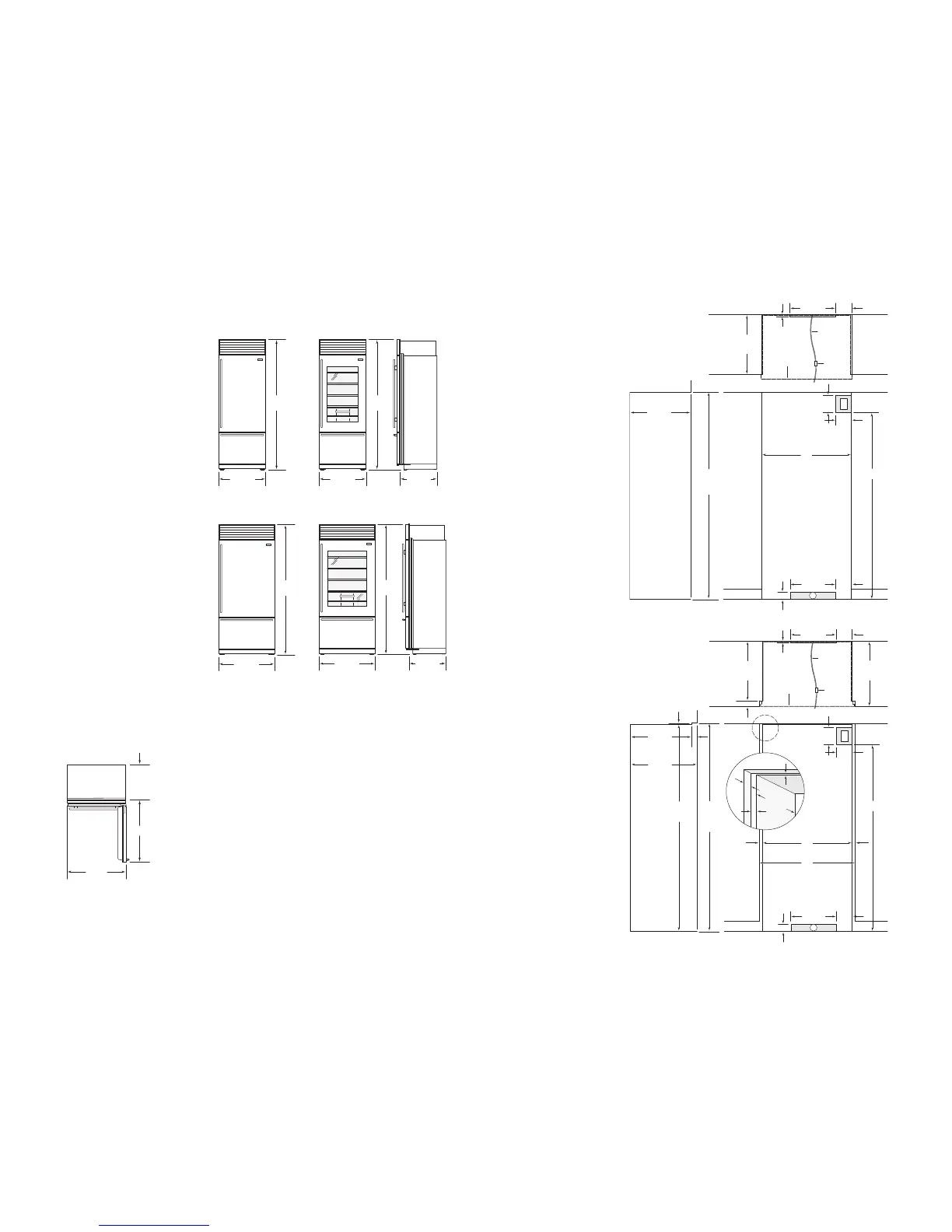
TECHNISCHE DATEN ZUR EINBAUINSTALLATION
TÜRFREIRAUM
Übereinander-Modelle
A
Modell ICBBI-30U 794 mm
806 mm bündig/
v
oll integriert
Modell I
CBBI-30UG 794 mm
806 mm bündig/
v
oll integriert
Modell I
CBBI-36U 946 mm
959 mm bündig/
v
oll integriert
Modell I
CBBI-36UG 946 mm
959 mm bündig/
v
oll integriert
Die Türfreiräume basieren auf den
Abmessungen der Edelstahltür und
des Griffs.
GESAMTABMESSUNGEN
Übereinander-Modelle
Modell ICBBI-30U
BH T
762 mm 2.134 mm 610 mm
Modell ICBBI-30UG
mit Glastür
BH T
762 mm 2.134 mm 610 mm
Modell ICBBI-36U
BH
T
914 mm
2.134 mm 610 mm
Modell ICBBI-36UG
mit Glastür
BH T
914 mm 2.134 mm 610 mm
Geräteabmessungen können bis zu
± 3 mm abweichen.
606 mm
HINTER
RAHMEN
BREITE
DES GERÄTS
A
Modell ICBBI-30U
Modell ICBBI-36U
762 mm
2.134
mm
762 mm
2.134
mm
610 mm
914 mm
2.134
mm
914 mm
2.134
mm
610 mm
Modell ICBBI-30UG
Modell ICBBI-36UG
Edelstahldesign abgebildet.
TECHNISCHE DATEN ZUR
INSTALLATION
Übereinander-Modelle –
Verkleidung (nicht bündig/voll integriert)
und Edelstahl
A
Modell ICBBI-30U 749 mm
Modell ICBBI-30UG 749 mm
Modell ICBBI-36U 902 mm
Modell ICBBI-36UG 902 mm
Die Abmessungen sind für bearbeitete
Rohbauöffnungen.
TECHNISCHE DATEN ZUR
INSTALLATION
Übereinander-Modelle –
bündige/voll integrierte Ausführung
AB
Modell ICBBI-30U 749 mm 813 mm
Modell ICBBI-30UG 749 mm 813 mm
Modell ICBBI-36U 902 mm 965 mm
Modell ICBBI-36UG 902 mm 965 mm
Die Abmessungen sind für bearbeitete
Rohbauöffnungen.
1.918 mm
178
mm
152
mm
E
STROMVERSORGUNG
IM SCHATTIERTEN
BEREICH
UNTERBRINGEN
457 mm
W
WASSERVERSORGUNG
IM SCHATTIERTEN
BEREICH UNTERBRINGEN
152
mm
VORDERANSICHTSEITENANSICHT
2.127 mm
ÖFFNUNGS-
HÖHE
A
ÖFFNUNGSBREITE
76 mm
ÖFFNUNGS-
TIEFE
610 mm
13 mm
457 mm
*
152
mm
ÖFFNUNGS-
TIEFE
610 mm
ABSPERR-
VENTIL
KONTUR DES
VERKLEIDUNGS-
ODER
EDELSTAHLMODELLS
DRAUFSICHT
*DIE KIPPSCHUTZHALTERUNG
DARF SICH NICHT STÖREND
AUF DIE WASSERLEITUNG
AUSWIRKEN. AUSFÜHRLICHE
DETAILS FINDEN SIE IN DEN
INSTALLATIONSANWEISUNGEN.
WASSERLEITUNG UM CA. 914 MM
VON DER RÜCKWAND VERLÄNGERN.
WASSER-
LEITUNG
1.918 mm
178
mm
152
mm
E
STROMVER-
SORGUNG
IM SCHATTIERTEN
BEREICH
UNTERBRINGEN
13 mm
457 mm
*
152
mm
ÖFFNUNGS-
TIEFE
610 mm
665 mm
BÜNDIGE/VOLL
INTEGRIERTE
TIEFE
ABSPERR-
VENTIL
KONTUR DER
BÜNDIGEN/
VOLL INTEGRIERTEN
AUSFÜHRUNG MIT
19-mm-PLATTE
457 mm
W
WASSERVERSORGUNG
IM SCHATTIERTEN
BEREICH UNTERBRINGEN
152
mm
VORDERANSICHTSEITENANSICHT
DRAUFSICHT
2.127 mm
ÖFFNUNGS-
HÖHE
2.134 mm
BÜNDIGE/
VOLL
INTEGRIERTE
HÖHE
6 mm
56 mm**
76 mm
A
ÖFFNUNGSBREITE
B
BÜNDIGE/VOLL INTEGRIERTE BREITE
32
mm
32
mm
56
mm**
ÖFFNUNGS-
TIEFE
610 mm
665 mm
BÜNDIGE/VOLL
INTEGRIERTE
TIEFE
*DIE KIPPSCHUTZHALTERUNG
DARF SICH NICHT STÖREND AUF
DIE WASSERLEITUNG AUSWIRKEN.
AUSFÜHRLICHE DETAILS FINDEN SIE
IN DEN INSTALLATIONSANWEISUNGEN.
**GEHT VON EINER PLATTENSTÄRKE
VON 19 MM AUS.
WASSERLEITUNG UM CA. 914 MM
VON DER RÜCKWAND VERLÄNGERN.
WASSER-
LEITUNG
6
mm
32
mm
DETAIL BÜNDIG/
VOLL INTEGRIERT
56
mm
ÖFFNUNGS-
TIEFE
610 mm

Other manuals for Sub-Zero ICBBI-48S

Related product manuals