EasyManua.ls Logo

Sub-Zero ICBBI-48S - Page 35

Sub-Zero ICBBI-48S
78 pages
Print Icon
To Next Page IconTo Next Page
To Next Page IconTo Next Page
To Previous Page IconTo Previous Page
To Previous Page IconTo Previous Page
Loading...
35
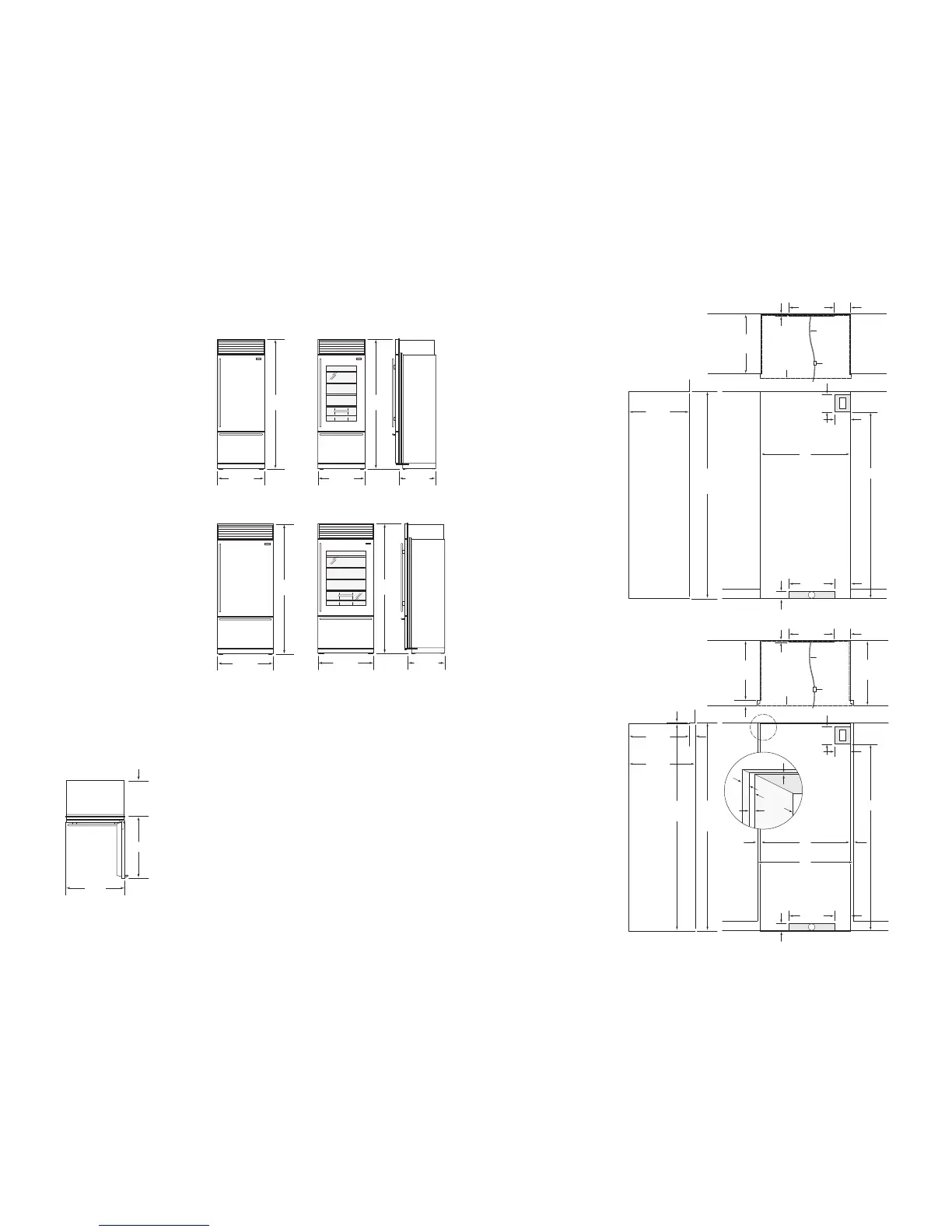
SPÉCIFICATIONS D’INSTALLATION POUR LES APPAREILS ENCASTRABLES
DÉGAGEMENT DE LA PORTE
Modèles bottom
A
Modèle ICBBI-30U 794 mm
806 mm panneau
d’affleurement
Modèle ICBBI-30UG 794 mm
806 mm panneau
d’affleurement
Modèle ICBBI-36U 946 mm
959 mm panneau
d’affleurement
Modèle ICBBI-36UG 946 mm
959 mm panneau
d’affleurement
Le dégagement de la porte est calculé en
fonction des dimensions de la porte en acier
inoxydable et de la poignée.
DIMENSIONS HORS TOUT
Modèles bottom
Modèle ICBBI-30U
LH P
762 mm 2 134 mm 610 mm
Modèle ICBBI-30UG
avec porte vitrée
LH P
762 mm 2 134 mm 610 mm
Modèle ICBBI-36U
LH P
914 mm
2 134 mm 610 mm
Modèle ICBBI-36UG
avec porte vitrée
LH P
914 mm 2 134 mm 610 mm
Les dimensions de l’appareil peuvent
varier de ± 3 mm.
606 mm
DERRIÈRE
LE CADRE
LARGEUR
DE L’APPAREIL
A
Modèle ICBBI-30U
Modèle ICBBI-36U
762 mm
2 134
mm
762 mm
2 134
mm
610 mm
914 mm
2 134
mm
914 mm
2 134
mm
610 mm
Modèle ICBBI-30UG
Modèle ICBBI-36UG
Version en acier inoxydable illustrée.
SPÉCIFICATIONS D’INSTALLATION
Modèles bottom—
Habillable (panneau non affleurant) et acier
inoxydable
A
Modèle ICBBI-30U 749 mm
Modèle ICBBI-30UG 749 mm
Modèle ICBBI-36U 902 mm
Modèle ICBBI-36UG 902 mm
Ces dimensions s’appliquent aux ouvertures
finies.
SPÉCIFICATIONS D’INSTALLATION
Modèles bottom—
Version avec panneau d’affleurement
AB
Modèle ICBBI-30U 749 mm 813 mm
Modèle ICBBI-30UG 749 mm 813 mm
Modèle ICBBI-36U 902 mm 965 mm
Modèle ICBBI-36UG 902 mm 965 mm
Ces dimensions s’appliquent aux ouvertures
finies.
1 918 mm
178
mm
152
mm
E
LOCALISEZ LA PRISE
ÉLECTRIQUE DANS LA
ZONE OMBRÉE
457 mm
W
LOCALISEZ L’ALIMENTATION D’EAU
DANS LA ZONE OMBRÉE
152
mm
VUE DE FACEVUE LATÉRALE
2 127 mm
HAUTEUR
D’OUVERTURE
A
LARGEUR D’OUVERTURE
76 mm
610 mm
PROFONDEUR
D’OUVERTURE
13 mm
457 mm
*
152
mm
610 mm
PROFONDEUR
D’OUVERTURE
ROBINET
D’ARRÊT
CONTOUR DU
MODÈLE AVEC
PANNEAU
D’HABILLAGE
OU EN ACIER
INOXYDABLE
VUE DE
DESSUS
*LE SUPPORT ANTIBASCULEMENT
NE DOIT PAS GÊNER LA CANALI-
SATION. REPORTEZ-VOUS AUX
INSTRUCTIONS D’INSTALLATION
POUR DE PLUS AMPLES DÉTAILS.
PROLONGER LA CONDUITE D’EAU
DE 914 MM ENVIRON À PARTIR DU
MUR ARRIÈRE
CANALISATION
D’EAU
1 918 mm
178
mm
152
mm
E
LOCALISEZ LA PRISE
ÉLECTRIQUE DANS LA
ZONE OMBRÉE
13 mm
457 mm
*
152
mm
610 mm
PROFONDEUR
D’OUVERTURE
665 mm
PROFONDEUR DU
PANNEAU
D’AFFLEUREMENT
ROBINET
D’ARRÊT
CONTOUR DE
LA VERSION
AVEC PANNEAU
D’AFFLEUREMENT
AVEC PANNEAU
DE
19 mm
457 mm
W
LOCALISEZ L’ALIMENTATION D’EAU
DANS LA ZONE OMBRÉE
152
mm
VUE DE FACEVUE LATÉRALE
VUE DE
DESSUS
2 127 mm
HAUTEUR
D’OUVERTURE
2 134 mm
HAUTEUR
DU
PANNEAU
D’AFFLEURE-
MENT
6 mm
56 mm**
76 mm
A
LARGEUR D’OUVERTURE
B
LARGEUR DU PANNEAU
D’AFFLEUREMENT
32
mm
32
mm
56
mm**
610 mm
PROFONDEUR
D’OUVERTURE
665 mm
PROFONDEUR DU
PANNEAU
D’AFFLEUREMENT
*LE SUPPORT ANTIBASCULEMENT
NE DOIT PAS GÊNER LA CANALI-
SATION. REPORTEZ-VOUS AUX
INSTRUCTIONS D’INSTALLATION
POUR DE PLUS AMPLES DÉTAILS.
**PRÉSUME QUE L’ÉPAISSEUR
DU PANNEAU EST DE 19 MM.
PROLONGER LA CONDUITE D’EAU
DE 914 MM ENVIRON À PARTIR DU
MUR ARRIÈRE
CANALISATION
D’EAU
6
mm
32
mm
DÉTAIL DU PANNEAU
D’AFFLEUREMENT
56
mm
610 mm
PROFONDEUR
D’OUVERTURE

Other manuals for Sub-Zero ICBBI-48S

Related product manuals