EasyManua.ls Logo

Sub-Zero Wolf ICB700 Series - Page 37

Sub-Zero Wolf ICB700 Series
94 pages
Print Icon
To Next Page IconTo Next Page
To Next Page IconTo Next Page
To Previous Page IconTo Previous Page
To Previous Page IconTo Previous Page
Loading...
Page 37
4-6
Sealed System Information
7011902 - Revision A - October, 2009
International Integrated
International Integrated
(ICB700 Base)
(ICB700 Base)
Series
Series
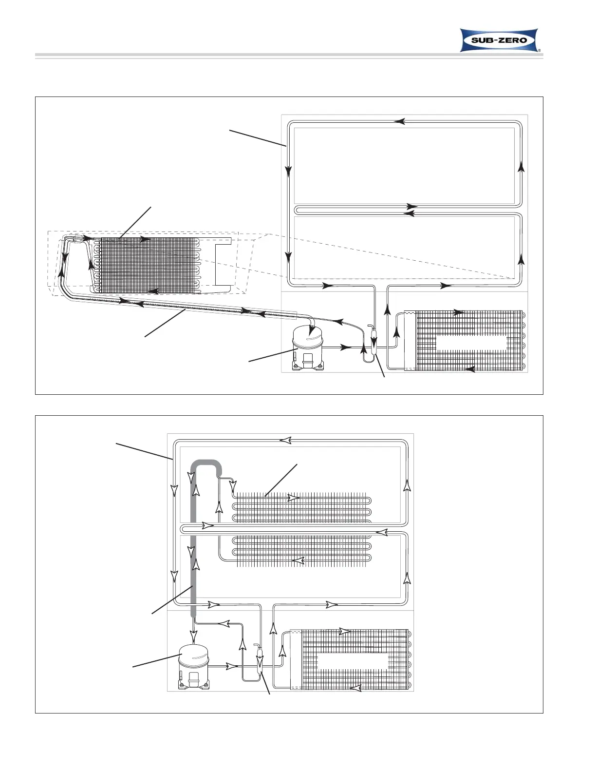
SEALED SYSTEM REFRIGERANT FLOW DIAGRAM
Figure 4-1. Model ICB700BCI Refrigerant Flow
Figure 4-2. Model ICB700BR Refrigerant Flow
Compressor
Evaporator
Heater Loop
Heat Exchanger
Condenser
High-Side Filter Drier
Compressor
Evaporator
Heater Loop
Heat Exchanger
Condenser
High-Side Filter Drier

Related product manuals